metalinstryment.com
Довідник по металорізальних верстатів та пресовому обладнанні

5Д833 Верстат зубошлифовальный універсальний напівавтомат
схеми, опис, характеристики

5Д833 Загальний вигляд  зубошлифовального верстата







Відомості про виробника зубошлифовального верстата 5Д833

Производитель вертикального зубошлифовального верстата 5Д833 Егорьевский станкостроительный завод Комсомолец, основанный в 1930 году.

Завод за время своего существования выпустил свыше 60 моделей: зубофрезерных, зубодолбежных, зубошлифовальных, зубозакругляющих і других зубообрабатывающих верстатів.





Продукция Егорьевского станкостроительного завода Комсомолец


5Д833 Верстат зубошлифовальный вертикальний напівавтомат з червячным кругом для цилиндрических колес. Назначение і область применения

Верстат 5Д833 (1985 год) спроектирован на базе моделі 5В833 (1974 год).

Вертикальный зубошлифовальный верстат 5Д833 предназначен для шлифования прямозубых і косозубых цилиндрических колес в серийном і крупносерийном производстве.

Шлифование производится однозаходным или двухзаходным абразивным червячным кругом методом обкатки при непрерывном делении.

По сравнению з другими существующими способами шлифования (профильным кругом з единичным делением, дисковыми і тарельчатыми кругами методом обкатки з единичным делением і др.) методом непрерывной обкатки позволяет в 3-4 раза повысить производительность труда.

Принцип роботи і особливості конструкції верстата

Витки червяка имеют в осевом сечении форму прямобочной производящей рейки з шагом, равным окружному шагу шлифуемого колеса.

Окончательное профилирование винтовой поверхности абразивного червяка производится на самом станке многониточными стальными накатниками или алмазными резцами. Возможна правка алмазным роликом.

Отличительными особенностями верстата 5Д833 є наличие механізма поворота вертикальних направляючих стойки на угол подъема, винтовой линии червячного круга, что повышает точность обробки.

Привід шлифовального круга і вироби осуществляется от окремих синхронно-реактивных електродвигателей, имеющих одинаковую частоту обертання.

При работе в напівавтоматическом режиме вращение вироби осуществляется через гітару деления, радиальная подача происходит от храпового механізма, а вертикальная — от регулируемого електродвигуна.

На станке можно обрабатывать бочкообразные зубья і зубья з модифицированным по высоте профилем.

Полуавтомат 5Д833 состоит из станины 1, по горизонтальным направляющим которой перемещаются шлифовальная бабка 9 і стойка 23. Внутри станины размещен резервуар гідравлики, а гідропанель з аппаратурой помещена за дверками 7. Рядом з дверкой справа находится рукоятка 3 переключения роботи верстата з цикла на правку.

На переднюю стенку станины выведены головка 5 установки величины радиальной подачі за один рабочий ход, маховичок 4 установки величины общей радиальной подачі і маховичок 2 переміщення шлифовальной бабки в направлении заготовки. На правой стороне станины находится головка 30 установки величины автоматичною передвижки стойки в поперечном направлении і маховик 29 ручного переміщення стойки. Здесь же размещен пульт керування 28.

Шлифовальная бабка 9 служит для розміщення механізмов приводу червячного шлифовального круга 11 і механізма 8 для его правки. На шлифовальной бабке закреплены два сопла 13 для подачі охлаждающей жидкости на круг при шлифовании і правке.

На стойке 23 закреплен з возможностью поворота супорт 18 з изделием 14, устанавливаемым на оправке в центры шпинделя стола 31 і контрподдержки 16. При установці оправки в центры пиноль контрподдержки поднимается рукояткой 15.

В суппорте находится привід вироби з гітарою деления і шестеренный насос, связанный з делительным колесом стола. Насос используется для поддержания постоянного силового натяжения ланцюги деления при шлифовании зубчатых колес з различным числом зубьев.

Регулювання величины давления насоса производится дросселем 27 і контролируется по манометру 17. Давление повышают з увеличением числа шлифуемых зубьев.

На напівавтоматі 5Д833 шлифование осуществляется при движении заготовки вдоль направления зуба. При етом супорт поворачивают за квадрат 22 на требуемый угол, контролируя его по шкале линейки 19. Кроме етого, для обеспечения правильного розположення витков червячного круга относительно зуба шлифуемого колеса направляющие стойки за квадрат 21 поворачивают на угол подъема витка червяка.

На боковой поверхности стойки і суппорта размещены упоры 20 — бочкообразования, 24 — ограничения ходу суппорта і 25 — исправления направления зуба, которые воздействуют на соответствующие конечные выключатели і дроссели.

Рабочая зона напівавтомату защищена ограждением з дверками 10 і 26. Отсос масляных аерозолей осуществляется через отверстие 12 пылесосом, находящимся сзади верстата. С задньої стороны верстата расположен бак 6 охлаждения, в котором размещена центрифуга очистки СОЖ.

Для вытяжки і очистки отсасываемых паров охлаждающей жидкости имеется вытяжной вентилятор з набором сетчатых фильтров. Для встраивания в автоматическую линию верстат не приспособлен.

Верстат 5Д833 выполнен по классу точності А по ГОСТ 8—82Е.

Шероховатость обработанной поверхности V8 по ГОСТ 2789—59.

Зубчасті колеса модулем до 0,8 мм нужно шлифовать без предварительного нарізання зубьев.

Окончательное профилирование винтовой нитки на абразивном червяке выполняется на самом станке стальным многониточным накатником или алмазными резцами.

На напівавтоматі возможна обработка зубчатых колес з бочкообразным зубом.

Разработчик — егорьевский ордена Октябрьской Революции станкостроительный завод «Комсомолец».





Габарит робочого простору зубошлифовального верстата 5Д833

5Д833 Габарит робочого простору зубошлифовального верстата

Габарит робочого простору зубошлифовального верстата 5Д833


Посадочные места і присоединительные розміри зубошлифовального верстата 5Д833

Посадочные места і присоединительные розміри зубошлифовального верстата 5Д833

Посадочные места і присоединительные розміри верстата 5Д833


Загальний вигляд і общее пристрій верстата 5Д833

Фото вигляд зубошлифовального верстата 5Д833

Фото зубошлифовального верстата 5Д833

Фото вигляд зубошлифовального верстата 5Д833. Дивитись у збільшеному масштабі



Фото вигляд зубошлифовального верстата 5Д833

Фото зубошлифовального верстата 5Д833

Фото вигляд зубошлифовального верстата 5Д833. Дивитись у збільшеному масштабі



Фото вигляд зубошлифовального верстата 5Д833

Фото зубошлифовального верстата 5Д833: пульт керування

Фото вигляд зубошлифовального верстата 5Д833. Дивитись у збільшеному масштабі



Розташування складових частин зубошлифовального верстата 5Д833

5Д833 Розташування складових частин зубошлифовального верстата 5Д833

Розташування складових частин верстата 5Д833

Розташування складових частин зубошлифовального верстата 5Д833. Дивитись у збільшеному масштабі

Розташування складових частин зубошлифовального верстата 5Д833. Дивитись у збільшеному масштабі



Специфікація складових частин зубошлифовального верстата 5Д833

  1. Станина
  2. Маховик переміщення шлифовальной бабки
  3. Рукоятка переключения цикла роботи верстата з шлифования на правку
  4. Маховик установки величины общей радиальной подачі
  5. Головка установки величины радиальной подачі на один рабочий ход
  6. Резервуар з охлаждающей жидкостью
  7. Дверка ниши гідропанелей
  8. Механізм правки шлифовального круга
  9. Шлифовальная бабка
  10. Дверь ограждения рабочей зоны
  11. Инструмент — шлифовальный круг
  12. Вентилятор отсоса аерозолей
  13. Сопло подачі охлаждающей жидкости
  14. Изделие — зубчатое колесо
  15. Рукоятка подъема контрподдержки
  16. Контрподдержка вироби
  17. Манометр установки давления тормозного насоса
  18. Суппорт вироби
  19. Линейка поворота суппорта на угол
  20. Упоры бочкообразования
  21. Квадрат поворота стойки на угол подъема витка абразивного червяка
  22. Квадрат поворота суппорта на угол
  23. Стойка
  24. Упоры ограничения величины переміщення суппорта
  25. Упоры исправления направления зуба
  26. Дверь ограждения рабочей зоны
  27. Дроссель регулювання давления тормозного насоса
  28. Пульт керування
  29. Маховик поперечного переміщення стойки
  30. Головка установки величины автоматичного поперечного переміщення стойки
  31. Стол для установки вироби




Схема кінематична зубошлифовального верстата 5Д833

Схема кінематична зубошлифовального верстата 5Д833

Кінематична схема зубошлифовального верстата 5Д833

1. Схема кінематична зубошлифовального верстата 5Д833. Дивитись у збільшеному масштабі



Кінематична схема верстата состоит из четырех ланцюгів:

  1. ланцюг деления (ланцюг обката)
  2. ланцюг правки (ланцюг обката)
  3. ланцюги вертикальной подачі
  4. ланцюги радиальной подачі

Ланцюг деления

Ланцюг обеспечивает согласованное вращение абразивного червяка і шлифуемой заготовки (за один оборот абразивного червяка заготовка должна повернуться на один зуб). Налаштування на число зубьев производится при помощи сменных шестерен гітари деления "х". Характерной особенностью стенка является наличие в ланцюги деления електрической синхронной связи, осуществляемой двумя синхронными реактивными електродвигунами. Один електродвигатель через пару цилиндрических шестерен 1, 2 приводит во вращение шпиндель абразивного червяка II, другой через пару цилиндрических шестерен 41, 42 - гітару деления "х", сменные шестерни е, f і делительную пару 43, 44 приводит во вращение шпиндель вироби ХХI.

Ланцюг правки

Ланцюг согласовывает вращение абразивного червяка з переміщенням механізма правки (за один оборот абразивного червяка механізм правки должен переместится на один шаг накатываемого витка). Налаштування на шаг производится при помощи сменных шестерен гітари правки "У". Привід ланцюги правки осуществляется от двухскоростного електродвигуна мощностью 0,7/0,9 кВт. Через пару цилиндрических шестерен 10,9, червячную передачу 8,7, цилиндрические шестерни 6,5 приводится во вращение вал III. От него через кулачковую муфту і пару цилиндрических шестерен 4, 3 рух передається шпинделю абразивного червяка, а через сменные шестерня гітари. "V" і пару цилиндрических шестерен 11, 12 вращается винт 13, по которому поступательно перемещается гайка 14, имеющая опорную площадку. К опорной площадке гайки гідравликой прижата каретка механізма правки. Винт 49 служит для установки накатника или алмазного резца вдоль оси абразивного червяка.

Ланцюг вертикальной подачі суппорта

Ланцюг сообщает возвратно-поступательное рух суппорту вироби во время шлифования і налагодження. Привід вертикальной подачі - бесступенчатый з муфтой ковзання ПМС-0,6, з регулюванням через тахогенератор ТГ. Исполнительным евеном переміщення каретки з суппортом является пара винт-гайка 36, 37. Для увеличения диапазона регулювання величины подачі между приводом ПМС-0,6 і парой винт-гайка имеется двухступенчатый зубчатый перебор, переключаемый двумя електромагнитными муфтами ЭTM-072.

Ланцюг радиальной подачі

Ланцюг осуществляет радиальную подачу бабки шлифовального круга на изделие за каждый ход вироби і отвод бабки після окончания шлифования.

Ланцюг автоматичною радиальной подачі состоит из храпового механізма 23 і гідравлической следящей системы. Качательное рух собачке храпового механізма сообщается гідроцилиндром 53, Вращение храповика преобразуется в поступательное рух гвинта 19, который нажимает на рычаг 54. Рычаг перемещает следящий золотник 55, в результате чего поршень 56 перемещает шлифовальную бабку на величину радиальной подачі, устанавливаемую лимбом 57. Ручное перемещение при наладке осуществляется маховиком 58. В ланцюг ручного перемещеНИЯ шлифовальной бабки входит коническая передача 18, 17 і пара винт-гайка 16, 15. Маховик 59 служит для установки величины переміщення шлифовальной бабки при шлифовании заготовки. При подводе шлифовальной бабки нажатием кнопки "подвод" маховик 5 (см.рис.5) устанавливается так, чтобы деление "0,8" шкалы лимба маховика находилось против указателя.

Ручное перемещение стойки

Перемещением стойки осуществляется установка вироби, относительно абразивного червяка, обеспечивая использование всей рабочей ширины абразивного червяка при шлифовании. Ручное перемещение осуществляется маховиком 60.

В ланцюг ручного переміщення стойки входит цилиндрическая передача 26, 27 і пара винт-гайка 28, 29.


Опис конструкції зубошлифовального верстата 5Д833

Червячный круг приводится во вращение регулируемым приводом, установленным на шлифовальной бабке. Частота обертання шпинделя червячного круга регулируется в проделах 1000…1500 об/мин.

Вращение шлифуемого вироби осуществляется также от отдельного регулируемого приводу через зубчасті колеса і гітару деления.

Шлифование косозубых колес производится бездиференціальным методом. При етом изделие поворачивается на угол наклона зуба вироби, а вертикальные направляющие стойки могут наклоняться на угол подъема червячного круга.

Стойка верстата з расположенным на ней суппортом вироби имеет возможность ручного і автоматичного переміщення вдоль оси червячного круга. Данное перемещение необходимо для полного использования ширины червячного круга.

Инструментом для шлифования служит шлифовальный круг, на поверхность которого наносится винтовая нарезка.

На напівавтоматі производится правка одно- і двухзаходных червячных кругов одно- і многониточными накатниками і алмазными резцами. Возможна правка алмазным роликом.

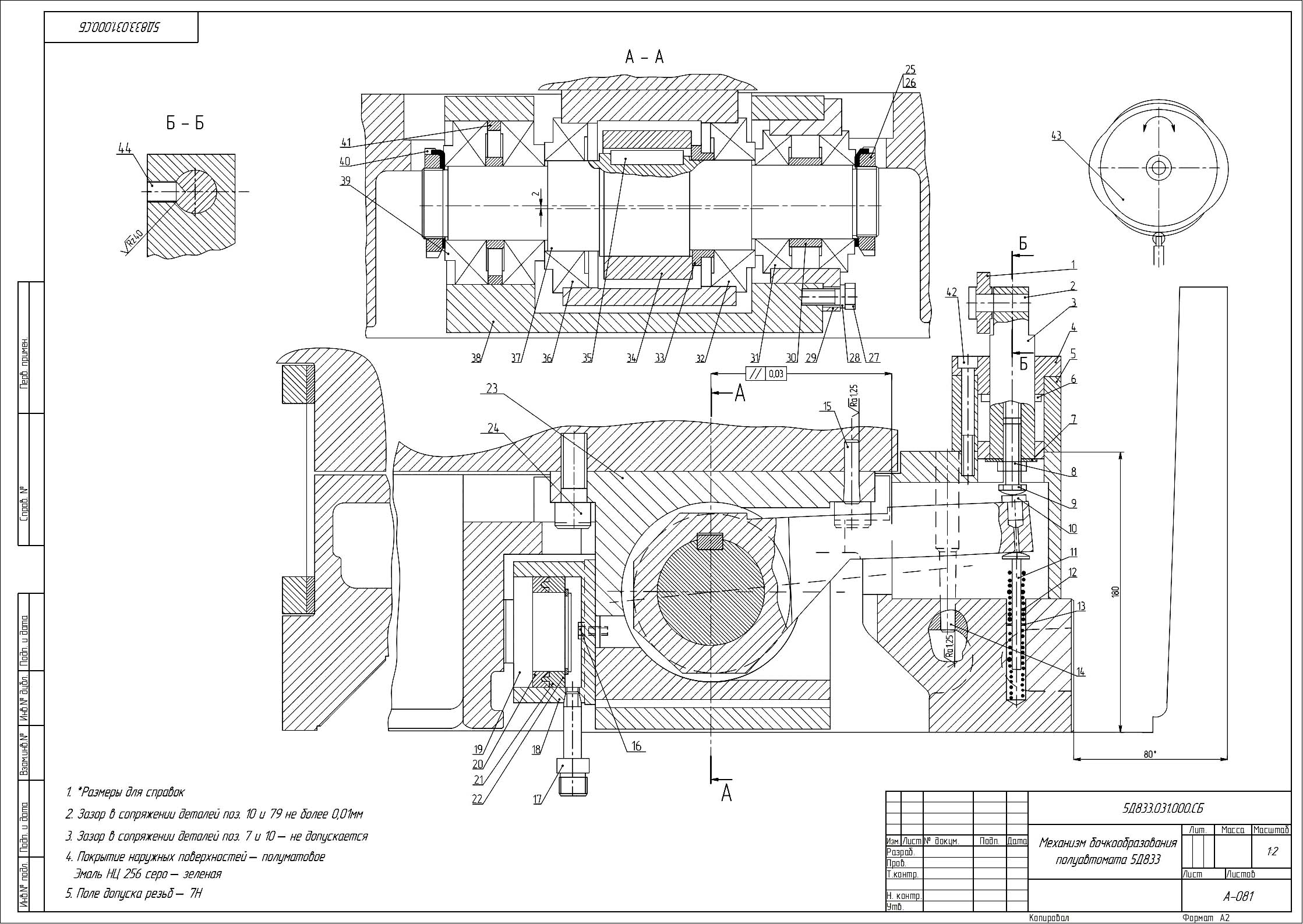
Механізм радиальной подачі і бочкообразования

Рассматриваемый узел – 5Д833.101.000 содержит три исполнительных елемента верстата: механізм радиального переміщення шлифовальной бабки, і два експериментальных механізма – слежения і бочкообразования. В післядних модификациях верстата, от таких решений вынуждены были отказаться в пользу более простого.

Радиальное перемещение шлифовальной бабки необходимо для її подвода к шлифуемому зубчатому колесу. Механізм слежения і бочкообразования необходим при обработке зубчатых колес з требованиями бочкообразного профиля. Данные механізмы обеспечивают согласованное дополнительное радиальное перемещение стойки к заготовке при врезании і выходе круга из обрабатываемого зубчатого колеса.

Это перемещение реализуется гідроцилиндром, управляемым золотником, который в свою очередь перемещается от рычага следящего механізма. На рисунке представлен фрагмент сборочного чертежа вузла механізма.



Механізм бочкообразования зубошлифовального верстата 5Д833

Механізм бочкообразования зубошлифовального верстата 5Д833

Механізм бочкообразования зубошлифовального верстата 5Д833. Дивитись у збільшеному масштабі



Настановне креслення зубошлифовального верстата 5Д833

Настановне креслення зубошлифовального верстата 5Д833

Настановне креслення зубошлифовального верстата 5Д833

Настановне креслення зубошлифовального верстата 5Д833. Дивитись у збільшеному масштабі






5Д833 Верстат зубошлифовальный універсальний напівавтомат. Відеоролик.




Технічні характеристики зубошлифовального верстата 5Д833

Технічні характеристики зубошлифовального верстата 5Д833

Технічні характеристики зубошлифовального верстата 5Д833

Технічні характеристики зубошлифовального верстата 5Д833. Дивитись у збільшеному масштабі




    Список литературы по зубообработке

  1. Ачеркан Н.С. Металлорежущие верстати, Том 1, 1965.
  2. Гальперин Е.И. Наладка зуборезных верстатів, 1960.
  3. Козлов Д.Н. Зуборезные роботи, 1971.
  4. Кучер А.М., Киватицкий М.М., Покровский А.А., Металлорежущие верстати (Альбом общих видов, кинематических схем і вузлів), 1972.
  5. Лоскутов В.В., Ничков А.Г. Зубообрабатывающие верстати, 1978.
  6. Малахов Я.А. Зубообрабатывающие і резьбофрезерные верстати і их наладка, 1972.
  7. Мильштейн М.З. Нарезание зубчатых колес, 1972.
  8. Овумян Г.Г., Адам А.И. Справочник зубореза, 1983.
  9. Птицин Г.А., Кокичев В.Н. Зуборезные верстати, 1957.
  10. Шавлюга Н.И. Расчет і примеры наладок зубофрезерных і зубодолбежных верстатів, 1978.
  11. Руководящий материал для конструкторов, проектирующих технологическую оснастку. Основні данные і посадочные места металлорежущих верстатів. НИИМАШ, 1968.









Заказать

Кто владеет информацией - тот владеет миром.

Натан Ротшильд