Виробник токарного верстата 250ІТВМ - Іжевський верстатобудівний завод Іжмаш , заснований у 1807 році.
Історія верстатобудування на Іжевському машинобудівному заводі "Іжмаш" починається 28 липня 1930 р. після виходу наказу №181 про створення верстатобудівного відділу.
Першою продукцією верстатобудівного виробництва на заводі став токарний верстат фірми "Леве" із зовнішньою трансмісією.
Найбільш масовими моделями універсальних токарних верстатів, випущеними в різний час, стали "Удмурт", "Удмурт-2" (161-АМ), ІЖ-250, 1І611П, 1ІС611В, 95ТС, 250ІТВМ, 250ІТВМ4 та токар.
Верстати токарно-гвинторізні моделей 250ІТВМ призначені для токарної обробки в центрах, патроні або цанзі, а також для нарізування різьблень метричної, модульної та дюймової для експлуатації на великих та малих підприємствах.
Верстати можуть застосовуватися в інструментальному та приладобудівному виробництві, пов'язаному з точною обробкою невеликих за розмірами деталей.
З метою тривалого збереження точності обробки верстати 250ІТВМ необхідно використовувати тільки для фінішних або напівчистових операцій. Верстат моделі 250ІТВМФ1 оснащений системою цифрової індикації (надалі УЦІ), що дозволяє підвищити продуктивність праці за рахунок скорочення допоміжного часу на пробні проходи, вимірювання деталей. Застосування УЦІ полегшує роботу токаря за рахунок виключення розрахунків та необхідності запам'ятовування оборотів лімбу.
Конструкція універсальних токарно-гвинторізних верстатів моделей 250ІТВМ виконана на базі верстата ІЖ1І611П та 250-ІТВ (ІЖ 250-ІТВ) .
Верстат моделі 250ІТВМ є базовою моделлю для верстатів 250ІТВМ.03, 250ІТВМФ1, 250ІТПМ.
Верстат моделі 250ІТВМФ1 додатково оснащується пристроєм цифрової індикації (УЦІ).
Верстат 250ІТПМ (клас точності П за ГОСТ 8-82) застосовується для виконання грубіших і менш точних робіт і виготовляється за особливим замовленням.
Конструкція верстата моделі 250ІТВМ.03 відрізняється від базової моделі 250ІТВМ великою міжцентровою відстанню (500 мм та 750 мм)
Привід головного руху здійснюється від електродвигуна через дванадцяти швидкісний редуктор, клинові та поліклінові ремені. При повороті маховика у двох селекторних дисках створюється певна комбінація отворів під фіксуючі пальці важелів, що перемикають блоки шестерень. Після цього відтягуванням рукоятки на себе спочатку здійснюється пригальмовування шестерень, що обертаються, а потім їх перемикання. У передній бабці розміщені приймальний шків, шпиндель, перебір 1:8, ланка збільшення кроку різьблення. Верстат моделі 250 ІТВМФ1 оснащений системою цифрової індикації (УЦІ).
Оснащення верстата УЦІ дозволяє:
Для точного відліку поперечних переміщень передбачено механізм-верньєр, що дозволяє здійснювати переміщення 0,005 мм/об. Коробка подач забезпечує широкий діапазон величин різьби, подовжньої і поперечної подач. Для нарізування точного різьблення передбачено пряме з'єднання ходового ггвинта з гітарою, минаючи механізм коробки подач.
Фартух закритого типу забезпечує поздовжні та поперечні подачі супорта вручну та механічно від ходового валика, а також нарізування різьблення за допомогою ходового ггвинта. Керування подачами здійснюється однією рукояткою. Напрямок включення рукоятки збігається з напрямком переміщення супорта. Наявність блокувального пристрою виключає можливість одночасного включення ходового ггвинта та ходового валика, а також поздовжньої та поперечної подач. На верстаті встановлюються електродвигуни та апаратура, розраховані на напругу 380 В трифазного змінного струму частотою 50Гц, напрузі місцевого освітлення 36 В. Підключення верстата до електромережі здійснюється пакетним вмикачем.
Клас точності верстатів 250ІТВМ за ГОСТ 8-82
Верстати призначені для використання в умовах УХЛ4 ГОСТ 15150-69.
У верстатах використані винаходи за авторськими свідоцтвами 173094, 312739, 249142, 28М05, 288496, 583912, 831503, 1199461.
Верстати сертифіковані. Сертифікат відповідності № РОСС UA.АЯ04.В10876, термін дії до 17.06.2006 року.

Габарити робочого простору верстата 250ітвм

Фото токарно-гвинторізного верстата 250итвм
Фото токарно-гвинторізного верстата 250ітвм. Завантажити у збільшеному масштабі

Фото токарно-гвинторізного верстата 250итвм
Фото токарно-гвинторізного верстата 250ітвм. Завантажити у збільшеному масштабі

Фото передньої бабки токарно-гвинторізного верстата 250итвм

Фото передньої бабки токарно-гвинторізного верстата 250итвм
Фото передньої бабки токарно-гвинторізного верстата 250ітвм. Завантажити у збільшеному масштабі

Шпиндель токарно-гвинторізного верстата 250итвм

Суппорт токарно-гвинторізного верстата 250итвм
Супорт токарно-гвинторізного верстата 250ітвм. Завантажити у збільшеному масштабі

Розташування основних вузлів токарного верстата 250ітвм

Розташування органів керування токарним верстатом 250итвм

Список графических символів верстата 250итвм
Список графических символів токарно-гвинторізного верстата 250ИТВМ. Скачать в увеличенном масштабе
Електроустаткування верстата осуществляет:
Питание ланцюгів електроустаткування осуществляется следующими напряжениями:
Питание верстата осуществляется от сети трехфазного переменного тока напряжением 380 В, частотой 50 Гц. Качество електроенергии должно соответствовать ГОСТ 13109-97
На станке установлено 3 трехфазных асинхронных короткозамкнутых електродвигуна:
Электрошкаф з аппаратурой керування установлен за передньої бабкой.
Ввод питающих проводов може быть выполнен сверху или знизу через отверстие з резьбой G 1/2-B в угольнике і сальник для уплотнения електрических кабелей.
Подключение верстата к питающей сети должно производиться изолированным медным проводом сечением не менее 1,5 мм².
Над передньої бабкой на пульті расположены органы керування і сигнализации:
На станке моделі 250ИТВМФ1 установлены блоки индикации
Увімкнення і відключення системы цифровой индикации на станке 250ИТВМФ1 производится выключателями, установленными непосредственно на блоках индикации.
Освещение робочого места производится светильником Е1 з гибкой стойкой. Освещение включается і отключается выключателем S6, установленным на светильнике.
Выключатель S3, действующий от рукоятки переключения ступеней редуктора, предназначенный для торможения двигуна головного приводу при переключении частоти обертання, расположен з левой стороны редуктора.
Выключатели S4 і S5, действующие от рукоятки керування для увімкнення, отключения і реверсирования шпинделя, установлены з правой стороны станины.
Микровыключатель S7 для блокировки обертання шпинделя при открытом ограждении патрона установлен на боковой стенке електрошафи.
Микровыключатель S8 для отключения верстата от питающей сети при открывании дверки електрошафи установлен внутри електрошафи.
Выключатель SP1(B составе реле давления) для блокировки увімкнення обертання шпинделя при отсутствии змазки установлен на станції змазки.
При електромонтаже електроустаткування применена следующая расцветка проводов:
Работа електроустаткування верстатів моделей 250ИТВМ.01, 250ИТВМ.03, 250ИТВМФ1 определяется електрической принципиальной схемой 250ИТВМ.90.000ЭЗ в соответствии з рисунком 3 і перечнем елементів 250ИТВМ.90.000ПЭЗ в соответствии з таблицей 3.
Перед началом роботи необходимо убедиться, что вводной выключатель Q1 находится во включенном состоянии, о чем должна показывать сигнальная лампочка H1 а рукоятка керування вращением шпинделя в нейтральном (среднем) положении, Затем нажатием выключателя S2 включить двигатель станції змазки М2,(выключатель S2 удержать в нажатом состоянии до появлении масла в глазке маслоуказателя передньої бабки).
Пуск двигуна Ml головного приводу осуществляется переводом рукоятки керування в верхнее ИЛИ В нижнее положение. В верхнем положении рукоятки нажимается выключатель S4, который включит пускатель К2, при етом будет прямое вращение електродвигуна M1. При переключении рукоятки в нижнее положение нажимается выключатель S5, который включит пускатель КЗ, двигателю M1 будет обеспечено обратное вращение.
При установці рукоятки керування из верхнего или нижнего положения в нейтральное (среднее) отключится пускатель К2 или КЗ, включится реле К5 пристроя контроля торможения А1, которое своим замыкающим контактом включит пускатель торможения К4, другим своим замыкающим контактом подключит вход електронного усилителя на транзисторах V5,V6 к измерительному мосту, образованному статорными обмотками електродвигуна M1 і резисторами R1...R3, а переключающим контактом запустит реле часу на транзисторе V9 в соответствии з рисунком 4 і таблицей 4.
Электродинамическое торможение происходит путем подачі постоянного тока от выпрямительных диодов V7 і V8, расположенных в устройстве контроля торможения А1 в обмотки статора двигуна.
В процессе електродинамического торможения измерительным мостом вырабатывается сигнал обертання в виде переменного напряжения, который і удерживает реле К5 во включенном состоянии. При останове ротора електродвигуна сигнал обертання исчезает, реле К5 отключается і отключает пускатель К4.
При отсутствии налаштування пристроя контроля торможения реле К5 отключается по сигналу реле часу через 5-8 секунд після его увімкнення.
Переключення частоти обертання редуктора осуществляется его рукояткой, действующей на выключатель S3, который размыкает ланцюг обертання двигуна і соединяет ланцюг електродинамического торможения. После переключения скорости при отпускании рукоятки ланцюг обертання двигуна Ml восстанавливается.
При срабатывании тепловой защиты во время обертання шпинделя відключення двигуна происходит только після окончания обробки. После чего увімкнення обертання шпинделя возможно только після восстановления кнопки возврата теплового реле в исходное состояние.
Увімкнення і відключення електронасоса охлаждения производится выключателем Q2.
Пристрій выполнено в виде отдельного блока по схеме електрической принципиальной в соответствии з рисунком 4. Список елементів к схеме в соответствии з таблицей 4.
Cклад пристроя:
Работоспособность пристроя контроля торможения проверяется включением і вимкненням шпинделя на максимальной его скорости.
Пристрій считается настроенным, если при полной остановке шпинделя происходит автоматическое відключення пускателя К4.
Проверку производить при прямом і обратном вращении шпинделя.
ВНИМАНИЕ! В СЛУЧАЕ НЕОТКЛЮЧЕНИЯ ПУСКАТЕЛЯ К4 ПОСЛЕ ОСТАНОВКИ ШПИНДЕЛЯ - НЕМЕДЛЕННО ОТКЛЮЧИТЬ ВВОДНОЙ ВЫКЛЮЧАТЕЛЬ Q1 И ПРОИЗВЕСТИ НАСТРОЙКУ УСТРОЙСТВА КОНТРОЛЯ ТОРМОЖЕНИЯ.
ВНИМАНИЕ! ЕСЛИ НЕ ПРОИЗОШЛО ОТКЛЮЧЕНИЕ К4 И К5 В ТЕЧЕНИЕ УКАЗАННОГО ВРЕМЕНИ, ВО ИЗБЕЖАНИИ ВЫХОДА ИЗ СТРОЯ ДВИГАТЕЛЯ Ml, ТРАНСФОРМАТОРА Т2 И ДИОДОВ V7 И V8 НЕМЕДЛЕННО ОТКЛЮЧИТЬ ВВОДНОЙ ВЫКЛЮЧАТЕЛЬ Q1. В дальнейшем руководствоваться разделом 4.6.2.
После непредвиденного перерыва в електроснабжении необходимо отвести різець от заготовки, рукоятку керування шпинделем установить в нейтральное положение і в дальнейшем руководствоваться разделами 4.4.2, 4.4.3.
Електроустаткування верстата выполняет наступні блокировки:
В електросхеме верстата предусмотрены наступні меры предупреждения аварийных ситуаций, выхода из строя окремих елементів верстата, отключения енергоживлення, обеспечивающие безопасность роботи:
На пульті керування верстатом установлена сигналізація:
При первоначальном пуске верстата необходимо внешним осмотром електроустаткування проверить:
Вводной выключатель Q1 установить в положение ВКЛЮЧЕНО. Для етого необходимо вставить ключ (поставляемый в комплекте со верстатом) в гнездо замка запирающего пристроя і повернуть на 180° по часовий стрелке, після чего установить рукоятку в положение ВКЛЮЧЕНО. На пульті керування должна включиться сигнальная лампа СЕТЬ (H1).
Нажатием выключателя S2(зеленого цвета) проверить правильность обертання двигуна насоса змазки М2. При несоответствии обертання необходимо поменять любые две фазы в електропитании верстата между собой.
ВНИМАНИЕ! ПРИ ПЕРВОНАЧАЛЬНОМ ПУСКЕ НЕОБХОДИМО УБЕДИТЬСЯ В РАБОТОСПОСОБНОСТИ УСТРОЙСТВА КОНТРОЛЯ ТОРМОЖЕНИЯ. ПРИ ЕГО НЕИСПРАВНОСТИ ИЛИ НЕПРАВИЛЬНОЙ НАСТРОЙКЕ ВОЗМОЖЕН ПЕРЕГРЕВ И ВЫХОД ИЗ СТРОЯ ЭЛЕКТРОДВИГАТЕЛЯ Ml, ТРАНСФОРМАТОРА Т2 ИЛИ ВЫПРЯМИТЕЛЬНЫХ ДИОДОВ V7 V8. ИНСТРУКЦИЯ ПО НАСТРОЙКЕ УСТРОЙСТВА КОНТРОЛЯ ТОРМОЖЕНИЯ ДАНА В ПУНКТЕ 4.4.10.
Проверить работу електроустаткування без вироби (на холостом ходу).
Проверить наличие защитных устройств і блокировок указанных в разделе 4.2.
На верстат моделі 250ИТВМФ1:
«УЦИ устанавливается на верстат моделі 250ИТВМФ1 і состоит из двух преобразователей линейных перемещений (ПЛП) і пристроя цифровой индикации (УЦИ). УЦИ позволяет судить о месте положения резца в процессе обробки детали. Начало обробки совмещается з 0 на табло УЦИ.
Установка преобразователя координаты X (250ИТВМФ1.94.01.000) предназначена для преобразования перемещений поперечної каретки суппорта в електрический сигнал, который преобразуется в цифровую форму з вводом показаний на табло УЦИ координаты X.
Корпус ПЛП установлен на опорах 5 і 7, закрепленных в Т - образном пазу поперечної каретки і перемещается вместе з ней, а головка 2 преобразователя крепится к планке 8, закрепленной в пазу суппорта 3, і имеющей возможность переміщення для совмещения базовых поверхностей преобразователя і головки.
Установка преобразователя координаты Z (250ИТВМФ1.94.02.000) предназначена для преобразования продольных перемещений суппорта в електрический сигнал, который преобразуется в цифровую форму з выводом показаний на табло УЦИ координаты Z.
Корпус ПЛП установлен на задньої стенке станины. Связь корпуса з кареткой осуществляется кронштейном 3, несущим головку.
Необходимо обратить внимание на то, чтобы зазор между преобразователями і головками был в пределах 1 ± 0,2 мм на всей длине ходу, а непараллельность базовых поверхностей преобразователей і головок направлению переміщення не более 0,1 мм,
На станке должен применяться стандартный инструмент, предназначенный для универсальных токарно-винторезных верстатів.
К обслуговування верстата допускается персонал, ознакомленный з електрообладнанням верстата і имеющий удостоверение по технике безопасности на право работ при експлуатации електроустановок з напряжением до 1000 В.
Эксплуатацию і обслуговування електроустаткування выполнять в соответствии з действующими документами: "Правила експлуатации електроустановок потребителей" і "Правила техники безопасности при експлуатации електроустановок потребителей"
При установці верстат должен быть надежно заземлен путем подключения к зажиму РЕ. Подключение верстата к ланцюги заземления должно производиться медным проводом сечением не менее 1,5 мм².
Болты заземления і ввод електроживлення находятся з левой стороны верстата в нижней частини електрошафи.
Качество заземления должно быть проверено внешним осмотром і на непрерывность ланцюги защиты в соответствии з требованием ГОСТ Р МЭК 60204-1-99.
Все аппараты керування, не требующие обязательной установки на станке, находятся в електрошкафу. Степень защиты електрошафи - IP44.
ЗАПРЕЩАЕТСЯ РАБОТА СТАНКА С ОТКРЫТОЙ ДВЕРЬЮ ЭЛЕКТРОШКАФА.
При ремонтi і перерывах в работе вводной выключатель должен быть отключен.
ВНИМАНИЕ! ВЕРХНИЕ КОНТАКТЫ ВВОДНОГО АВТОМАТИЧЕСКОГО ВЫКЛЮЧАТЕЛЯ Q1 И КОНТАКТЫ БЛОКА ЗАЖИМОВ Х2 НАХОДЯТСЯ ПОД НАПРЯЖЕНИЕМ 380 В И ПРИ ОТКЛЮЧЕННОМ ВВОДНОМ ВЫКЛЮЧАТЕЛЕ. СЛУЧАЙНОЕ ПРИКОСНОВЕНИЕ К ЭТИМ КОНТАКТАМ ОПАСНО ДЛЯ ЖИЗНИ.
Для обеспечения безопасной роботи на станке предусмотрены:
Действие всех електрических блокировок і выключателя "АВАРИЙНЫЙ ОСТАНОВ" должно проверяться на холостом ходу при первоначальном пуске верстата, а также при профилактических работах.
КАТЕГОРИЧЕСКИ ЗАПРЕЩАЕТСЯ РАБОТАТЬ НА СТАНКЕ ПРИ НЕИСПРАВНОСТЯХ В РАБОТЕ ЗАЩИТ, ЭЛЕКТРИЧЕСКИХ БЛОКИРОВОК И ВЫКЛЮЧАТЕЛЯ АВАРИЙНЫЙ ОСТАНОВ ", А ТАКЖЕ ПРИ ОТКРЫТОМ ОГРАЖДЕНИИ ШПИНДЕЛЯ И ДВЕРКИ ЭЛЕКТРОШКАФА В ПРОЦЕССЕ ОБРАБОТКИ ДЕТАЛИ. ПРИ НЕПРЕДВИДЕННОМ ОСТАНОВЕ ШПИНДЕЛЯ, ВЫКЛЮЧИТЬ СТАНОК НАЖАТИЕМ ВЫКЛЮЧАТЕЛЯ S1 («АВАРИЙНЫЙ ОСТАНОВ»).
Для обеспечения нормальной роботи двигуна головного приводу частота включений на максимальной частоте обертання шпинделя не должна превышать четырех в минуту. На частотах обертання шпинделя ниже максимальной частота включений може быть увеличена.
При работе на станке моделі 250ИТВМФ1 со снятыми блоками цифровой индикации разъемы кабелей живлення закрыть крышками.

Принципиальная електрична схема токарно-гвинторізного верстата 250ИТВМ

Список елементів токарно-гвинторізного верстата 250ИТВМ
Список елементів токарно-гвинторізного верстата 250ИТВМ. Скачать в увеличенном масштабе

Принципиальная електрична схема токарно-гвинторізного верстата 250ИТВМ

Список елементів токарно-гвинторізного верстата 250ИТВМ
Список елементів токарно-гвинторізного верстата 250ИТВМ. Скачать в увеличенном масштабе

Размещение електроустаткування токарно-гвинторізного верстата 250ИТВМ

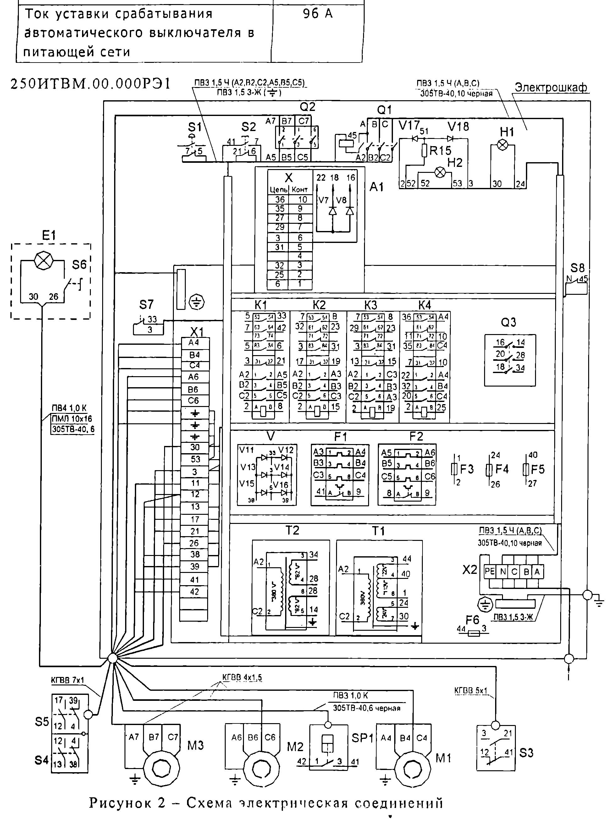
Схема з'єднань токарно-гвинторізного верстата 250ИТВМ
Схема з'єднань токарно-гвинторізного верстата 250ИТВМ. Скачать в увеличенном масштабе
| Наименование параметра | 250ИТВМ.01 | 250ИТВМ.03 | 250ИТВМФ1 |
|---|---|---|---|
| Основні параметри | |||
| Класс точності по ГОСТ 8-82 | В | В | В |
| Наибольший диаметр заготовки обрабатываемой над станиной, мм | 240 | 240 | 240 |
| Наибольший диаметр заготовки обрабатываемой над суппортом, мм | 168 | 168 | 168 |
| Наибольший диаметр заготовки устанавливаемой над станиной, мм | 300 | 300 | 300 |
| Наибольшая длина заготовки (РМЦ), мм | 500 | 750 | 500 |
| Шпиндель | |||
| Диаметр сквозного отверстия в шпинделе, мм | 25 | 25 | 25 |
| Наибольший диаметр прутка, проходящий через отверстие в шпинделе, мм | 24 | 24 | 24 |
| Количество ступеней прямого обертання шпинделя, об/мин | 21 | 21 | 21 |
| Частота прямого обертання шпинделя, об/мин | 25..2500 | 25..2500 | 25..2500 |
| Количество ступеней обратного обертання шпинделя, об/мин | 21 | 21 | 21 |
| Частота обратного обертання шпинделя, об/мин | 25..2500 | 25..2500 | 25..2500 |
| Размер внутреннего конуса в шпинделе, М | Морзе 4 | Морзе 4 | Морзе 4 |
| Кінець шпинделя по ГОСТ 12593-72 | 4 | 4 | 4 |
| Допустимый крутящий момент на шпинделе, Нм | 1051,90 | 1051,90 | 1051,90 |
| Подачи | |||
| Наибольшая длина ходу каретки суппорта, мм | 500 | 500 | 500 |
| Цена деления лимба продольного переміщення суппорта, мм | 0,1 | 0,1 | 0,1 |
| Продольное перемещение за один оборот лимба, мм | 20 | 20 | 20 |
| Наибольшее поперечное перемещение суппорта, мм | 165 | 165 | 165 |
| Цена деления лимба поперечного переміщення суппорта, мм | 0,05 | 0,05 | 0,05 |
| Поперечное перемещение за один оборот лимба, мм | 3 | 3 | 3 |
| Наибольшее перемещение верхних салазок суппорта, мм | 120 | 120 | 120 |
| Число ступеней продольных подач | |||
| Пределы рабочих подач продольных, мм/об | 0,01..1,8 | 0,01..1,8 | 0,01..1,8 |
| Число ступеней поперечных подач | |||
| Пределы рабочих подач поперечных, мм/об | 0,005..0,9 | 0,005..0,9 | 0,005..0,9 |
| Скорость быстрых перемещений суппорта, продольных, м/мин | нет | нет | нет |
| Скорость быстрых перемещений суппорта, поперечных, м/мин | нет | нет | |
| Количество нарезаемых різьб метрических | |||
| Пределы шагов нарезаемых різьб метрических, мм | 0,2..48 | 0,2..48 | 0,2..48 |
| Количество нарезаемых різьб дюймовых | |||
| Пределы шагов нарезаемых різьб дюймовых | 24..0,5 | 24..0,5 | 24..0,5 |
| Количество нарезаемых різьб модульных | |||
| Пределы шагов нарезаемых різьб модульных | 0,2..12 | 0,2..12 | 0,2..12 |
| Количество нарезаемых різьб питчевых | нет | нет | нет |
| Дискретность УЦИ по координатам X/Z. мм | - | - | 0,001/ 0,005 |
| Задня бабка | |||
| Размер внутреннего конуса пиноли задньої бабки по ГОСТ 25557-82 | Морзе 3 | Морзе 3 | Морзе 3 |
| Центр пиноли задньої бабки по ГОСТ 13214-79 | Морзе 3 | Морзе 3 | Морзе 3 |
| Наибольшее перемещение пиноли задньої бабки, мм | 85 | 85 | 85 |
| Цена деления линейки перемещение пиноли, мм | 1 | 1 | 1 |
| Цена деления лимба перемещение пиноли, мм | 0,05 | 0,05 | 0,05 |
| Поперечное смещение пиноли, мм | ±10 | ±10 | ±10 |
| Електроустаткування | |||
| Количество електродвигателей на станке | 3 | 3 | 3 |
| Електродвигун головного привода, кВт/ об/мин | 3/ 1410 | 3/ 1410 | 3/ 1410 |
| Електродвигун станції змазки, кВт/ об/мин | 0,09/ 1350 | 0,09/ 1350 | 0,09/ 1350 |
| Електродвигун насоса охлаждения, кВт/ об/мин | 0,18/ 2730 | 0,18/ 2730 | 0,18/ 2730 |
| Насос охлаждения (помпа) | ПА-22 | ПА-22 | ПА-22 |
| Суммарная мощность електродвигателей на станке, кВт | 3,27 | 3,27 | 3,27 |
| Габаритные розміри і масса верстата | |||
| Габарити верстата (длина ширина высота), мм | 1790_810_1400 | 2005_810_1400 | 1790_810_1400 |
| Масса верстата, кг | 1180 | 1240 | 1190 |