Виробник токарного верстата моделі ТВ-125 - Савелівський машинобудівний завод СМЗ , заснований у 1915 році.
У 1946 році наказом міністерства авіаційної промисловості визначено профіль підприємства як заводу з випуску токарних прецизійних високоточних верстатів.
У 1966 році підприємство перетворено на Савелівський машинобудівний завод (СМЗ) п/я-4.
В 1979 завод стає Савеловським виробничим об'єднанням "Прогрес" (СПО "Прогрес").
У березні 2012 року Об'єднана промислова корпорація "ОборонПром" створила 100% дочірнє товариство з обмеженою відповідальністю "Савелівський машинобудівний завод" (ТОВ СМЗ).
Прообразом верстатів моделей ТВ-125 (підвищеної точності) та ТВ-125В (високої точності) став токарно-гвинторізний верстат Schaublin 120VM Ø 250 х 600 (розробка 1941 року) швейцарської фірми Schaublin Machines SA, яка була заснована більше століття
Універсальний токарний верстат ТВ-125 випускався на Савелівському машинобудівному заводі з 1961 року.
Верстат універсальний токарно-гвинторізний ТВ-125 , варіаторний, інструментального класу, призначений для виконання найрізноманітніших токарних робіт, у тому числі для нарізування різьблення: метричної, дюймової, модульної.
Токарний верстат ТВ-125 здатний обробляти невеликі заготовки з максимальними габаритами Ø 260х600 мм, призначений для роботи в інструментальному виробництві.
Шпиндель верстата ТВ-125 отримує обертання від 3-х швидкісного електродвигуна з варіатором та від перебору передньої бабки в діапазоні 42..2800 об/хв.
З вихідного шківа варіатора, залежно від швидкості електродвигуна, на приймальний шків шпинделя передається три діапазони високих швидкостей:
Всередині діапазонів швидкість обертання регулюється плавно безступінчасто за допомогою варіатора.
Підключення перебору передньої бабки додає ще 3 діапазони частот обертання шпинделя:
Напрямок обертання шпинделя змінюється реверсуванням електродвигуна.
Шпиндель змонтований на двох підшипниках: передній - роликовий радіальний дворядний (60 х 95 х 26), задній - кульковий радіально-упорний (40 х 80 х 18), завзятий - кульковий (40 х 69 х 14).
Регулювання переднього підшипника здійснюється за допомогою двох напівкілець та гайки.
Передній шків розташований між двома незалежними підшипниками, що розвантажують шпиндель від зусилля натягу приводного ременя.
Передній кінець шпинделя токарного верстата ТВ-125 має різьблення М48х3, тому для встановлення токарного або повідкового патрона на шпиндель необхідний проміжний фланець (його називають також план-шайба) (див. статтю Токарні патрони ).
Коробка подач служить тільки для керування ходовим валиком і не має відношення до нарізування різьблення. Рух на вхідний вал коробки передається безпосередньо від шпинделя за допомогою черв'ячної передачі. Коробка видає всього 8 ступенів поздовжніх подач - 0,012..0,240 мм/про і 8 ступенів поперечних - 0,060..0,120 мм/про.
Коробка подач складається з механізму з вбудованими 4-ступінчастиними конусами зубчастиних коліс і висувної шпонки. Цей механізм дає 4 подачі. Один із конусів закріплений жорстко на валу, інший сидить вільно і кожне колесо може бути пов'язане з валом за допомогою висувної шпонки.
Нарізання різьблення здійснюється без коробки подач. Вибір кроку різьблення можливий лише за допомогою набору 4-х змінних шестерень гітари. Особливість верстата - ходовий гвинт знаходиться всередині станини і не видно зовні.
На верстаті тв125 є механічний, регульований зупинка поздовжньої подачі. Поперечне переміщення супорта та поздовжнє фартуха може затискатися спеціальними притисками.

Габаритні розміри робочого простору токарного верстата ТВ-4

Ескіз кінця шпинделя токарного верстата ТВ-125

Фото токарного верстата ТВ-125В

Ноніус поперечної подачі токарного верстата ТВ-125П

Фартук токарного верстата ТВ-125П

Відновлений токарний верстат Schaublin 120VM
Восстановленный токарний верстат Schaublin 120VM. Дивитись у збільшеному масштабі

Восстановленный токарний верстат Schaublin 120-VM
Восстановленный токарний верстат Schaublin 120-VM. Дивитись у збільшеному масштабі

Восстановленный токарний верстат Schaublin 120-VM
Восстановленный токарний верстат Schaublin 120-VM. Дивитись у збільшеному масштабі

Розташування складових частин токарного верстата ТВ-125

Розташування органів керування токарним верстатом ТВ-125

Кінематична схема токарного верстата ТВ-125
Схема кінематична токарного верстата ТВ-125. Дивитись у збільшеному масштабі

Коробка подач токарного верстата ТВ-125
Коробка подач токарного верстата ТВ-125. Дивитись у збільшеному масштабі

Супорт токарного верстата ТВ-125
Супорт токарного верстата ТВ-125. Дивитись у збільшеному масштабі

Супорт токарного верстата ТВ-125
Супорт токарного верстата ТВ-125. Дивитись у збільшеному масштабі

Фото варіатора токарного верстата ТВ-125

Варіатор токарного верстата ТВ-125
Варіатор токарного верстата ТВ-125. Дивитись у збільшеному масштабі

Фото шпинделя токарного верстата ТВ-125

Шпиндель токарного верстата ТВ-125

Шпиндель токарного верстата ТВ-125
Шпиндель токарного верстата ТВ-125. Дивитись у збільшеному масштабі

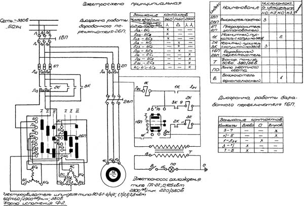
Електрична схема токарного верстата ТВ-125
Схема електрична токарно-гвинторізного верстата ТВ-125. Дивитись у збільшеному масштабі
| Наименование параметра | ТВ-125П | 1612п | ТС-135м |
|---|---|---|---|
| Основні параметри | |||
| Класс точності | П | П | П |
| Наибольший диаметр заготовки, обрабатываемой над станиной, мм | 260 | 260 | 260 |
| Наибольший диаметр заготовки, обрабатываемой над суппортом, мм | 135 | 140 | 140 |
| Наибольшая длина заготовки (РМЦ), мм | 600 | 500 | 500 |
| Наибольшая длина обточки, мм | 500 | 400 | 400 |
| Высота оси центров над плоскими направляющими станины (высота центров), мм | 125 | 135 | 135 |
| Высота от опорной поверхности резца до линии центров, мм | 16 | 16 | 16 |
| Наибольшее расстояние от линии центров до кромки резцедержателя, мм | 145 | 145 | 145 |
| Шпиндель | |||
| Тип опорных підшибників | Качения | Скольжения | Качения |
| Диаметр сквозного отверстия в шпинделе, мм | 25 | 20 | 20 |
| Число ступеней частот прямого обертання шпинделя (число рабочих швидкостей) | 11 | 12 | 12 |
| Частота прямого обертання шпинделя, об/мин | 42..2800 (б/с) | 33,5..1520 | 47,5..2144 |
| Размер внутреннего конуса в шпинделе, М | Конус морзе 4 | Конус морзе 3 | Конус морзе 3 |
| Кінець шпинделя | М48 х 3 | М45 х 4,5 | М45 х 4,5 |
| Торможение шпинделя | есть | нет | нет |
| Блокировка рукояток | есть | есть | есть |
| Суппорт. Подачи | |||
| Наибольшее перемещение поздовжньої каретки суппорта от руки, мм | 580 | 560 | 560 |
| Наибольшее перемещение поперечної каретки суппорта, мм, мм | 170 | 180 | 180 |
| Перемещение поздовжньої каретки суппорта на одно деление лимба, мм | 0,05 | нет | нет |
| Перемещение поздовжньої каретки суппорта на один оборот лимба, мм | 20 | ||
| Перемещение поперечної каретки суппорта на одно деление лимба, мм, мм | 0,005 | 0,02 | 0,01 |
| Перемещение поперечної каретки суппорта на один оборот лимба, мм | 3 | ||
| Число ступеней продольных і поперечных подач | 8 | 9 | 9 |
| Пределы продольных рабочих подач, мм/об | 0,012..0,240 | 0,008..0,2 | 0,018..0,46 |
| Пределы поперечных рабочих подач, мм/об | 0,060..0,120 | 0,003..0,075 | 0,0067..0,171 |
| Количество нарезаемых різьб метрических | 90 | 70 | 70 |
| Пределы шагов нарезаемых різьб метрических, мм | 0,2..12,2 | 0,2..12,7 | 0,2..12,7 |
| Количество нарезаемых різьб дюймовых | 25 | 25 | 25 |
| Пределы шагов нарезаемых різьб дюймовых | 2..24 | 2..24 | 2..24 |
| Количество нарезаемых різьб модульных | 17 | 12 | 12 |
| Пределы шагов нарезаемых різьб модульных | 0,25..3 | 0,25..3 | 0,25..3 |
| Скорость быстрых перемещений суппорта, м/мин | нет | нет | нет |
| Різьбопокажчик | нет | нет | нет |
| Блокировка рукояток | есть | ||
| Захист от перегрузки | есть | есть | есть |
| Выключающие упоры | есть | есть | есть |
| Резцовые салазки | |||
| Наибольшие розміри державки резца (ширина х высота), мм | 16 х 16 | 16 х 25 | 16 х 20 |
| Наибольшее перемещение резцовых салазок, мм | 80 | 95 | 95 |
| Перемещение резцовых салазок на одно деление лимба, мм | 0,01 | 0,05 | 0,05 |
| Наибольший угол поворота резцовых салазок, град | 360° | ±90° | ±90° |
| Цена деления шкалы поворота резцовых салазок, град | 1° | 1° | 1° |
| Число резцов в резцовой головке | 4 | 4 | 4 |
| Різьбопокажчик | нет | ||
| Задня бабка | |||
| Диаметр пиноли задньої бабки, мм | 40 | ||
| Цена деления шкалы переміщення задньої бабки, мм | 1 | ||
| Цена деления нониуса переміщення задньої бабки, мм | 0,05 | ||
| Конус отверстия в пиноли задньої бабки | Морзе №3 | Морзе №3 | Морзе №3 |
| Наибольшее перемещение пиноли, мм | 80 | 110 | 110 |
| Величина поперечного смещения корпуса бабки, мм | ±12 | ±15 | ±15 |
| Електроустаткування | |||
| Количество електродвигателей на станке | 2 | 2 | 2 |
| Мощность електродвигуна головного привода, кВт | 1,7/ 2,1/ 2,8 | 1,7 | 2,8 |
| Тип електродвигуна головного привода | А-41/4 | А-42/4 | |
| Мощность електродвигуна насоса охлаждения, кВт | 0,125 | 0,125 | 0,125 |
| Габарити і масса верстата | |||
| Габарити верстата (длина ширина высота), мм | 1780 х 720 х 1265 | 1725 х 860 х 1400 | 1725 х 860 х 1400 |
| Масса верстата, кг | 1100 | 800 | 800 |