Виробник токарно-гвинторізного верстата SN-50 - TOS Trencin Словаччина, http://www.trens.sk
Засновано підприємство у 1937 році фірмою Walter, у 1998 підприємство отримало найменування АТ «TRENS», з 2011 року TRENS SK, as
АТ «ТРЕНС CK» (TRENS SK) є найбільшим виробником металорізальних верстатів у Словаччині.
Самостійним випуском металообробних верстатів підприємство займається з 1951 року.
Виробнича лінійка Trens складається з універсальних токарно-гвинторізних верстатів, токарних верстатів з ЧПУ, токарно-фрезерних обробних центрів із похилою станиною.
Токарно-гвинторізний універсальний верстат SN-50 традиційної кострукції призначений для обробки заготовок середнього розміру в умовах індивідуального та дрібносерійного виробництва.
Токарний верстат SN-50 призначений для виконання найрізноманітніших токарних, різьбонарізних та свердлильних робіт. Верстат дозволяє нарізати зовнішні та внутрішні метричні, дюймові, модульні та питчі різьблення.
Верстат SN-50 призначений для виконання широкого спектру токарних робіт:
Технічні особливості верстата SN-50
У комплект поставки токарно-гвинторізного верстата SN 50 C за замовчуванням входить:
Додатково разом з токарно-гвинторізним верстатом SN 50 C можна замовити такі пристрої:

Загальний вигляд токарно-гвинторізного верстата SN-50
Фото токарно-гвинторізного верстата SN-50. Дивитись у збільшеному масштабі

Розташування органів керування коробкою швидкостей верстата SN-50C
Комбінацією налаштування трьох важелів на коробці швидкостей можна налаштувати 11 різних швидкостей обертання шпинделя. Важіль (1) знаходиться зверху та важеля (2, 3) знаходяться на передній стороні коробки передач. Положення важелів для налагодження швидкостей наведені на щитку (4).
Настоянка меж обертання шпинделя проводиться двома шестернями, які перебувають під кришками (7, 8).
Важелі (5, 6) служать для налаштування приводу робочих подач супортів.

Розташування органів керування супортами верстата SN-50C
Супорт може бути оснащений або 4-х різцевою головкою – вик. РГ, або універсальним різцеутримувачем марки Multifix (Мультіфікс) - вик. МФ.
Зазори між санчатами та супортами регулюються за допомогою конічними планками за допомогою гвинтів.
У разі потреби каретку можна затиснути зі станиною болтами 1.
Поперечний супорт вручну рухається обертанням маховика 3, оснащеним ноніусом 4. Ноніус фіксується гайкою 5.
Робоче переміщення супорта включається попутним важелем 4.
Верхній супорт 6 можна повертати. Супот зафіксований 4-ма гайками. На супорті є шкала, за допомогою якої налаштовується потрібний кут повороту верхнього супорта. Супорт рухається вручну обертанням маховика 12.
Каретка в поздовжньому напрямку вручну рухається обертанням маховика 8.
На каретку можна зафіксувати рухомий люнет.

Розташування органів керування фартухом верстата SN-50C
Каретка супортів вручну переміщається обертанням маховика 1, який оснащений ноніусом 2 з ціною розподілу 0,1 мм. Ноніус фіксується гайкою 3.
Рукояткою 7 на передній стороні фартуха включається гайка для нарізування різьблення. За її дії важіль 4 заблокований.
Важелем 8 включається фрикційне зчеплення і шпиндель приводиться в обертання.
З лівого боку фартуха є рукоятка 10, яка служить до зупинки шпинделя Робоче переміщення каретки включається попутним важелем 4, який при перевантаженні автоматично відключається. Переміщенням важеля праворуч і ліворуч включено поздовжню подачу, вгору і вниз поперечну подачу.
При обертанні шпинделя проти ходу годинникової стрілки ручка 5 налаштовується вліво (основний режим роботи).
При зупиненні каретки на урорі або при надмірному збільшенні сили різання важіль 4 вимикається. Налагоджувальні пружини 6 налаштовані на сили, зазначені в гол. 1. Залежно від технологічного процесу їх можна регулювати.
Олія в бак наливається через отвор, захищене пробкою 11.

Розташування органів керування коробкою подач верстата SN-50C
Рукояткою (1) вибираємо тип різьблення – метрична або дюймова. Рукоятками (2) і (3) згідно з таблицею переміщень налаштуємо необхідну подачу або крок різьблення. Рукояткою (5) перемикаємо режим роботи приводу – вал або гвинт.
Змінні зубчасті колеса гітари знаходяться під щитом (6). При нарізанні різьби з передатним відношенням 8 : 1 (рукоятка 6, рис. 6) максимальна швидкість обертання не повинна перевищити 250 об/хв.
Повернення супортів у вихідне положення здійснюється зворотним ходом шпинделя, перемиканням рукоятки (8). Різець при цьому має бути виведений із різання. При нарізуванні різьблення можна використовувати пристрій для нарізування різьблення.
Ходовий гвинт (9) захищений від навантаження зрізним штифтом (10). При надмірному перевищенні сили подачі штифт зрізається і гвинт припиняє обертатися. Для заміни звільнити пружину (11) та зрушити втулку (12).
Ходовий вал від перевантаження захищений вимикаючою системою фартуха.

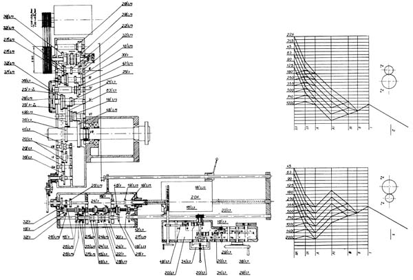
Кінематична схема токарно-гвинторізного верстата SN-50
Кінематична схема токарно-гвинторізного верстата SN-50. Дивитись у збільшеному масштабі
Крутний момент асинхронного двигуна переноситься з шківа електродвигуна клиновими ременями на шків вхідного валу коробки швидкостей. Зміна напряму обертання шпинделя здійснюється за допомогою двох фрикційних зчеплень, вміщених на вхідному валі коробки швидкостей. При вимкненому зчепленні автоматично увімкнено гальмо.
Обертальний рух ходового валу та ходового ггвинта виведено за допомогою шестерень від шпинделя або проміжного валу через змінні зубчасті колеса та через зубчасті передачі в різьбонарізній коробці. Крок різьблення та значення подач встановлюється згідно з таблицями на щитках верстата.
Напрямок подачі супортів включається попутним важелем, який розміщений на фартуху.
Збереження постійної точності направляючих поверхонь станини одна із основних умов збереження точності всього верстата. Тому на напрямні поверхні не можна відкладати предмети, які можуть пошкодити поверхню направляючих ковзання.
Якщо виявитися, що верстат не досяг необхідної точності, потрібно перевірити і при необхідності налаштувати прямолінійність і площинність направляючих поверхонь станини.
З лівого боку на станині знаходиться виїмка шириною 230 мм, після зняття якої можна обточувати деталі великого діаметру.
Між стійками під станиною розташовано на планках висувний піддон для стружки (1).
Крутний момент від електродвигуна на шкіф вхідного валу коробки швидкостей передається клиновими ременями. Клинові ремені натягнуті правильно, якщо прогин найдовшої гілки при завантаженні силою 20Н дорівнює 12 мм.
Шпиндель обертається у трьох підшипниках. З передньої сторони застосовано роликовий дворядний підшипник типу NNK, з заднього боку два шарикопідшипники типу 72.
Крутний момент від коробки швидкостей на шпиндель передається у вигляді зубчастої муфти.
Передній кінець шпинделя випускається у двох виконаннях:
Радіальний та аксіальний зазори в підшипниках встановлені на заводі-виробнику.
У разі зносу підшипників та збільшення зазору рекомендується викликати представника заводу для регулювання підшипників.
Комбінацією налаштування чотирьох важелів на коробці швидкостей можна налаштувати 16 різних швидкостей обертання шпинделя.
Положення важелів для налагодження швидкостей наведені на щитку, який розміщений спереду на шпиндельній бабці.
У процесі експлуатації верстата внаслідок зношування виникає потреба в регулюванні окремих вузлів та елементів.
Фрикційна муфта доступна після зняття кришки на задній стороні коробки швидкостей.
Муфта регулюється двома гайками. Для цього необхідно послабити фіксуючі гвинти. Поворотом гайки на 15 º зазор у муфті зменшується на 0,083 мм. Муфту потрібно налаштувати таким чином, щоб при включенні не прослизала.
При надмірному нагріванні олії в коробці швидкостей рекомендується перевірити зазори в муфті та гальмі.
Якщо при обробці достатньо лише обертання шпинделя проти годинникової стрілки муфту можна вивести з ладу перемиканням тяги, яка знаходиться в нижній частинині позаду коробки швидкостей
Гальмо відрегульоване на заводі – виробнику. У процесі експлуатації верстата внаслідок зношування виникає потреба у регулюванні гальма.
Гальмо регулюється таким чином:
Каретка супортів вручну переміщається обертанням маховика, який оснащений ноніусом, з ціною поділу 0,1 мм. Ноніус фіксується гайкою.
Робоче переміщення каретки включається попутним важелем, який при перевантаженні автоматично вимикається. Переміщенням важеля праворуч і ліворуч включено поздовжню подачу, вгору і вниз поперечну подачу.
При обертанні шпинделя проти годинникової стрілки рукоятка налаштовується вліво (основний режим роботи).
При зупинці каретки на упорі або надмірному збільшенні сили різання важіль вимикається. Налагоджувальні пружини налаштовані на сили, зазначені в гол. 1. Залежно від технологічного процесу їх можна регулювати.
Рукояткою на передній стороні фартуха вмикається гайка для нарізування різьблення. За її дії важіль заблокований.
Важелем включається фрикційне зчеплення, і шпиндель приводиться в обертання. На лівій стороні фартуха знаходиться ручка, яка служить для зупинки шпинделя.
Олія в бак наливається через отвір, захищене пробкою.

Таблиця символів і обозначений токарно-гвинторізного верстата SN-50

Таблиця символів і обозначений токарно-гвинторізного верстата SN-50
| Найменування параметру | S-28 | СН-32 | СН-50 |
|---|---|---|---|
| Основні параметри | |||
| Найбільший діаметр заготовки, що обробляється над станиною, мм | 280 | 330 | 500 |
| Найбільший діаметр заготовки, що обробляється над супортом, мм. | 150 | 168 | 270 |
| Найбільший діаметр обробки над виїмкою, мм | - | 520 | 700 |
| Висота центрів, мм | 132 | 160 | 250 |
| Найбільша довжина заготівлі, що обробляється в центрах (РМЦ), мм | 750 | 750, 1000 | 1000, 1500, 2000 |
| Найбільша маса заготовки, що обробляється в патроні, кг | 80 | ||
| Найбільша маса заготівлі, що обробляється в центрах, кг | 132 | ||
| Шпиндель | |||
| Діаметр наскрізного отвору в шпинделі, мм | 52 | 52 | |
| Число ступенів частот прямого обертання шпинделя | 16 | 24 | |
| Частота обертання шпинделя у прямому напрямку, об/хв | 14..2500 | 22..2000 | |
| Число ступенів частот зворотного обертання шпинделя | 16 | 24 | |
| Частота обертання шпинделя у зворотному напрямку, об/хв | 20..3150 | 14..2500 | 22..2000 |
| Внутрішній конус у шпинделі | M40 | Морзе 6 | Морзе 6 |
| Передній кінець шпинделя | М86 х 6 | V6 | V6 |
| Супорт. Подання | |||
| Найбільше переміщення поперечної каретки супорта, мм | 250 | 300 | |
| Число поздовжніх ступенів подач | 36 | ||
| Межі робочих подач поздовжніх, мм/про | 0,03..3,52 (36 шт) | 0,025..3,2 | 0,05..6,4 |
| Число ступенів поперечних подач | 36 | 38 | |
| Межі поперечних робочих подач, мм/про | 0,01..1,24 (36 шт) | 0,012..1,6 | 0,025..3,2 |
| Швидкість швидких переміщень супорта, поздовжніх, м/хв. | ні | ні | 1,5 |
| Швидкість швидких переміщень супорта, поперечних, м/хв. | ні | ні | 3,0 |
| Кількість нарізних різьблень метричних | 36 | 26 | 29 |
| Межі кроків метричних різьблень, мм | 0,375..44 | 0,25..40 | 0,5..40 |
| Кількість нарізних різьблень дюймових | 36 | 38 | 38 |
| Межі кроків дюймових різьблень, ниток/дюйм | 3/128..2 3/4 | 2..160 | 1..80 |
| Кількість нарізних різьблень модульних | 36 | 21 | 26 |
| Межі кроків модульних різьблень, модуль | 0,375..44 | 0,125..10 | 0,25..20 |
| Кількість нарізних різьблення питних | 36 | 34 | 31 |
| Межі кроків різьблення питних | 3/4..88 | 4..160 | 2..72 |
| Різцеві санки | |||
| Найбільше переміщення різцевих санчат, мм | 140 | 140 | |
| Найбільший кут повороту різцевих санок, град | ±90° | ||
| Найбільший переріз державки різця, мм | 16 х 16 | 20 х 20 | 32 х 20 |
| Число різців у різцевій головці | 4 | 4 | 4 |
| Число фіксованих позицій різцевого супорта | 8 | ||
| Задня бабка | |||
| Діаметр пінолі задньої бабки, мм | 70 | 70 | |
| Конус отвору в пінолі задньої бабки | Морзе 5 | Морзе 5 | |
| Найбільше переміщення пінолі, мм | 180 | 180 | |
| Переміщення пінолі на один поділ лімба, мм | |||
| Розмір поперечного зміщення корпусу бабки, мм | ±12 | ±12 | |
| Електроустаткування | |||
| Кількість електродвигунів на верстаті | 2 | 2 | 3 |
| Електродвигун головного приводу, кВт (об/хв) | 3 (2800) | 4 | 5,5 |
| Електродвигун швидких переміщень, кВт | немає | немає | |
| Електродвигун насоса охолодження, кВт | 0,09 | ||
| Габарити та маса верстата | |||
| Габарити верстата (довжина ширина висота) (РМЦ = 1000), мм | 2140 x 910 | 2585 х 1100 х 1445 | 2640 х 1100 х 1580 |
| Маса верстата (РМЦ = 1000), кг | 1080 | 1620 рік | 1735 рік |