Виробник координатно-розточувального верстата 2Е460, 2Е460а Ленінградський верстатобудівний завод ім. Свердлова , заснований у 1868 році.
З 1949 року підприємство важкого верстатобудування. Завод розпочав випуск металорізальних верстатів власної конструкції (горизонтально-розточувальних, координатно-розточувальних, копіювально-фрезерних, типу «обробний центр» та ін.)
Об'єднання має замкнутий технологічний цикл, має ливарне, заготівельне, гальванічне виробництва, всі види механічної обробки, стендове складання верстатів, малярські та пакувальні ділянки.
Верстат двостоєчний важкий координатно-розточувальний 2Е460 , 2Е460а, 2Е460АФ1 особливо високої точності призначений для обробки точних і точно розташованих отворів у різних важких корпусних деталях, точного фрезерування площин, розмітки та ряду інших особливо точних робіт.
На верстаті 2Е460 можна з високою точністю здійснювати установку рухомих органів - столу і головок, що дозволяє використовувати верстат як вимірювальну машину.
Шорсткість оброблюваної поверхні Rz 1,25.
Клас точності верстата А.
На верстаті можливе виконання наступних технологічних операцій:
Висока точність виготовлення та жорсткість верстата, малі температурні деформації, зручне керування дозволяють здійснювати високопродуктивну точну обробку виробів на підприємствах різних галузей промисловості, тривале збереження точності верстата.
Верстат 2Е460 має оптичні відлікові пристрої з точністю відліку до 1 мкм.
Верстат 2Е460А має універсальне виконання з двома шпиндельними головками (вертикальною та горизонтальною) та люнетом.
Висока загальна жорсткість та вібростійкість досягнуто в результаті спеціального виконання базових деталей та вузлів верстата.
Верстат 2Е460 встановлюється на фундаменті вільно, на трьох точках, що усуває вплив деформацій фундаменту на точність.
Всі базові деталі (станина, стійки, траверса та ін), що мають напрямні ковзання, виготовлені з легованого чавуну з підвищеною твердістю та зносостійкістю направляючих, що забезпечує високу довговічність верстата.
На верстаті 2Е460 досягнуто високої плавності переміщень вузлів, що забезпечує точність їх установки.
Верстат має високоточні, вібростійкі, швидкісні системи шпинделя.
Широкий діапазон чисел оборотів шпинделів забезпечує продуктивну обробку різноманітних матеріалів, у тому числі в'язких та жароміцних сплавів.
Є дистанційне перемикання швидкостей обертання шпинделів.
Спеціальний автоматичний реверсивний імпульсний пристрій захищає торці зубів від зношування в момент перемикання, що збільшує довговічність зубчастиних коліс.
Робоча подача , настановні повільні та швидкі переміщення рухомих вузлів здійснюються від електродвигуна постійного струму з широким діапазоном зміни швидкості. Величину подачі можна змінювати у процесі різання.
Верстат 2Е460 зручний в управлінні, яке здійснюється з пересувного електричного пульта, а також за допомогою кнопок, що закріплюються біля оптичних екранів.
Циркуляційна система мастила механізмів головок з автоматичним регулюванням температури оливи усуває температурні деформації та забезпечує високу точність верстата при тривалому обертанні шпинделів на високих швидкостях.
Відлік координат при встановленні столу та шпиндельних головок здійснюється за допомогою оптичних пристроїв з екранами. Ціна відліку - 0,001 мм.
Відлік переміщення гільз шпинделів здійснюється за допомогою оптичних проекційних пристроїв. Ціна відліку - 0,01 мм.
Двоканальне електричне керування забезпечує одночасну установку за координатами двох робочих органів.
Автоматично діючі з тарованим зусиллям механізми затискачів столу, шпиндельних головок та траверси підвищують продуктивність та точність роботи верстата.
Механізований затискач інструменту в конусі шпинделя забезпечує стабільність та точність положення інструменту, вібростійкість під час роботи.
Верстат має механізм автоматичної зупинки переміщення пінолі на задану глибину при розточуванні і свердлінні.

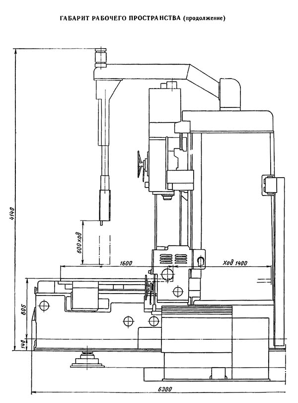
Габарит робочого простору верстата 2Е460

Габарит робочого простору верстата 2Е460

Посадочні та приєднувальні бази верстата 2Е460

Фото координатно-розточувального верстата 2Е460

Фото координатно-розточувального верстата 2Е460

Фото координатно-розточувального верстата 2Е460

Фото координатно-розточувального верстата 2Е460

Фото координатно-розточувального верстата 2Е460
Фото координатно-розточувального верстата 2Е460. Завантажити у збільшеному масштабі

Фото координатно-розточувального верстата 2Е460

Механіка шпинделя координатно-розточувального верстата 2Е460

Механізм подачі бабок, столу, пінолей верстата 2Е460
Механізм подачі бабок, столу, пінолів зміна подач, швидких та повільних настановних переміщень бабок, столу та пінолей здійснюється від електричного варіатора подач на пульті.

Настановне креслення верстата 2Е460
Настановне креслення координатно-розточувального верстата 2Е460. Завантажити у збільшеному масштабі
| Найменування параметру | 2E470a | 2E460a |
|---|---|---|
| Основні параметри верстата | ||
| Клас точності (Н, П, В, А, С) | А | А |
| Робоча поверхня столу, мм | 1400 x 2240 | 1000 x 1600 |
| Найбільший діаметр свердління сталі 45, мм | 40 | |
| Відстань між стійками у світлі (просвіт), мм | 2000 рік | 1400 |
| Найбільше переміщення столу подовжньо (X), мм | 2000 рік | 1400 |
| Найбільше поперечне переміщення вертикальної шпиндельної головки (Y), мм | 1400 | 1000 |
| Найбільше вертикальне переміщення горизонтальної шпиндельної головки (W), мм | 920 | 720 |
| Найбільше вертикальне переміщення пінолі шпинделя (Z), мм | 360 | 360 |
| Найбільше горизонтальне переміщення пінолі шпинделя (V), мм | 360 | 360 |
| Найбільше вертикальне переміщення траверси, мм | 900 | 720 |
| Найменша та найбільша відстань від торця шпинделя до столу, мм | 170..1400 | 170..1100 |
| Найменша та найбільша відстань від осі горизонтального шпинделя до столу, мм | 80..1000 | 80..800 |
| Найбільший діаметр розточування в сталі 45, мм | 250 | 250 |
| Найбільша довжина розточування за одну установку шпинделя, мм | 320 | 320 |
| Шпиндельна бабка | ||
| Частота обертання шпинделя, об/хв | 20..2000 року | 20..2000 року |
| Число ступенів обертання шпинделя | 21 | 21 |
| Швидкість настановних (прискорених) переміщень шпиндельних головок, мм/хв. | 1600 | 1600 |
| Внутрішній конус шпинделя (внутрішній конус) | ISA 50 AT4 | ISA 50 AT4 |
| Діаметр висувної пінолі шпинделя, мм | 135 | 135 |
| Межі робочих подач гільзи вертикального та горизонтального шпинделя та столу (X, Y, Z, W, V), мм/хв. |
Загальновідомо, що людина може завжди дивитися на три речі: як горить вогонь, як тече вода і як працює інша людина.
Закон Мерфі