Розробник та виробник токарно-гвинторізного верстата 1Е95 - Алма-Атинський верстатобудівний завод , заснований у 1932 році як чавуноливарний завод №1 обласного відділу легкої промисловості.
З квітня 1942 після об'єднання з ливарно-механічним заводом "20 років Жовтня", евакуйованим з Луганська, став називатися Алма-Атинським механічним заводом N21 ім. 20-річчя Жовтня Наркомату середнього машинобудування СРСР.
У 1945 році перейменований на Алма-Атинський верстатобудівний завод ім. 20-річчя Жовтня.
Завод выпускал верстати токарно-винторезные: 16Д20, 16Д20П, 16Д20ПФ1, ТВ16, 16Д25, 1Д95, 1Е95, 1М95.
Універсальний токарно-гвинторізний верстат 1Е95 призначений для токарної обробки зовнішніх і внутрішніх поверхонь деталей типу тіл обертання різноманітного осьового профілю, у тому числі для нарізання метричної, модульної, дюймової та різьб на пишах на заготовках, що встановлюються в центрах або патроні.
Комбінований верстат моделі 1Е95 призначений для роботи в пересувних та стаціонарних майстернях.
Токарний верстат моделі 1Е95 вироблявся з 1986 року, замінив більш ранню модель 1Д95 .
Верстат складається з 3-х основних агрегатів:
Кожен агрегат має власний самостійний привід.
Завдяки наявності ряду спеціальних пристосувань: довбажного, вертикально і горизонтально фрезерного, заточного досягається універсальність верстата. На ньому можна виконувати токарні, фрезерні, свердлильні, розточувальні, довбані роботи та нарізання різьблення: метричної, дюймової, модульної та харчової; а також виконувати найпростіші заточувальні роботи. Заточний пристрій рекомендується встановлювати окремо від верстата.
Верстат сертифікований на відповідність вимогам безпеки.
Виконання та категорія розміщення верстатів у частинині умов експлуатації — УХЛ4 за ГОСТ 15150-69 (Для експлуатації у всіх кліматичних районах країн ближнього зарубіжжя у закритих опалювальних (охолоджуваних) та вентильованих виробничих приміщеннях).
Клас точності верстатів - Н за ГОСТ 8-82Е.

Габарити робочого простору токарного верстата.

Посадочні та приєднувальні бази верстата 1е95

Фото токарно-гвинторізного верстата 1е95

Фото токарно-гвинторізного верстата 1е95

Фото токарно-гвинторізного верстата 1е95

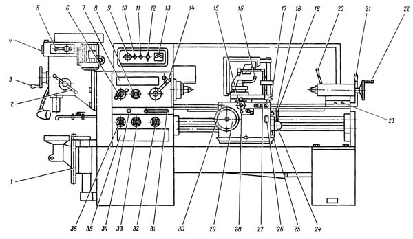
Розташування основних вузлів токарно-гвинторізного верстата 1е95

Розташування органів керування токарно-гвинторізним верстатом 1е95

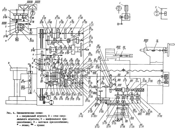
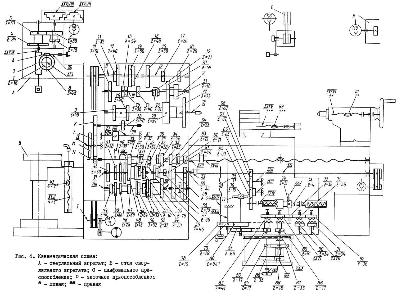
Кінематична схема токарно-гвинторізного верстата 1е95
Схема кінематична токарно-гвинторізного верстата 1Е95. Дивитись у збільшеному масштабі
Вращение шпинделя токарного агрегата осуществляется от реверсивного електродвигуна M1 через клиноременную передачу я коробку швидкостей. На валу II коробки швидкостей по шлицам перемещаются зубчасті колеса 11, 12, 14, 15 і в зависимости от их положения вал III будет мати четыре скорости. Через зубчатое колесо 23 і муфту 19 вращение передається з вала III на вал V і через блок зубчатых колес 20 і 21 на шпиндель (вал VI) передаются восемь швидкостей. Используя вал IV при зацеплении зубчатых колес 23 і 16, шпиндель получает еще восемь швидкостей. Таким образом, коробка швидкостей имеет 16 швидкостей обертання шпинделя.
Кинематическая ланцюг подачі начинается от шпинделя верстата. Величина подачі или шаг різьби определяются на один оборот шпинделя. От шпинделя (вал VI вращение на вал VII передається через зубчасті колеса 9, 27, 28 или 26, 28. Через сменные зубчасті колеса K, L, М вращение передається з вала VII на входной вал коробки подач.
Далее рух подачі проходит через коробку подач і приводит во вращение ходовой винт XVIII при нарезании різьби і ходовой вал XXI при всех остальных видах обробки.
Вращательное рух ходового гвинта XVIII или ходового вала XXI преобразуется механізмом фартука в продольные или поперечные подачі. Пользуясь табличками, можно установить величину подачі і настроить верстат для нарізання различных резьб.
Вращение шпинделя сверлильного агрегата осуществляется от реверсивного електродвигуна М6 через клиноременную передачу і коробку швидкостей. На валу XXXVIII по шлицам перемещаются зубчасті колеса 6 і 7 і в зависимости от их положения вал XXXIX (шпиндель) будет мати две скорости. Наличие трех ручейных шкивов на валах XXXVII і ХХХVIII позволяют путем перброса ремня на один из трех ручьев получить на валу XXXIX (шпинделе) шесть швидкостей. Установка частоти обертання шпинделя производится по таблице (см. раздел 1.3.5).

Сверлильный агрегат токарно-гвинторізного верстата 1е95

Заточное пристрій токарно-гвинторізного верстата 1е95
Станина коробчатой формы з поперечными П-образными ребрами жесткости (рис. 5) имеет две призматические направляющие, подвергнутые термообработке з післядующей шлифовкой.
На станине устанавливаются шпиндельна бабка, коробка подач, кронштейн 5 ходового гвинта 2 і ходового валика 4, а также рейка 3.
В нише правого торца станины установлен електродвигатель 7 приводу быстрых перемещений суппорта, который крепится на подвижной плите 6.
Рух от електродвигуна на ходовой вал 4 передається через клиноременную передачу 10.
По особому заказу станина може быть выполнена з выемкой, позволяющей обрабатывать детали диаметром до 550 мм (верстат 1Е95Г). В етом случае станина имеет вкладыш I длиной 300 мм, который при необходимости снимается. Для етого нужно вывернуть пробки I (рис. 6), удалить винты 2 і штифты 3.
Во избежание нанесения забоин под вкладыш необходимо подложить подкладку из мягкого материала і для защиты от коррозии покрыть его тонким слоем масла. Перед установкой на станину следует тщательно протереть посадочные поверхности вкладыша і станины.
Для обробки деталей над выемкой следует пользоваться специальным удлиненным резцом или резцовой оправкой, устанавливаемых в резцедержателе как показано на рис. 7. Оправка 3 устанавливается в держателе 4. Резец I крепится гвинтами 2.
ВНИМАНИЕ! При обработке деталей над выемкой частота обертання шпинделя в минуту не должна превышать 400.
Тумбы верстата литые, пустотелые. В левой установлен електродвигатель головного руху, масляный бак і масляный насос централизованной системы змазки.
В правой тумбе установлены насос і бак для смазочно-охлаждающей жидкости.
Между тумбами расположено корито для сбора стружки і охлаждающей жидкости.
Шпиндельная бабка служит для сообщения шпинделю различных частот обертання при резании, сверлении, нарезании різьб і приводит в рух сменные зубчасті колеса коробки подач.
С помощью клиноременной передачи 4 (рис. 8) і трех блоков 5, 6, 8, муфты 7 і механізма перебора рух передається на шпиндель 13. Передня опора - двухрядный подлинник 9 з регулируемым радиальным зазором. Задня опора - два радиально-упорных підшипника 3.
Увімкнення, реверс і торможение шпинделя осуществляются без фрикционной муфты непосредственно от електродвигуна.
ВНИМАНИЕ! Во избежание поломки зубьев колес налаштування верстата производите только при выключенном електродвигателе.
Задня бабка (рис. 9) перемещается по направляющим станины і крепится к ней в нужном положении через систему рычагов і ексцентрик 6 рукояткой 4. Перемещение пиноли I осуществляется вращением маховика 5 через винтовую пару 2, 3, а фиксация пиноли - рукояткой 13.
Для установки задньої бабки соосно со шпинделем поверхности платиков 16 совмещают в одну плоскость з помощью винтов 12 і 15. Платики расположены на опорной плите 17 і корпусе 14.
Каретка, супорт і резцедержатель (рис. 10, 11, 12) служат для закрепления режущего инструмента і сообщения ему руху подачі при обработке деталей.
Каретка 9 перемещается по направляющим станины, а стол 6 - по направляющим каретки (автоматически і вручную). Автоматическое перемещение обеспечивается механізмом фартука з приводом от ходового вала.
Плавность руху каретки определяется степенью поджатия планок 8 і 11 к нижним направляющим станины.
Плавность переміщення поперечных і резцовых салазок зависит от зазору между боковыми поверхностями направляючих і регулируется клиньями.
Суппорт несет на себе четырехпозиционный резцедержатель, который поворачивается рукояткой і фиксируется через каждые 90°.
На каретке установлены кнопка пуска, реверса, останова і торможения електродвигуна головного привода.
Фартук (рис. 13) снабжен четырьмя мелкозубыми муфтами 3, 4, 5, 6 для прямого і обратного ходов каретки і суппорта в продольном і поперечном направлениях. Керування переміщеннями каретки і нижней частини суппорта производится одной рукояткой, направление переміщення которой при включении того или иного руху совпадает з переміщенням суппорта в одном из четырех направлений. Быстрое перемещение суппорта происходит также при нажатии на кнопку, встроенную в рукоятку (включается електродвигатель быстрых ходов).
Фартук имеет предохранительную муфту 8, которая срабатывает под действием усилий, возникающих при перегрузке. Усилие, передаваемое етой муфтой, регулируется гайкой 7. При нарезании різьби необходимо реечное зубчатое колесо 2 вывести из зацепления з рейкой, вытягивая кнопку I.
Назначение коробки подач (рис. 14) - быстрое і удобное изменение величин подач. Сборочная единица состоит из основной группы (зубчасті колеса 1, 2, 3, 4, 5, 15, 16), звена обратимости (зубчасті колеса 6, 12, 13, 14), позволяющего производить нарезку как метрических, так я дюймовых різьб без смены зубчатых колес гітари, а также множительной группы 7, 9, 10, 11. Для нарізання модульных різьб применяются сменные зубчасті колеса, Коробка подач обеспечивает нарезание різьби напрямую. Обгонная муфта 8 позволяет осуществлять быстрое перемещение суппорта при включенной рабочей подаче.
Сверлильный агрегат закреплен на стойке, установленной на левой тумбе, имеет отдельный привід і предназначен для выполнения разнообразных сверлильных работ.
Для получения нужного числа оборотів шпинделя рукоятку 4 (рис. 15) следует установить в положение I или II (см. таблицу, раздел 1.4.9), а клиновой ремень - на соответствующую ступень шкивов. Шпиндель 8 имеет шесть швидкостей, получаемых при перебросе ремня на соответствующую ступень шкивов (3 скорости) і переміщенням блока зубчатых колес.
Шпиндель перемещается в осевом направлений маховиком 2 или ускоренно з помощью рукоятки 7 при соответствующем увімкнення муфты I.
Натяжение ремня 3 осуществляется винтом 5 при отпущенной контргайке 6.
Стол сверлильного агрегата предназначен для закрепления на нем обрабатываемых деталей. Он може поворачиваться вокруг своей оси на 360° і вокруг колонны на 125°, а также перемещаться вертикально в пределах 300 мм. Для етого нужно отпустить гайку 2 (рис. 16) на два-три оборота, установить стол на нужную высоту винтом I і в заданном положении затянуть гайку.
Основанием заточного приспособления является корпус I (рис. 17), на который крепятся електродвигатель, пакетно-кулачковый выключатель, кожух 2 і кронштейн 4 со столиком 3.
Шлифовальный круг устанавливается на кінці вала електродвигуна. Наибольший диаметр круга в защитном кожухе 2 - 150 ми. Столик необходимо устанавливать на расстоянии 3-6 мм от шлифовального круга.
Для предохранения направляючих верстата от абразивных частиниц заточное пристрій рекомендуется устанавливать отдельно от верстата з подключением через штепсельный разъем.
Приспособление предназначено для обробки плоскостей, пазов, шпоночных канавок і других фрезерных работ.
Основанием приспособления служит стойка 7 (рис. 18), к которой на штыре 6 прикреплена плита 5. Плита може поворачиваться вокруг штыря в обе стороны і в нужном положении закрепляется четырьмя болтами, вставленными в Т-образный круговой паз стойки.
Для отсчета поворота на стойке нанесены деления через 1° в обе стороны от нулевой оплетки. Салазки 4 з помощью гвинта 3 передвигаются по направляющим плиты. На салазки болтами I, вставленными в Т-образный паз, крепится столик 2. При установці приспособления на стол поперечної каретки необходимо снять резцедержатель з суппортом. Для крепления использовать болты, которыми крепилась верхняя каретка.
Обрабатываемая заготовка крепится на столике или на салазках (примеры крепления показаны на рис. 19, 20, 21, 22). Режущий инструмент устанавливается непосредственно в коническое отверстие шпинделя или в переходных втулках і цангах. Концевые фрезы крепятся шомполом, проходящим через отверстие шпинделя, как показано на рис. 23.
Планшайба предназначена для растачивания отверстий в небольших корпусных деталях сложной формы і конфигурации і крепится на фланцевом кінці шпинделя аналогично креплению патрона.
По направляющим планшайби I (рис. 24) перерух каретки 9 осуществляется винтом 4 з помощью съемной рукоятки 2. Для отсчета переруху каретки на винте имеется лимб 3 з делениями. К каретке в Т-образных пазах болтами 5 закреплен кронштейн 8, который може передвигаться вдоль каретки і фиксироваться в нужном положении. К кронштейну на оси 6 крепится стол 7 з возможностью поворота на угол 45°.
Типові схеми обробки деталей на планшайбе показаны на рис. 25, 26.
Приспособление предназначено для наружного і внутреннего шлифования деталей, устанавливаемых в центрах или в патроне.
Основанием приспособления является плита 14 (рис. 27), в которую вмонтирован шпиндель 10. На шпинделе крепится фланец 9, а на него устанавливаются шлифовальный камень 16, закрытый кожухом 8, или удлинитель 15 (при внутреннем шлифовании) і шкив і ременной передачи. Електродвигун I установлен на подвижном кронштейне 12, который позволяет менять натяжение ремня 2. Ременная передача закрыта кожухом 3.
На основании крепится пакетный переключатель 7.
Для роботи шлифовальное пристрій необходимо установить на верхней каретке суппорта вместо снятого резцедержателя і закрепить гайкой 13.
Приспособление комплектуется сменными шкивами диаметром 63 і 100 мм для наружного шлифования і 45 і 180 мм для внутреннего шлифования, а также пристрійм для правки шлифовальных кругов (оправка 5, державка 6 і карандаш 4).
Пристрій для правки шлифовального круга устанавливается в пиноль задньої бабки так, чтобы карандаш был ниже оси шлифовального круга і расположен под углом 15-20° к оси круга. Карандаш не должен выступать из державки более чем на I мм.
Режим правки карандашом следующий: глубина снимаемого слоя до 0,04 мм на двойной ход; продольная подача - не более 0,5 м/мин.
На рис. 28, 29, 30 показаны примерные схеми шлифования.
Стол предназначен для выполнения фрезерных і расточных работ инструментом, закрепленным в шпинделе токарного верстата. Для установки стола необходимо снять резцедержатель вместе з поворотной частью суппорта і на их место установить стол 2 (рис. 31), закрепив его четырьмя болтами I. Стол имеет три Т-образных паза для крепления деталей і пристосувань.
Обрабатываемая деталь крепится непосредственно на столе или в приспособлении. Ручное перемещение стола в поперечном направлении осуществляется рукояткой поперечної подачі суппорта, а в продольном - маховичком ручного переміщення каретки.
Обработка деталей з помощью фрезерно-расточного стола показана на рис. 32.

Настановне креслення токарно-гвинторізного верстата 1е95
| Наименование параметра | 1М95 | 1Д95 | 1Е95 |
|---|---|---|---|
| Основні параметри | |||
| Класс точності по ГОСТ 8-82 | Н | Н | Н |
| Наибольший диаметр заготовки над станиной, мм | 500 | 400 | 400 |
| Наибольший диаметр заготовки над выемкой станины (по заказу), мм | - | 550 | 570 |
| Наибольший диаметр заготовки над суппортом, мм | 420 | 210 | 210 |
| Высота центров над направляющими станины, мм | 235..355 | 210 | 210 |
| Высота оси шпинделя над суппорт-столом, мм | 125..245 | ||
| Наибольшая длина заготовки (РМЦ), мм | 1000 | 1000 | 1000 |
| Наибольшая длина обтачивания, мм | 820 | 950 | 950 |
| Наибольшая масса заготовки в патроне, кг | |||
| Наибольшая масса заготовки в центрах, кг | 100 | ||
| Передня бабка | |||
| Наибольшее вертикальное перемещение передньої бабки, мм | 120 | нет | нет |
| Шпиндель | |||
| Диаметр сквозного отверстия в шпинделе, мм | 35 | 52 | 52 |
| Наибольший диаметр прутка, мм | 32 | 50 | 50 |
| Число ступеней частот прямого обертання шпинделя | 12 | 16 | 16 |
| Частота прямого обертання шпинделя, об/мин | 28..1250 | 16..1250 | 20..1600 |
| Число ступеней частот обратного обертання шпинделя | 12 | 16 | 16 |
| Частота обратного обертання шпинделя, об/мин | 28..1250 | 16..1250 | 20..1600 |
| Размер внутреннего конуса в шпинделе | №5 | Морзе 6 | Морзе 6 |
| Кінець шпинделя по ГОСТ 12593-72 | 6К | 6К | |
| Торможение шпинделя | нет | Электрическое | Электрическое |
| Суппорт-стол. Подачи | |||
| Розміри рабочей поверхности стола, мм | 280 х 700 | ||
| Наибольшее продольное перемещение каретки суппорта, мм | 820 | 950 | 950 |
| Наибольшее поперечное перемещение суппорта, мм | 320 | 300 | 275 |
| Наибольшее поперечное перемещение верхнего суппорта (резцовые салазки), мм | 110 | 100 | 130 |
| Число ступеней продольных/ поперечных подач | 24/ 24 | 16/ 16 | 48/ 48 |
| Пределы скорости продольных подач, мм/об | 0,13..1,87 | 0,0028..0,078 | 0,03..4,21 |
| Пределы скорости поперечных подач, мм/об | 0,072..1,016 | 0,0014..0,039 | 0,015..2,1 |
| Скорость быстрых перемещений суппорта, продольных/ поперечных, м/мин | нет | 4/ 2 | 4/ 2 |
| Продольное перемещение на одно деление лимба, мм | 1,0 | ||
| Продольное перемещение на одно деление нониуса, мм | |||
| Поперечное перемещение суппорта на одно деление лимба, мм | 0,05 | ||
| Перемещение резцовых салазок на одно деление лимба, мм | 0,05 | 0,05 | 0,05 |
| Количество нарезаемых різьб метрических | 23 | 18 | 26 |
| Пределы шагов нарезаемых різьб метрических, мм | 1..12 | 0,5..14 | 0,5..56 |
| Количество нарезаемых різьб дюймовых | 24 | 35 | 39 |
| Пределы шагов нарезаемых різьб дюймовых | 3..28 | 60..3,5 | 56..0,5 |
| Количество нарезаемых різьб модульных | 13 | 18 | 22 |
| Пределы шагов нарезаемых різьб модульных | 0,25..35 | 0,5..7 | 0,5..28 |
| Количество нарезаемых різьб питчевых | 24 | 35 | 32 |
| Пределы шагов нарезаемых різьб питчевых | 8..112 | 56..2,0 | |
| Предохранитель от перегрузки | есть | ||
| Блокировка продольных і поперечных подач | есть | ||
| Выключающие продольные упоры | нет | ||
| Шероховатость поверхности заготовки из конструкционной стали при чистовом обтачивании, мкм, не более | Ra 2.0 | ||
| Задня бабка | |||
| Наибольшая длина переміщення задньої бабки вдоль станины, мм | 820 | ||
| Наибольшая длина вертикального переміщення задньої бабки, мм | 120 | нет | нет |
| Наибольшая длина переміщення пиноли задньої бабки, мм | 165 | 120 | 120 |
| Наибольшее перемещение задньої бабки, мм | ±20 | ||
| Размер внутреннего конуса | №4 | Морзе 4 | Морзе 5 |
| Сверлильный агрегат | |||
| Наибольший диаметр сверления, мм | 25 | 25 | |
| Наибольший ход шпинделя, мм | 80 | 80 | |
| Вылет оси сверлильного шпинделя, мм | 210 | 210 | |
| Диаметр сверлильного стола, мм | 320 | 280 х 280 | |
| Вертикальное перемещение сверлильного стола, мм | 465 | ||
| Размер внутреннего конуса сверлильного шпинделя | №3 | Морзе 3 | |
| Расстояние от кінця шпинделя до сверлильного стола, мм | 40..540 | 400 | |
| Количество швидкостей шпинделя | 6 | ||
| Частота прямого обертання шпинделя, об/мин | 11..78 | ||
| Вертикально-фрезерна головка | |||
| Вылет оси шпинделя фрезерной головки, мм | 380 | ||
| Расстояние от кінця шпинделя до суппорт-стола, мм | 120..240 | ||
| Наибольшее продольное перемещение суппорт-стола, мм | 320 | ||
| Размер внутреннего конуса фрезерной головки | №3 | ||
| Шлифовальное пристрій | |||
| Диаметр шлифуемой заготовки при наружном шлифовании , мм | 25..210 | 20..210 | |
| Диаметр шлифуемой заготовки при внутреннем шлифовании , мм | 30..300 | 30..300 | |
| Частота обертання шпинделя при наружном шлифовании , мм | 4400 | 4400 | |
| Частота обертання шпинделя при внутреннем шлифовании , мм | 11000 | 11000 | |
| Долбежное пристрій | |||
| Длина ходу долбяка, мм | 100 | ||
| Вылет суппорта долбяка, мм | 310 | ||
| Наибольшая высота долбления, мм | 80 | ||
| Наибольшая длина долбления, мм | 280 | ||
| Наибольшая ширина ходу долбления, мм | 320 | ||
| Електроустаткування | |||
| Количество електродвигателей на станке | 4 | 6 | |
| Електродвигун головного привода, кВт | 4 | 4 | 5,5 |
| Електродвигун приводу ускоренных перемещений, кВт | - | 0,4 | 0,55 |
| Електродвигун приводу сверлильного агрегата, кВт | 1,1 | 1,1 | 1,1 |
| Електродвигун заточного приспособления , кВт | 0,8 | 0,75 | 0,75 |
| Електродвигун шлифовального приспособления , кВт | - | 0,27 | 0,27 |
| Електродвигун насоса охлаждения, кВт | 0,12 | 0,125 | 0,125 |
| Суммарная мощность, кВт | |||
| Габарити і масса верстата | |||
| Габарити верстата (длина ширина высота) (РМЦ 1000), мм | 2750 х 1255 х 1670 | 3000 х 1200 х 1610 | 3000 х 1200 х 1640 |
| Масса верстата (РМЦ 1000), кг | 2170 | 2030 | 2475 |
1Е95, 1Е95Г верстат токарно-гвинторізний, 1986 г: - паспорт, (pdf) 28,9 Мб, Скачать
Замовити
Хто володіє інформацією – той володіє світом.
Натан Ротшильд