metalinstryment.com
Довідник по металорізальних верстатів та пресовому обладнанні

И1330 Пресс листогибочный кривошипный для гибки листового металла
Схеми, опис, характеристики

И1330 Пресс листогибочный кривошипный для гибки листового металла



Прессы механические, прессы гідравлические, верстати поперечно-строгальные

Відомості про виробника листогибочного кривошипного пресса И1330

Изготовитель пресса листогибочного кривошипного для гибки листового металла И1330 - КузЛитМаш, Пинский завод литейных і кузнечно-прессовых автоматических линий, основанный в 1971 году.

В 2010 года предприятие преобразовано в Открытое акционерное общество «Кузлитмаш» і вошло в состав ПО "Белорусский автомобильный завод".

В настоящее время пресс И1330 производит ПАО «Кувандыкский завод КПО «Долина» Оренбургская обл., г. Кувандык





Верстати, выпускаемые Пинским заводом литейных і кузнечно-прессовых автоматических линий Кузлитмаш


И1330 Пресс листогибочный кривошипный для гибки листового металла. Назначение і область применения

Пресс листогибочный кривошипный И1330 двостоєчний открытого типа предназначен для изготовления деталей из листового і полосового проката методом гибки в универсальном V-образном штампе, поставляемом в комплекте з прессом.

В универсальном V-образном штампе можно произвести гибку большого числа различных деталей. С применением специального инструмента пресс може быть использован для резки, вырубки, пробивки отверстий і других операций.

Принцип роботи і особливості конструкції пресса И-1330

Станина пресса — сварная, двухстоечная открытого типа. Стойки — коробчатого сечения, соединены между собой столом і четырьмя стяжками.

Стол — сварной, крепится к станине шпильками і гвинтами.

Ползун представляет собой стальную плиту, перемещающуюся в стальных литых з накладками из антифрикционного материала направляючих. В нижней частини ползуна выполнен паз для крепления пуансона. Перемещение ползуна по высоте для регулировки межштампового простору осуществляется от индивидуального електродвигуна через червячный редуктор, червячные і винтовые пары.

Расстояние между столом і ползуном контролируется по шкале, установленной у робочого места.

Привід пресса — от индивидуального електродвигуна. Через клиноременную і двухступенчатую зубчатую передачи рух передається на ексцентриковый вал. Привід пресса позволяет мати две скорости ходу ползуна. Переключення швидкостей производится рычажным механізмом.

Муфта увімкнення — фрикционная дискова з пневматическим включением. Взаємодія муфты з дисковым тормозом обеспечивается електропневматической блокировкой.

Електросхема обеспечивает работу пресса на одиночных і автоматических ходух, а также в наладочном режиме.

Керування прессом И1330 — педальное і кнопкове.

Смазка основних вузлів пресса — централизованная.


Прессы листогибочные кривошипные. Параметри, основні виды і выбор.

Синонимы: Пресс листогибочный кривошипный, листогиб — mechanical sheet bending press, crank sheet-bending press, brake press.

Листогибочные прессы (листогибы) предназначены для гибки различных деталей, когда требуется большая длина гиба, а также для изготовления гнутых профилей типа «уголок», «швеллер», «зетовый» из листового і полосового металлопроката за один или несколько переходов. Гибку осуществляют з помощью універсального инструмента (рис. 62). Кроме того, на листогибочных прессах з применением специального инструмента могут выполняться операции пробивки отверстий.

Схема робочого простору і універсальний инструмент листогибочного пресса

Рис.62 Схема робочого простору і універсальний инструмент листогибочного пресса

  1. Ползун листогибочного пресса
  2. Рабочий стол
  3. Універсальный пуансон
  4. Матрица
  5. Регулировочные болты
  6. Подкладная плита

Листогибочный пресс И1330. Схема робочого простору і універсальний инструмент

Детали, изготавливаемые на универсальном V - образном штампе

Рис.63 Примеры использования универсальных пуансона і матрицы (V - образный універсальний штамп) для получения профилей.

Особенностью методики выбора листогибочного пресса является то, что для него не проектируется спеціальний штамп, а используется універсальний (см. рис. 62). В связи з етим в основе выбора пресса лежит технологическая проработка его возможностей для гибки той или иной детали. При етом могут применяться различные варіанти специальных пуансонов, сменные матрицы з универсальным матрицедержателем в виде горизонтальной подкладной плиты или вертикальной стойки.

Універсальность листогибочных прессов обеспечивается также различными варіантами упоров 1, которые перемещаются на кронштейне і крепятся на нем винтовым зажимом 2.

Профиль матрицы для V-образной гибки зависит от размеров профиля изгибаемой детали. Розміри матрицы можно ориентировочно определить без учета зусилля пресса по данным табл. 15.

Таблиця определения зусилля гибки (в тоннах)

Таблиця определения зусилля гибки (в тоннах) при длине гиба L = 1000 мм і σB = 40 МПа.


Основні параметри машины листогибочной И1330 (И-1330):

Машина И1330 (И-1330) разработана в 1965 году і серийно выпускалась з 1966 года.

Разработчик ПО КПО г. Азов.

Изготовитель - Азовский завод КПО Донпрессмаш г. Азов.

Пресс изготовляется з основними параметрами по ГОСТ 7879—65.


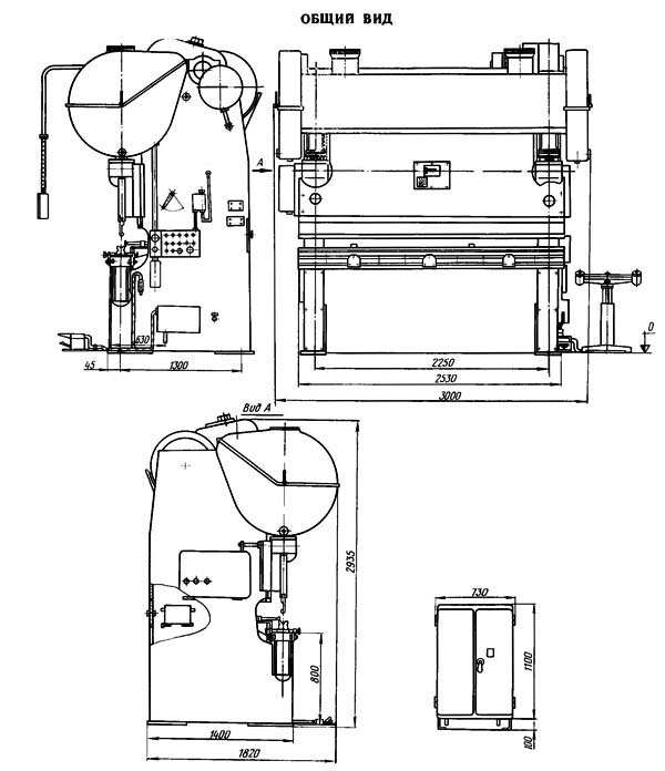
Габарити пресса листогибочного кривошипного И-1330

и 1330 Габаритные розміри пресса листогибочного кривошипного

Габарити пресса листогибочного кривошипного И-1330


Инструмент і стол листогибочного пресса И1330

Инструмент і стол листогибочного пресса И1330

Инструмент і стол листогибочного пресса И1330. Дивитись у збільшеному масштабі


Загальний вигляд листогиба кривошипного И-1330

Загальний вигляд  листогибочного кривошипного пресса И-1330

Фото листогибочного кривошипного И-1330





И1330 Розташування складових частин листогибочного кривошипного пресса

Розташування складових частин листогибочного кривошипного пресса И1330

Розташування складових частин листогибочного пресса И1330

Розташування складових частин листогибочного кривошипного пресса И1330. Дивитись у збільшеному масштабі


Список складових частин листогибочного кривошипного пресса И1330

  1. Станина - и1330.10.000
  2. Привід маховика - и1330.20.000
  3. Муфта-тормоз - и1330.21.000
  4. Вал приемный - и1330.22.000
  5. Вал промежуточный короткий - и1330.23.000
  6. Вал промежуточный длинный - и1330.24.000
  7. Вал ексцентриковый - и1330.25.000
  8. Шатуны - и1330.26.000
  9. Ползун - и1330.27.000
  10. Привід механізма регулировки - и1330.28.000
  11. Уравновешиватель - и1330.29.000
  12. Механізм переключения ходов - и1330.30.000
  13. Маслопровод - и1330.40.000
  14. Пневмообладнання - и1330.50.000
  15. Упор задний - и1330.61.000
  16. Ограждение - и1330.58.000
  17. Инструмент - и1330.60.000
  18. Ограждение - и1330.62.000
  19. Картеры - и1330.63.000
  20. Предохранитель машины от перегрузки - и1330.64.000
  21. Упор передний - и1330.65.000
  22. Подставка - и1330.75.000
  23. Размещение електроустаткування на машине - и1330.80.000
  24. Пульт керування-переносной - и1330.80.000
  25. Ресивер - У69.00.000

И1330 Розташування органів керування листогибочным кривошипным прессом

И1330 Розташування органів керування листогибочным кривошипным прессом

Розташування органів керування листогибочным прессом И1330


Список органів керування листогибочным кривошипным прессом И1330

  1. Рукоятка переключения числа ходов пресса
  2. Кнопка регулировки положения ползуна "Вверх"
  3. Кнопка регулировки положения ползуна "Вниз"
  4. Сдвоенные кнопки "Пуск" одиночного ходу
  5. Сдвоенные кнопки "Пуск" одиночного ходу
  6. Кнопка "Загальний стоп"
  7. Кнопка "Загальний стоп"
  8. Рычажок сброса показаний указателя, поз.9.
  9. Указатель измерения величины межштампового простору
  10. Педаль
  11. Вводный выключатель
  12. Номограмма определения ширины ручья матрицы
  13. Схема гибки листа в ручье матрицы
  14. Стоп автомат
  15. Переключатель местного освещения
  16. Кнопка "Пуск мотора"
  17. Кнопка "Упор вперед"
  18. Кнопка "Упор назад"
  19. Ручная прокачка

И1330 Кінематична схема листогибочного кривошипного пресса

Розташування складових частин листогибочного кривошипного пресса И1330

Кінематична схема листогибочного пресса И1330

Кінематична схема листогибочного пресса И1330. Дивитись у збільшеному масштабі






И1330 Листогиб кривошипный для гибки листового металла. Відеоролик.




Технічні характеристики листогибочного кривошипного пресса И-1330

Наименование параметра И1330 ИВ1330
Основні параметри пресса
Номинальное усилие, кН (тс) 1000 (100) 1000 (100)
Длина стола і ползуна, мм 2550 2500
Расстояние между стойками в свету, мм 2050 2000
Ширина стола, мм 200 200
Высота стола над уровнем пола, мм 800 790
Ход ползуна, мм 80 80
Наибольшее расстояние между столом і ползуном в его нижнем положении, мм 320 300
Величина регулировки расстояния между столом і ползуном, мм 100 125
Число ходов ползуна в минуту 10, 30 10..40
Тип муфты увімкнення Пневматический Пневматический
Тип тормоза Пружинный Пружинный
Електроустаткування і привід пресса
Количество електродвигателей, кВт 4 4
Електродвигун головного приводу М1, кВт 14 11,8
Електродвигун приводу переміщення (регулировки) ползуна М3, кВт 1,1 1,1
Електродвигун приводу заднего механизирована упора М4, кВт 0,75 0,75
Електродвигун станції змазки М2, кВт 0,09 0,09
Суммарная мощность електродвигателей, кВт 15,94 13,74
Габарит і масса пресса
Габарит (длнна х ширина х высота), мм 3000 х 1820 х 2935 3000 х 1820 х 2945
Масса пресса, кг 9100 9400









Мозг - замечательный орган. Он начинает работать з того момента, как ты проснулся, і не останавливается пока ты не пришел на работу.

Закон Мерфи