Токарно-гвинторізний універсальний верстат моделі Schaublin 102vm випускався підприємством Shaublin (Шоблен), заснованим у 1915 році, Швейцарія, місто Bevilard.
Верстати фірми Schaublin поставляються до СРСР та Росії з 1970 року.
Гама верстатів фірми виробника досить широка: токарні, фрезерні та шліфувальні верстати високої точності від настільних та універсальних до обробних центрів з ЧПУ та приводним інструментом.
Токарно-гвинторізний верстат Schaublin 102 vm призначений для виконання різних токарних робіт і нарізування метричної, модульної, дюймової різьблення. Оброблювані деталі встановлюються у центрах чи патроні.
Токарно-гвинторізний верстат є високоточним, інструментального класу, виготовлений із дуже якісних матеріалів.
Токарно-гвинторізна версія токарного верстата 102 вперше представлена в 1930-х роках. У післявоєнний період було випущено близько 3750 Schaublin 102 vm , остання машина була випущена у 1975 році.
Висота центру складає 102 мм, відстань між центрами 450 мм.
Ці верстати, як і всі токарно-гвинторізні верстати Schaublin, не тільки чудово зроблені, а й дуже складні.
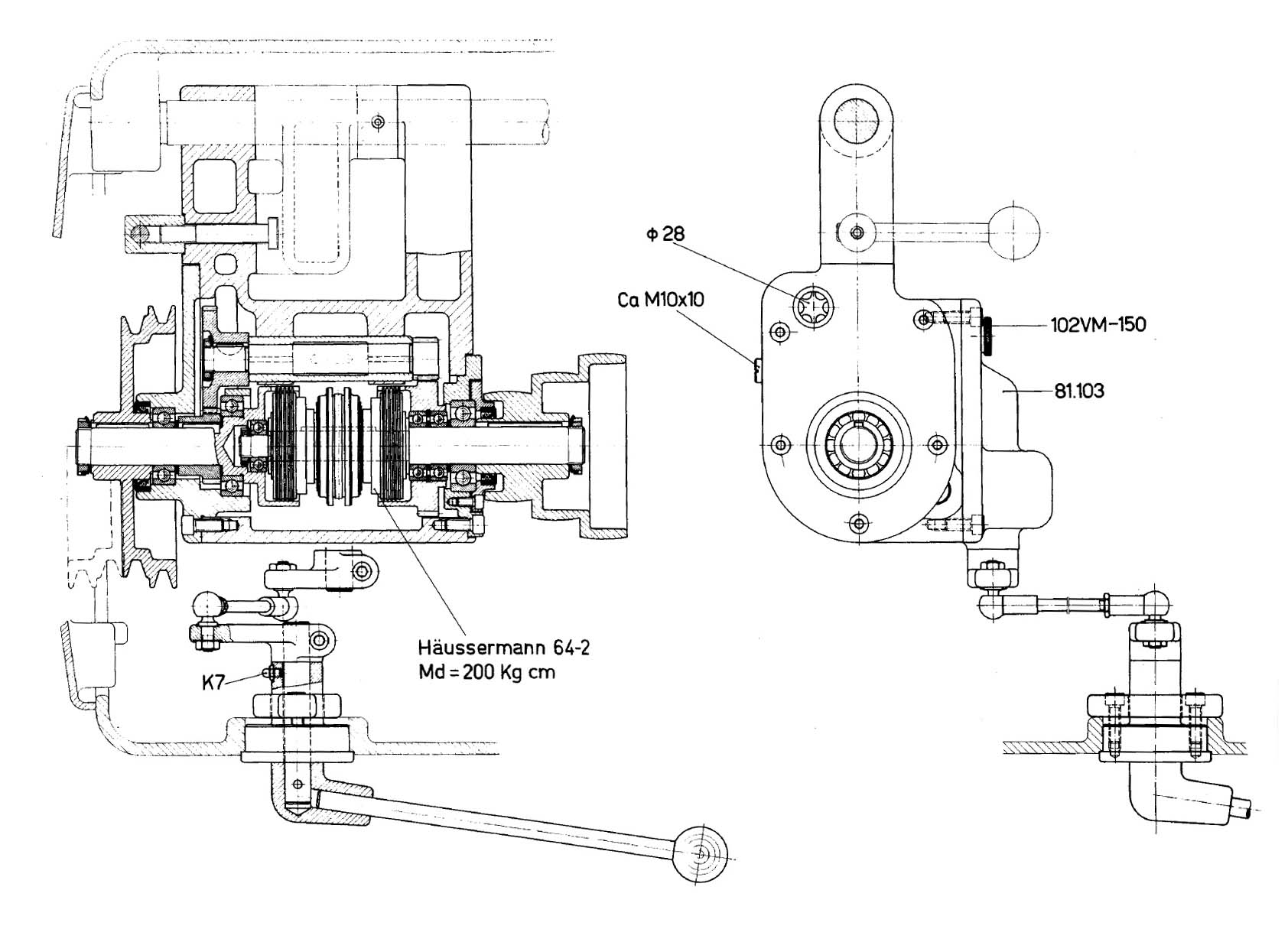
Верстат отримав позначення 102-VM (Vis-Mére — буквально означає «материнський гвинт»), мав масивний центрально розташований ходовий гвинт діаметром 40 мм, що проходить по всій довжині станини, що забезпечує як механічну подачу, так і функції нарізки.
Сама станина із загартованого чавуну мала настільки ж масивні пропорції і складалася з центрального трапецієподібного перерізу (тіх же розмірів, що і звичайна станина 102), на якому розташовувалися передня та задня бабки з переднім піднятим V і заднім плоским для напряму розсувної каретки. Пара сталевих кришок захищала шляхи від стружки та сторонніх предметів.
Передня бабка із заднім зачепленням була доступна у виконанні W20 або W25 і мала ту ж базову конструкцію, що і звичайна 102. Те ж саме стосується і задньої бабки, за винятком того, що для VM була передбачена можливість зміщення задньої бабки для конусності.
Як і у простого 102, було зроблено два типи задньої бабки. До 1964 року машини мали ствол задньої бабки, до якого кріпилася чавунна поворотна ручка. У цих ранніх машинах використовувалася власна конусна головка Schaublin з кутом нахилу 2º. У пізніших машинах використовувалася задня бабка типу «чарівне око», яка використовувалася на 70 і 102. Ці пізніші задні бабки мають 2 гнізда з конусом Морзе.
На фартуху каретки знаходився маховик для ручного переміщення каретки за допомогою рейкової шестерні, а також три інші органи керування: два, пов'язані з зачепленням і розчепленням гайки ггвинта (див. Нижче); і один для керування обертанням ггвинта, що подає, за допомогою реверсивної коробки передач і однокулачкової муфти. Останній знаходився всередині складної коробки, підвішеної до передньої бабці станини (див. нижче).
Одна бронзова гайка довжиною 120 мм, зачеплена на третину кола ггвинта, що подає, для передачі функцій подачі і нарізки на каретку. Гайка приводилася в зачеплення за допомогою важеля на передній частинині фартуха, що піднімає і фіксує міцний важіль (до якого була прикріплена гайка), підвішений під станиною і обертається на задній частинині каретки. Цей важіль також майстерно сформував масляний резервуар, що забезпечує мастило гайки.
У той час як рух каретки як для нарізки, так і для подачі здійснювався гвинтом і гайкою, коробка передач машини забезпечувала два різних способи обертання ходового ггвинта. Для створення кроку гвинтів ходовий гвинт рухався від шпинделя передньої бабки через редуктор з одним передавальним числом і змінні колеса. З іншого боку, для подачі ходовий гвинт рухався від шпинделя передньої бабки через клиноподібний ремінь і систему шківів, розташовану за передньою бабкою. Останній використовував черв'як та колесо для передачі потужності від передньої бабки до ведучого шківа. Це вразлива частинина конструкції, і якщо її неправильно закріпити або змастити належним чином, це може призвести до сильного зношування та пошкодження. Використання ременів для приводу шнека, що подає, не тільки знижує рівень шуму, але дозволяє набагато швидше вибирати швидкість подачі за допомогою чотириступінчастого набору шківів. Набір шківів також був реверсивним, що давало ще чотири швидкості подачі.
Будь то в режимі нарізки або подачі, зачеплення ходового ггвинта та напрямок обертання контролюються однокулачковою муфтою та реверсивною передачею, що входить до складу коробки. Це приводиться в дію важелем фартуху з трьома положеннями: вперед, нейтраль і задній хід. Використання однокулачкової муфти дозволяє нарізати гвинти без розчеплення гайки ходового ггвинта, а це означає, що різьблення може захоплюватися інструментом щоразу в тому самому місці. Дещо цікаво, чому Шаублін не включив вибивні упори для приведення в дію цього механізму, як це зробили Хардіндж та інші зі своїми машинами. Передбачені вибивні упори, але вони впливають на фіксуючий механізм гайки ходового ггвинта, а не механізм кулачкової муфти, що означає, що після від'єднання гайки ходового ггвинта різьба не може бути зачеплена з будь-якою впевненістю.
102-VM , побудовані до 1954 року, встановлювалися на збірних сталевих шафах із чавунними піддонами для стружки, що з'єднують дві опори стенду разом. Пізніші шафи, як і звичайна 102, були цільнолитими. На лівому постаменті знаходилися двигун машини та проміжний вал. Пропонувався ряд конфігурацій приводу від ручного перемикання з плоским ременем до приводу з клинопасовим варіатором (пізнаваним по великому маховику на лівій опорі). Машини були оснащені трифазними двошвидкісними двигунами з однією напругою, які у поєднанні з проміжним валом та задньою передачею передньої бабки давали широкий діапазон швидкостей. Крім того, машини можуть бути оснащені ножним зчепленням та гальмівним проміжним валом, що забезпечує додаткову зручність та безпеку.
Що стосується аксесуарів, більшість з них для простого 102 сумісні з 102-VM. Очевидними винятками були каретки, але фрезерні пристрої та шліфувальні шпинделі були загальним обладнанням для обох верстатів. Одним із помітних винятків сумісності була розділова насадка, яка для 102-VM суттєво відрізнялася від такої для простої 102 – дуже рідкісний та бажаний аксесуар.
У середині 70-х модель Schaublin 102-VM була повністю перероблена, і, як і у випадку з іншими моделями лінійки Schaublin, привабливі вигини машини поступилися місцем незграбної грубості. 102N-VM (N для nouveau = новий) був повним відходом від більш ранньої машини і, на мій погляд, не зовсім на краще. Незмінними залишилися лише трапецієподібна частинина станини та положення ходового ггвинта. Біля ліжка тепер були напрямні типу «хвиль ластівки» для каретки, а нова конструкція ставила під загрозу хід каретки, оскільки її руху заважала передня бабка. 102N-VM той час, як ходовий гвинт залишився в тому ж положенні, спосіб зачеплення гайки змінився на замковий (на фото зліва - ходовий гвинт і фартух, вигляд знизу). Як і в ранніх машинах, були передбачені вибивні упори для відключення гайки в режимі механічної подачі, але в нову конструкцію не було включено однокулачкове зчеплення. Натомість важіль, розташований праворуч від редуктора подачі (фото внизу зліва), з'єднаний з тумблерним реверсивним механізмом, просто зачіплював і розчіплював зчеплення шестерень з гвинтом подачі. Це могло бути виконано під час роботи верстата, при цьому «збої» ставали реальною проблемою лише на високих швидкостях із великими подачами — за таких обставин розчеплення гайки ходового ггвинта було безпечнішим підходом.
Одним з великих покращень порівняно з 102-VM, що пропонується новою моделлю, стала наявність коробки передач (праворуч). Цей акуратний вузол, встановлений під передньою бабкою в передній частинині станини, мав ремінний привід від шпинделя і мав єдину ручку регулювання з накаткою, що забезпечує вісім швидкостей подачі від 0,02 до 0,3 мм на оборот шпинделя. Швидкість подачі можна було регулювати під час роботи машини та подачі, що являло собою величезний виграш у зручності порівняно з більш ранньою машиною.
Для нарізування різьблення редуктор подачі вимикався і використовувалася звичайна змінна система. Однак ходовий гвинт, як і раніше, був з'єднаний зі змінними колесами через тумблерний механізм, а відсутність однокулачкової муфти означало, що під час операцій нарізування ггвинта передня бабка не могла бути відключена від трансмісії ходового ггвинта. Натомість використовувалися зчеплення та гальмо машини (якщо вони були встановлені) у поєднанні зі швидким вилученням інструменту, а потім двигун реверсував, щоб повернути каретку на початок різьблення.
У той час як 102-VM був доступний тільки з передньою бабкою із заднім редуктором, для N-VM це було необов'язковим. Модель 102N-VM також пропонувалася з широким вибором варіантів приводу та монтажу. Зокрема, він був доступний не тільки в чавунному корпусі, а й у вигляді настільної машини із заднім чи нижнім приводом. Імовірно, ця адаптованість була прийнята для того, щоб розширити ринок машин та забезпечити більшу гнучкість ціноутворення. Однак без зчеплення та гальма, доступних тільки на верстатах, змонтованих на шафі, нарізання різьблення, мабуть, було надзвичайно нервовим, особливо на верстатах без передньої бабки із заднім редуктором.

Габарити токарного верстата Schaublin 102 vm
Габарити токарного верстата Schaublin 102 vm. Дивитись у збільшеному масштабі

Фото токарно-гвинторізного верстата Schaublin 102 vm
Фото токарно-гвинторізного верстата Schaublin 102 vm. Дивитись у збільшеному масштабі

Фото токарно-гвинторізного верстата Schaublin 102 vm
Фото токарно-гвинторізного верстата Schaublin 102 vm. Дивитись у збільшеному масштабі

Фото токарно-гвинторізного верстата Schaublin 102 vm
Фото токарно-гвинторізного верстата Schaublin 102 vm. Дивитись у збільшеному масштабі

Фото токарно-гвинторізного верстата Schaublin 102 vm
Фото токарно-гвинторізного верстата Schaublin 102 vm. Дивитись у збільшеному масштабі

Фото токарно-гвинторізного верстата Schaublin 102 vm
Фото токарно-гвинторізного верстата Schaublin 102 vm. Дивитись у збільшеному масштабі

Фото токарно-гвинторізного верстата Schaublin 102 vm
Фото токарно-гвинторізного верстата Schaublin 102 vm. Дивитись у збільшеному масштабі

Фото токарно-гвинторізного верстата Schaublin 102 vm
Фото токарно-гвинторізного верстата Schaublin 102 vm. Дивитись у збільшеному масштабі

Фото токарно-гвинторізного верстата Schaublin 102 vm
Фото токарно-гвинторізного верстата Schaublin 102 vm. Дивитись у збільшеному масштабі

Фото токарно-гвинторізного верстата Schaublin 102 vm
Фото токарно-гвинторізного верстата Schaublin 102 vm. Дивитись у збільшеному масштабі

Фото токарно-гвинторізного верстата Schaublin 102 vm
Фото токарно-гвинторізного верстата Schaublin 102 vm. Дивитись у збільшеному масштабі

Шпиндель токарно-гвинторізного верстата Schaublin 102 vm
Шпиндель токарно-гвинторізного верстата Schaublin 102 vm. Дивитись у збільшеному масштабі

Фото токарно-гвинторізного верстата Schaublin 102 vm
Фото токарно-гвинторізного верстата Schaublin 102 vm. Дивитись у збільшеному масштабі

Настановне креслення токарно-гвинторізного верстата Schaublin 102 vm
| Найменування параметру | ТВ-125 | Schaublin 102VM | Schaublin 120VM | Шаублін 125 |
|---|---|---|---|---|
| Основні параметри верстата | ||||
| Клас точності | П, В | |||
| Найбільший діаметр заготовки, що встановлюється над станиною, мм. | 260 | 200 | 250 | 270 |
| Найбільший діаметр заготовки, що встановлюється над супортом, мм. | 135 | 130 | 135 | 120 |
| Найбільша довжина заготовки у центрах (РМЦ), мм | 600 | 450 | 600 | 500 |
| Висота центрів над плоскими напрямними станини, мм | 125 | 102 | 120 | 125 |
| Шпиндель | ||||
| Діаметр отвору в шпинделі, мм | 25 | 20 | 25 | 32 |
| Найбільший діаметр матеріалу пропускається через цангу, мм | 17 | 19 | ||
| Центр шпинделя за ГОСТ 13214-67 | Морзе 4 | Морзе 2 | ||
| Кінець шпинделя за ГОСТ 12593-72 | Camlock D 1-2 | Camlock D 1-2 | Camlock D 1-3" | |
| Число ступенів частот прямого обертання шпинделя | б/с 2 діапазони | |||
| Частота прямого обертання шпинделя від варіатора, об/хв. | 48..2300 | 50..1750 | 225..3000 | |
| Гальмування шпинделя | є | є | ||
| Діаметр шківа та ширина ременя, мм | Ø 150 х 60 | Ø 75, 100, 125 х 32 | Ø 125 х 55 | |
| Супорт. Подання | ||||
| Найбільше поздовжнє переміщення супорта, мм | 580 | 490 | 580 | 440 |
| Найбільше поперечне переміщення супорта, мм | 170 | 110 | 170 | 130 |
| Крок ходового ггвинта, мм | 4 | |||
| Кількість подач супорта поздовжніх | 8 | |||
| Межі подач супорта поздовжніх, мм/про | 0,012..0,240 | 0,025..0,5 | ||
| Межі подач супорту поперечних, мм/про | 0,006..0,012 | 0,012..0,25 | ||
| Межі подач супорта поздовжніх та поперечних, мм/хв. | 4..260 | |||
| Кроки нарізних метричних різьблень, мм | 0,2..12,7 | |||
| Кроки нарізних модульних різьблень, мод | 0,24..3 | |||
| Кроки нарізних дюймових різьблень, ниток на дюйм | 2..24 | |||
| Швидкість швидких переміщень, мм/хв. | немає | немає | ||
| Механізм подач для нарізування різьблення | ||||
| Варіант B. Нарізування різьблення змінними колесами. Метричні кроки, мм | 0,25..8 | |||
| Варіант B. Нарізування різьблення змінними колесами. Дюймові кроки, витків на дюйм | 112..3 | |||
| Варіант C. Механізм подач для нарізання різьблення універсальний. Метричні кроки, мм (кількість кроків) | 0,25..3,5 (24) | |||
| Варіант C. Механізм подач для нарізання різьблення універсальний. Дюймові кроки, витків на дюйм (кількість кроків) | 112..6 (72) | |||
| Варіант C. Механізм подач для нарізання різьблення універсальний. Спеціальне різьблення змінними колесами, мм | 0,025..8 | |||
| Різцеві санки | ||||
| Найбільша довжина переміщення різцевих санчат, мм | 80 | 90 | 105 | 90 |
| Найбільший переріз державки різця, мм | 16 х 16 | 10 х 12 | 12 х 12 | 12 х 12 |
| Висота від опорної поверхні різця до осі центрів (висота різця), мм | ||||
| Число різців у різцевій головці | 1 | |||
| Задня бабка | ||||
| Діаметр пінолі, мм | 40 | |||
| Конус отвору пінолі задньої бабки за ГОСТ 2847-67 | Морзе 3 | Морзе 2 | Морзе 2 | |
| Найбільше переміщення пінолі, мм | 80 | 70 | 80 | 100 |
| Переміщення пінолі на один поділ лімба, мм | 0,05 | |||
| Розмір поперечного зміщення корпусу бабки, мм | 12 | 12 | 12 | |
| Електроустаткування | ||||
| Кількість електродвигунів, встановлених на верстаті | 2 | 3 | ||
| Електродвигун головного приводу, кВт (об/хв) | 1,7/ 2,1/ 2,6 (1000/ 1500/ 3000) |
0,8/ 1,5 (750/ 3000) | 1,5/ 2,7 (750/ 1500) | 0,75/2,5 LS (500/1500) |
| Електродвигун насоса охолоджувальної рідини, кВт | 0,125 | |||
| Сумарна потужність електродвигунів, встановлених на верстаті, кВт | ||||
| Габарити та маса верстата | ||||
| Габарити верстата (довжина ширина висота), мм | 1780 х 720 х 1285 | 1650 х 700 х 1250 | 1473 х 730 х 1280 | |
| Маса верстата (A, B, C), кг | 1100 | 680 | 880 | (910, 930, 990) |