metalinstryment.com
Довідник по металорізальних верстатів та пресовому обладнанні

ФУ-321 (FU-321) верстат фрезерный широкоуніверсальний инструментальный
схеми, опис, характеристики

Загальний вигляд фрезерного верстата ФУ-321 широкоуніверсального







Відомості про виробника фрезерного широкоуніверсального верстата ФУ-321

Фрезерный широкоуніверсальний инструментальный верстат ФУ-321 выпускался предприятием - Арсенал (Arsenal), Болгария. Болгарские производители металлообрабатывающих верстатів





Верстати, выпускаемые Болгарскими станкостроительными заводами


ФУ-321 Верстат инструментальный фрезерный широкоуніверсальний підвищеної точності. Назначение і область применения

Фрезерный широкоуніверсальний верстат ФУ-321 предназначен для фрезерування деталей цилиндрическими, дисковыми і фасонными фрезами при помощи горизонтального шпинделя, і торцовыми, кінцівыми і шпоночными фрезами при помощи поворотного вертикального шпинделя.

На станке можно выполнять ряд фрезерных і расточных работ з високою точностью, которая може быть достигнута, если верстат установлен в помещении з постоянной температурой 20±2°С і влажностью 65±5%, если вблизи верстата нет источников тепла і вибрации. На станке можно выполнять, также, сверление і рассверливание, долбление, центрование, цекование, зенкерование, развертывание, растачивание.

Наличие двух шпинделей горизонтального і поворотного вертикального, а также большого количества приладдя к верстату, делает его широкоуниверсальным і удобным для роботи в инструментальных цехах машиностроительных заводов при изготовлении пристосувань, инструмента, рельефных штампов і прочих изделий.


Основні характеристики фрезерного широкоуніверсального верстата ФУ-321 (FU-321)

Ближайший российский аналог - фрезерный універсальний верстат 6Т82.

Производитель: Арсенал (Arsenal), город Карлово, Болгария.


Верстат применяется в единичном і мелкосерийном производстве в инструментальных і механических цехах машиностроительных предприятий.





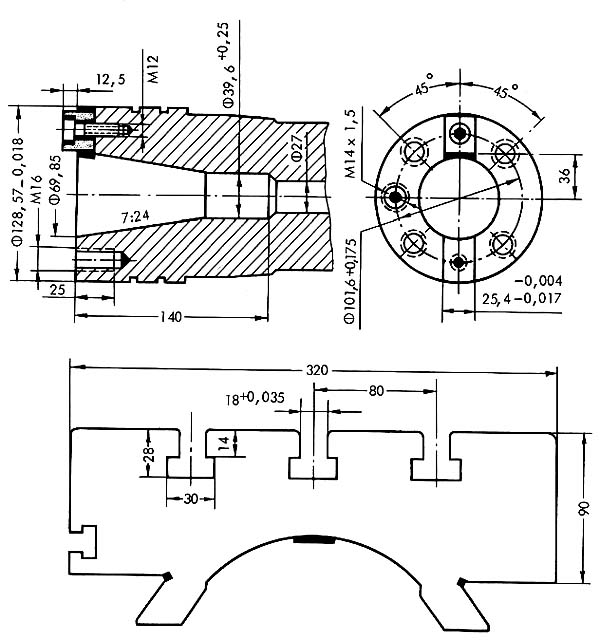
ФУ-321 Посадочные і присоединительные базы верстата. Стол рабочий

Посадочные і присоединительные базы верстата ФУ-321

Посадочные і присоединительные базы фрезерного верстата ФУ-321


Загальний вигляд фрезерного верстата ФУ-321

Загальний вигляд фрезерного верстата ФУ-321

Фото фрезерного верстата ФУ-321


Загальний вигляд фрезерного верстата ФУ-321

Фото фрезерного верстата ФУ-321


Загальний вигляд фрезерного верстата ФУ-321

Фото фрезерного верстата ФУ-321


Загальний вигляд фрезерного верстата ФУ-321

Фото фрезерного верстата ФУ-321


Загальний вигляд фрезерного верстата ФУ-321

Фото фрезерного верстата ФУ-321


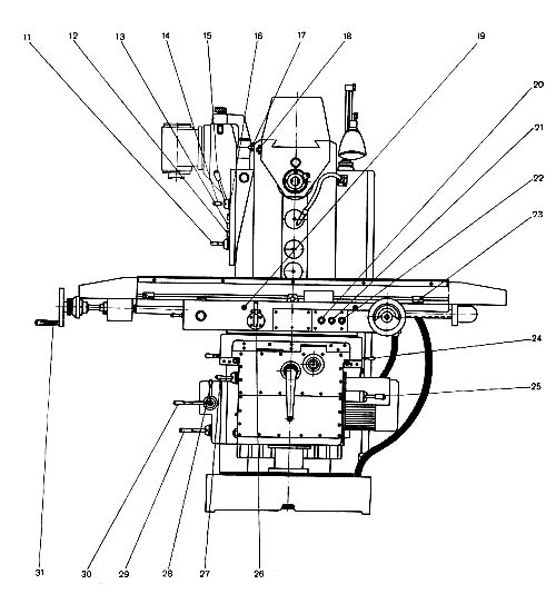
Розташування органів керування фрезерным верстатом ФУ-321

Розташування органів керування фрезерным верстатом ФУ-321Р, ФУ-321Ф1, ФУ-321Ф2

Розташування органів керування фрезерным верстатом ФУ-321


Розташування органів керування фрезерным верстатом ФУ-321Р, ФУ-321Ф1, ФУ-321Ф2

Розташування органів керування фрезерным верстатом ФУ-321


Список органів керування фрезерным верстатом ФУ-321

  1. Рукоятка переміщення стола в вертикальном і поперечном направлении
  2. Винт зажиму салазок стола
  3. Маховик переміщення стола в продольном направлении
  4. Рукоятка увімкнення поздовжньої подачі стола
  5. Микровыключатель продольного самохода
  6. Вводный выключатель
  7. Переключатель реверсирования шпинделя
  8. Механізм переміщення хобота
  9. Включатель насоса для охлаждающей жидкости
  10. Переключатель режима роботи "Ручной і автоматический"
  11. Рукоятка переключения передач
  12. Кнопка Стоп
  13. Кнопка Пуск
  14. Рукоятка переключения передач
  15. Рукоятка переключения передач
  16. Кнопка импульс
  17. Винт зажиму хобота
  18. Винт зажиму консоли
  19. Винт зажиму салазок
  20. Кнопка Стоп дублированная
  21. Кнопка Пуск дублированная
  22. Кнопка Быстрый ход
  23. Путевые выключатели продольные
  24. Рукоятка зажиму супорта на консоли
  25. Рукоятка увімкнення поперечної подачі
  26. Рукоятка регулировки зазору в продольном винте
  27. Рукоятка увімкнення вертикальной подачі
  28. Рукоятка преднабора величины подачі
  29. Рукоятка преднабора величины подачі
  30. Рукоятка преднабора величины подачі
  31. Маховик продольного переміщення стола
  32. Задня крышка
  33. Ключ блокировки
  34. Путевые выключатели вертикальные
  35. Винты зажиму салазок
  36. Рукоятка зажиму консоли
  37. Микровыключатель вертикального самохода
  38. Путевые выключатели поперечные
  39. Микровыключатель поперечного самохода
  40. Крышка защитная




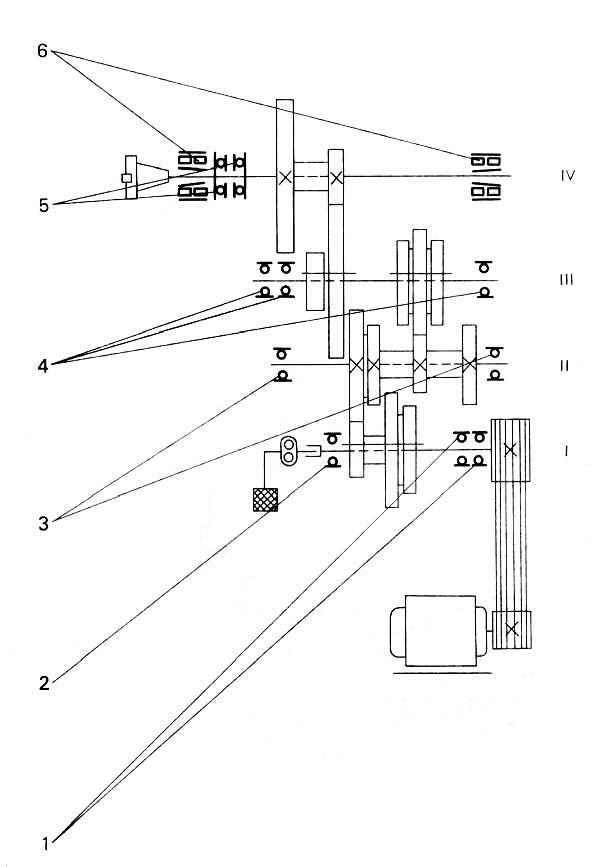
ФУ-321 Схема кінематична фрезерного верстата

Схема кінематична фрезерного верстата ФУ-321

Кінематична схема головного приводу фрезерного верстата ФУ-321


Схема кінематична фрезерного верстата ФУ-321

Кінематична схема подач стола фрезерного верстата ФУ-321

ФУ-321 Схема розположення підшибників фрезерного верстата

Схема кінематична фрезерного верстата ФУ-321

Схема розположення підшибників в приводе фрезерного верстата ФУ-321


Схема кінематична фрезерного верстата ФУ-321

Схема розположення підшибників фрезерного верстата ФУ-321




ФУ-321 Верстат фрезерный широкоуніверсальний. Відеоролик.





Технічні характеристики фрезерного верстата ФУ-321

Наименование параметра ФУ-321 6Т82Ш 6Т83Ш
Основні параметри верстата
Класс точності по ГОСТ 8-82 П П
Розміри рабочей поверхности стола (длина х ширина), мм 1250 х 320 1600 х 400
Наименьшее і наибольшее расстояние от оси горизонтального шпинделя до стола, мм 30..450 30..450
Расстояние от оси горизонтального шпинделя до хобота, мм 155 190
Расстояние от торца шпинделя поворотной головки до стола, мм 125..545 160..580
Расстояние от оси шпинделя поворотной головки до направляючих станины (вылет), мм 260..820 260..900
Рабочий стол
Наибольшее перемещение стола продольное/ поперечное/ вертикальное, мм 800/ 320/ 420 1120/ 400/ 420
Максимальная нагрузка на стол (по центру), кг 400 630
Число Т-образных пазов Розміри Т-образных пазов 3 3
Перемещение стола на одно деление лимба (продольное, поперечное, вертикальное), мм 0,05 0,05
Перемещение стола на один оборот лимба продольное і поперечное, мм 6 6
Перемещение стола на один оборот лимба вертикальное, мм 2 2
Быстрый ход стола продольный/ поперечний/ вертикальний, м/мин 4/ 4/ 1,3 4/ 4/ 1,3
Число ступеней рабочих подач стола 22 22
Пределы рабочих подач стола. Продольных і поперечных, мм/мин 12,5...1600 12,5...1600
Пределы рабочих подач стола. Вертикальных, мм/мин 4,1...530 4,1...530
Усилие різання поздовжньої, поперечної, вертикальной подач, Н 15,0/ 12,0/ 5,0 20,0/ 12,0/ 8,0
Шпиндель
Частота обертання шпинделя поворотной і накладной головок, об/мин 50..1600 50..1600
Количество швидкостей шпинделя 11 11
Частота обертання горизонтального шпинделя, об/мин 31,5..1600 31,5..1600
Количество швидкостей горизонтального шпинделя 18 18
Перемещение пиноли (гильзы) шпинделя, мм 80 80
Перемещение пиноли шпинделя на одно деление лимба, мм 0,1 0,1
Перемещение пиноли шпинделя на один оборот лимба, мм 6 6
Поворот головки шпинделя к станине/ от станины, град 45 90
Поворот головки шпинделя в поздовжньої плоскости, град 360 360
Поворот накладной головки шпинделя в поздовжньої плоскости, град 360 360
Наибольший крутящий момент на горизонтальном шпинделе, кН.м 1,46
Кінець горизонтального шпинделя по ГОСТ 24644-81 (конус по ГОСТ 15945-82) 50 ряд4, исп.6 50 ряд4, исп.6
Ескіз кінця шпинделя поворотной і накладной головки по ГОСТ 24644-81 40 ряд 3, исп.5 40 ряд 3, исп.5
Допустимый диаметр фрез при черновой обработке. Горизонтальный/ вертикальний шпиндель, мм 250/ 75
Механіка верстата
Выключающие упоры подачі (поздовжньої, поперечної, вертикальной) есть есть
Блокировка ручной і механической подачі (поздовжньої, поперечної, вертикальной) есть есть
Блокировка раздельного увімкнення подачі есть есть
Автоматическая прерывистая подача Продольная есть есть
Автоматическая прерывистая подача Поперечная і вертикальная нет нет
Торможение шпинделя есть есть
Предохранение от перегрузки (муфта) есть есть
Привід і електрообладнання
Количество електродвигателей на станке 5 5
Електродвигун приводу головного руху М1, кВт 7,5 11
Електродвигун приводу шпинделя поворотной головки М2, кВт 3,0 3,0
Електродвигун насоса охлаждающей жидкости М3, кВт 0,125 0,125
Електродвигун приводу подач стола М4, кВт 2,2 3,0
Електродвигун приводу зажиму инструмента, кВт 0,18 0,18
Суммарная мощность всех електродвигателей на станке, кВт 13,87 17,3
Габарити і масса верстата
Габарити верстата (длина х ширина х высота), мм 2280 х 1965 х 1970 2570 х 2252 х 2040
Масса верстата, кг 3550 4370











Заказать