metalinstryment.com
Довідник по металорізальних верстатів та пресовому обладнанні

6Т75 Верстат фрезерный широкоуніверсальний
схеми, опис, характеристики

6Т75 Верстат фрезерный широкоуніверсальний







Відомості про виробника широкоуніверсального фрезерного верстата 6Т75

Верстат фрезерный широкоуніверсальний моделі 6Т75 разработал і выпускал Владимирский станкостроительный завод, основанный в 1935 году і Вильнюсский станкостроительный завод Жальгирис.

В настоящее время завод производит фрезерные верстати з УЦИ і ЧПУ под наименованием ФС-250, ФС-300, ФС-300-01, ФС-300-02 CNC і ФС-400.





Верстати, выпускаемые Владимирским станкостроительным заводом


6Т75 Верстат фрезерный широкоуніверсальний. Назначение і область применения

Широкоуніверсальний инструментальный фрезерный верстат високою точності 6Т75 производился заводом з 1966 года. Он мало известен в СССР і России т.к. отправлялся, в основном, на експорт.

Фрезерный верстат високою точності 6Т75 является аналогом фрезерного верстата СФ-250.

Верстат 6Т75 продолжает линию универсальных фрезерных верстатів, которая начинается з моделі УФ-9 і УФ-600с.

Фрезерный верстат 6Т75 предназначен для фрезерування деталей цилиндрическими, дисковыми і фасонными фрезами при помощи горизонтального шпинделя, і торцовыми, кінцівыми і шпоночными фрезами при помощи поворотного вертикального шпинделя, который, при необходимости, може быть повернут под углом.

Верстат 6Т75 предназначен, в основном, для высокоточной чистовой обробки фрезерованием поверхностей деталей.

Принцип роботи і особливості конструкції верстата

Фрезерный верстат 6Т75 намного превосходит своих предшественников по своим характеристикам:

Особенность верстата 6Т75 - две вертикальних шпиндельных головки, каждая из которых смонтирована в своей шпиндельной бабке:

  1. Фрезерно-расточная головка - 45..2000 об/мин, Морзе 4, шпиндель вертикально не перемещается, поворот ±90°
  2. Сверлильно-фрезерна головка - 90..4000 об/мин, Морзе 2, вертикальное перемещение шпинделя 60 мм, подача шпинделя 0,05 мм/об, поворот головки ±90°

Обрабатываемая деталь може быть установлена на основном столе з вертикальной рабочей плоскостью или на угловом столе з горизонтальной рабочей плоскостью. Для обробки наклонных поверхностей деталь може устанавливаться на универсальном столе.

Для обробки деталей, требующих деления, могут быть использованы круглый стол либо делительная головка.

К верстату прилагается удобный для пользования инструментальный шкаф, а также комплект пристосувань і инструмента.

Технологические возможности верстата могут быть значительно расширены применением приладдя і пристосувань, поставляемых за особую плату.

На станке можно выполнять ряд фрезерных і расточных работ з високою точностью, которая може быть достигнута, если верстат установлен в помещении з постоянной температурой 20±2°С і влажностью 65±5%, если вблизи верстата нет источников тепла і вибрации. На станке можно выполнять, также, сверление і рассверливание, долбление, центрование, цекование, зенкерование, развертывание, растачивание.

Наличие двух шпинделей горизонтального і поворотного вертикального, а также большого количества приладдя к верстату, делает его широкоуниверсальным і удобным для роботи в инструментальных цехах машиностроительных заводов при изготовлении пристосувань, инструмента, рельефных штампов і прочих изделий.

Широкий диапазон оборотів шпинделя, наличие механических подач і быстрых перемещений обеспечивают економичную обработку различных деталей в оптимальных режимах.

Верстат применяется в единичном і мелкосерийном производстве в инструментальных і механических цехах машиностроительных предприятий.






Присоединительные базы верстата 6Т75

Присоединительные базы фрезерного верстата 6Т75. Горизонтальный шпиндель і шпиндель вертикальной головки 6Т75

Присоединительные базы фрезерного верстата 6Т75

6Т75 Присоединительные базы верстата. Скачать в увеличенном масштабе

СФ-250 Присоединительные базы верстата. Скачать в увеличенном масштабе



Присоединительные базы фрезерного верстата 6Т75. Горизонтальный шпиндель і шпиндель вертикальной головки 6Т75

Присоединительные базы фрезерного верстата 6Т75

6Т75 Присоединительные базы верстата. Скачать в увеличенном масштабе



Фото широкоуніверсального фрезерного верстата 6Т75

Фото широкоуніверсального фрезерного верстата 6Т75

Фото широкоуніверсального фрезерного верстата 6Т75

Фото широкоуніверсального фрезерного верстата 6Т75. Скачать в увеличенном масштабе



Фото широкоуніверсального фрезерного верстата 6Т75

Фото широкоуніверсального фрезерного верстата 6Т75

Фото широкоуніверсального фрезерного верстата 6Т75. Скачать в увеличенном масштабе



Фото широкоуніверсального фрезерного верстата 6Т75

Фото широкоуніверсального фрезерного верстата 6Т75

Фото широкоуніверсального фрезерного верстата 6Т75. Скачать в увеличенном масштабе



Фото широкоуніверсального фрезерного верстата 6Т75

Фото широкоуніверсального фрезерного верстата 6Т75

Фото широкоуніверсального фрезерного верстата 6Т75. Скачать в увеличенном масштабе



Фото широкоуніверсального фрезерного верстата 6Т75

Фото широкоуніверсального фрезерного верстата 6Т75

Фото широкоуніверсального фрезерного верстата 6Т75. Скачать в увеличенном масштабе



Розташування органів керування фрезерным верстатом 6Т75

Схема органів керування фрезерного верстата 6Т75

Розташування органів керування фрезерным верстатом 6Т75

Розташування органів керування фрезерным верстатом 6Т75. Скачать в увеличенном масштабе



Список органів керування фрезерным верстатом 6Т75

  1. Кнопочная станція для увімкнення і виключення сети
  2. Кнопочная станція для пуска і останова верстата
  3. Маховичок вертикального переміщення суппорта
  4. Рукоятка зажиму суппорта на вертикальних направляючих станины
  5. Рукоятка увімкнення подач суппорта
  6. Кнопка ускоренного переміщення суппорта
  7. Маховичок продольного переміщення стола
  8. Маховичок медленного переміщення стола
  9. Рукоятка зажиму салазок суппорта
  10. Рукоятка установки чисел оборотів шпинделей
  11. Рукоятка установки величины подачі
  12. Маховичок переміщення шпиндельной бабки
  13. Маховичок медленного переміщення шпиндельной бабки
  14. Рукоятка увімкнення механической подачі шпиндельной бабки
  15. Кнопка ускоренного переміщення шпиндельной бабки
  16. Рукоятка зажиму шпиндельной бабки
  17. Рукоятка отключения обертання горизонтального шпинделя
  18. Маховичок ручного проворота шестерен коробки швидкостей
  19. Выключатель насоса охлаждения
  20. Выключатель лампы местного освещения
  21. Рукоятка переміщення вертикального шпинделя
  22. Рукоятки фиксации нулевого положения головки
  23. Упоры автоматичного виключення механической подачі продольного переміщення стола
  24. Упоры автоматичного виключення механической подачі вертикального переміщення суппорта
  25. Упоры автоматичного виключення механической подачі шпиндельной бабки



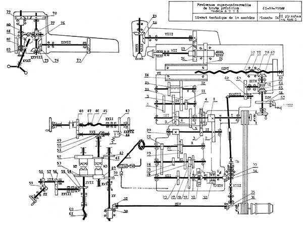
Схема кінематична універсального фрезерного верстата 6Т75

Схема кінематична універсального фрезерного верстата 6Т75

Кінематична схема універсального фрезерного верстата 6Т75

6Т75 кінематична схема універсального фрезерного верстата. Скачать в увеличенном масштабе

СФ-250 кінематична схема універсального фрезерного верстата. Скачать в увеличенном масштабе



Опис кінематичної схеми фрезерного верстата 6Т75

Рух от електродвигуна при помок і клиновых ремней передається на приемный вал коробки подач. С етого вала рух передається в двух направлениях:

  1. Через шестерни 1, 2, 3, 4 на приемный вал коробки швидкостей III или непосредственно з вала I на вал III, при перемещении шестерни 4 вправо.
  2. Через коробку подач на выходной вал XII коробки подач, от которого передається рух на супорт і горизонтальную бабку.

Коробка швидкостей верстата позволяет сообщить шпинделям верстата 12 различных швидкостей от 45 до 2000 об/мин, со знаменателем ряда чисел оборотів φ = 1,41.

Коробка подач позволяет сообщить суппорту і горизонтальной, бабке девять различных подач от 10 до 400 мм/мин со знаменателем ряда подач φ = 1,58 рух на супорт передається з вала ХII через обгонную муфту М, соединяющую вал ХII з валом ХХХIV,через коническую пару 34, 33 з предохранительной муфтой М, карданный вал ХIII, конические пара 35,36 і 37,38 на ходовой вал ХV ряд зубчатых колес (39,40,42,41,51,50,49,48) на ходовой винт 45 или зубчасті колеса 39,40,53,42,41,52 на ходовой винт 60.

При сцеплении муфты М2 з зубчатыми колесами 52 или 53, супорт будет перемещаться соответственно вверх или вниз.

При сцеплении муфты М3 з зубчатыми колесами 40 или 41 салазки суппорта будут перемещаться соответственно влево или вправо.

Кроме девяти рабочих подач супорт і салазки, а также горизонтальная бабка, имеют ускоренное перемещение, величина которого равна 800 мм/мин. Ускоренное перемещение може производиться только в том случае, если включена механическая подача.

При нажатии на кнопку електромагнит, смонтированный на коробке подач, включает многодисковую фрикционную муфту Мф. В етом случае ускоренное рух передається через шестерни 1,2,32 (муфту Мф), коническую пару 34,33 на карданный вал ХIII.

Далее рух передається или на суппорт, или на салазки, я. на бабку, в зависимости от того, куда включены муфты М2 і М3 или М1. Блокировка передачи руху или на бабку, или только на супорт осуществляется двумя микропереключателями.

Механическая подача горизонтальной бабки осуществляется от карданного вала ХIII на вал XXXIII через шестерни 62,63, реверс 64,65,68 на коническую пару 69,70. С коническим колесом 70 жестко соединена маточная гайка 71, которая передает рух на винт 72.

Ручная подача горизонтальной бабки осуществляется маховичком. Точное і более плавное перемещение бабки осуществляется червячной передачей 67,66.

Аналогичная передача применяется для точного переміщення салазок суппорта.



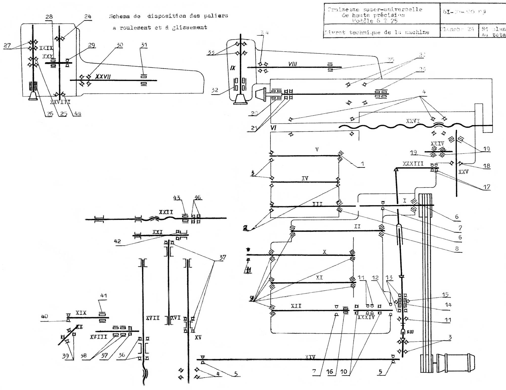
Схема розположення підшибників фрезерного верстата 6Т75

Схема розположення підшибників фрезерного верстата 6Т75

6Т75 Схема розположення підшибників універсального фрезерного верстата. Скачать в увеличенном масштабе

СФ-250 Схема розположення підшибників універсального фрезерного верстата. Скачать в увеличенном масштабе




Конструкція основних вузлів універсального фрезерного верстата 6Т75

Горизонтальный шпиндель фрезерного верстата 6Т75

Горизонтальный шпиндель фрезерного верстата 6Т75

6Т75 Горизонтальный шпиндель фрезерного верстата. Скачать в увеличенном масштабе



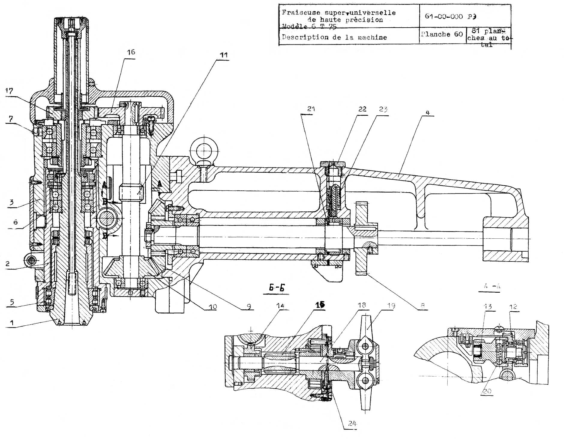
Головка фрезерно-расточная фрезерного верстата 6Т75

Головка фрезерно-расточная фрезерного верстата 6Т75

6Т75 Головка фрезерно-расточная фрезерного верстата. Скачать в увеличенном масштабе

СФ-250 Головка фрезерно-расточная фрезерного верстата. Скачать в увеличенном масштабе



Головка сверлильно-фрезерна  фрезерного верстата 6Т75

Головка сверлильно-фрезерна фрезерного верстата 6Т75

6Т75 Головка сверлильно-фрезерна фрезерного верстата. Скачать в увеличенном масштабе

СФ-250 Головка сверлильно-фрезерна фрезерного верстата. Скачать в увеличенном масштабе



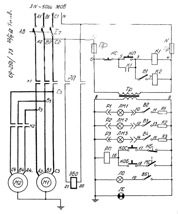
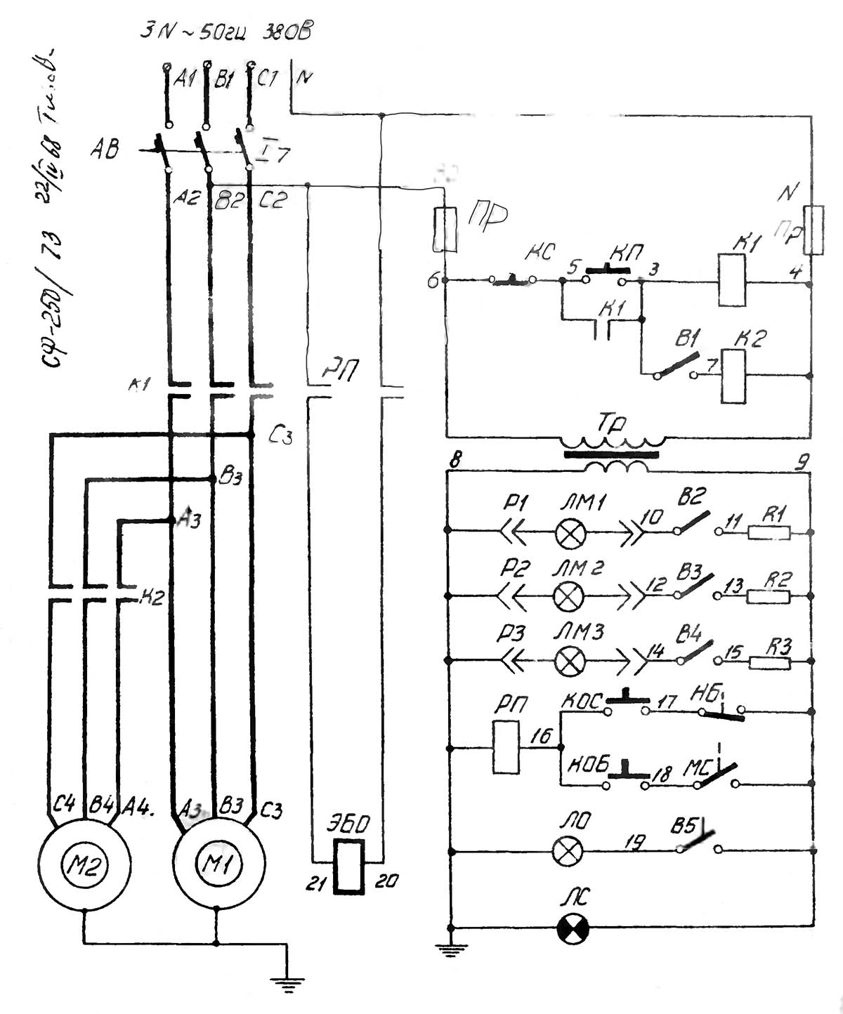
Схема електрична фрезерного верстата 6Т75

Схема електрична фрезерного верстата 6Т75

Електрична схема універсального фрезерного верстата 6Т75

Електрична схема універсального фрезерного верстата 6Т75. Скачать в увеличенном масштабе



Список елементів електрической схеми фрезерного верстата 6Т75

Список елементів електрической схеми фрезерного верстата 6Т75

Список елементів електрической схеми фрезерного верстата 6Т75. Скачать в увеличенном масштабе






6Т75 Верстат фрезерный широкоуніверсальний високою точності. Відеоролик.




Технічні характеристики фрезерного верстата 6Т75

Наименование параметра СФ676 СФ-250 6Т75 КФПЭ-250н МС12-250
Основні параметри верстата
Класс точності по ГОСТ 8-82 Н В В П П
Розміри вертикального стола, мм 250 х 630 245 х 630 200 х 500 200 х 500
Розміри горизонтального (углового) стола, мм 250 х 800 245 х 630 200 х 630 270 х 500 Ø 250
Максимальная масса обрабатываемой детали, кг 100 35
Расстояние от оси горизонтального шпинделя до рабочей поверхности горизонтального (углового) стола, мм 80..460 60..360 65..320 65..315
Расстояние от торца вертикального шпинделя до рабочей поверхности горизонтального стола, мм 0..380 35..290 -
Наибольший вылет оси вертикального шпинделя, мм 125..375 -
Наибольший продольный ход стола (X), мм 450 250 250 250 250
Наибольший ход шпиндельной бабки (Y), мм 300 200 200 200
Наибольший вертикальний ход суппорта стола (Z), мм 380 300 300 255 250
Наибольший диаметр растачивания, мм 100 100
Наибольший диаметр сверления, мм 15 8 12
Наибольший диаметр різьби, мм М12
Горизонтальная шпиндельна бабка
Частота обертання горизонтального шпинделя, об/мин (ступеней) 50..1630 (16) 45..2000 (12)
45..2000 (12) 45..2000 (12) 45..2000 (12)
Количество швидкостей горизонтального шпинделя 16 12 12 12 12
Конус горизонтального шпинделя 40АТ5 Морзе 4 Морзе 4АТ5 Морзе 4АТ5 Морзе 4АТ5
Наибольший допустимый крутящий момент на горизонтальном шпинделе, Нм 148 312
Перемещение бабки на одно деление лимба, мм 0,02
Перемещение бабки на один оборот лимба, мм 5
Быстрое перемещение бабки, мм/мин 800 2400
Количество подач горизонтальной шпиндельной бабки 16 9 9
Пределы подач горизонтальной шпиндельной бабки, мм/мин (ступеней) 13..395 (16) 10..400 (9) 10..400 (9) 10..1200 (Б/с) 10..1200 (Б/с)
Наибольшее усилие подач шпиндельной бабки, Н 5000
Выключающие подачу упоры есть есть есть есть есть
Вертикальная фрезерна головка
Частота обертання вертикального шпинделя, об/мин (Число ступеней) 63..2040 (16)
90..4000 -
Количество швидкостей вертикального шпинделя 16 12 12 -
Наибольшее осевое перемещение вертикального шпинделя, мм 80 -
Наибольший угол поворота вертикальной головки в вертикальной плоскости, градус ±90° -
Конус вертикального шпинделя 40АТ5 Морзе 4 АТ5 -
Наибольший допустимый крутящий момент на вертикальном шпинделе, Нм 120 -
Вертикальная фрезерно-расточная головка
Расстояние от торца вертикального шпинделя до рабочей поверхности горизонтального стола, мм 330 -
Частота обертання вертикального шпинделя, об/мин (Число ступеней) 45..2000 (12)
-
Наибольшее осевое перемещение вертикального шпинделя, мм нет -
Наибольший угол поворота вертикальной головки в вертикальной плоскости, градус ±90°
Конус горизонтального і вертикального шпинделей Морзе 4 -
Наибольший допустимый крутящий момент на вертикальном шпинделе, Нм 304 -
Вертикальная сверлильно-фрезерна головка -
Расстояние от торца вертикального шпинделя до рабочей поверхности горизонтального стола, мм 320 -
Частота обертання вертикального шпинделя, об/мин (Число ступеней) 90..4000 (12)
-
Наибольшее осевое перемещение вертикального шпинделя от руки, мм 60 -
Механическая подача шпинделя, мм/об 0,05 -
Наибольший угол поворота вертикальной головки в вертикальной плоскости, градус ±90° -
Конус горизонтального і вертикального шпинделей Морзе 2 -
Наибольший допустимый крутящий момент на вертикальном шпинделе, Нм 566 -
Суппорт стола. Стол вертикальний. Подачи
Пределы продольных і вертикальних подач стола (X, Z), мм/мин (Ступеней) 13..395 10..400 (9) 10..1200 (Б/с)
Ускоренный ход стола, мм/мин 935 800
Перемещение стола продольное на одно деление лимба, мм 0,02
Перемещение суппорта стола вертикальное на одно деление лимба, мм 0,02
Количество подач стола 16 9
Наибольшее усилие подач стола, Н 5000 5720
Магазин инструмента
Количество инструмента в магазине - - - 8 20
Електроустаткування і привід верстата
Електродвигун головного привода, кВт (об/мин) 3 2,2 (1430) 2,2 (1430) 2,2 (1500) 2,2
Електродвигун приводу насоса охлаждения, кВт 0,12 0,12 (2800), ПА-22 0,12 (2800), ПА-22 0,12 (2800), ПА-22
Електродвигун гідростанції, кВт - - - 0,25 (1500)
Електродвигун подач по координатам X, Y, Z, кВт - - - 0,55 (6000) 3 шт 0,616
Електродвигун насоса змазки, кВт - - - 0,55 (1500)
Суммарная мощность електродвигателей, кВт 3,12 2,32 4,65
Габарит і масса верстата
Габарити верстата (длина х ширина х высота), мм 1200 х 1240 х 1780 1120 х 1280 х 1690 1120 х 1280 х 1690 1440 х 1290 х 1650
Масса верстата, кг 1050 850 850 1200 1680

    Список литературы:

  1. Специализированный фрезерный верстат високою точності 6Т75. Руководство по експлуатации і обслуговування, 1968

  2. Аврутин С.В. Основы фрезерного дела, 1962
  3. Аврутин С.В. Фрезерне дело, 1963
  4. Ачеркан Н.С. Металлорежущие верстати, Том 1, 1965
  5. Барбашов Ф.А. Фрезерне дело 1973, с.141
  6. Барбашов Ф.А. Фрезерные роботи (Профтехобразование), 1986
  7. Блюмберг В.А. Справочник фрезеровщика, 1984
  8. Григорьев С.П. Практика координатно-расточных і фрезерных работ, 1980
  9. Копылов Р.Б. Работа на фрезерных верстатах,1971
  10. Косовский В.Л. Справочник молодого фрезеровщика, 1992, с.180
  11. Кувшинский В.В. Фрезерование,1977
  12. Ничков А.Г. Фрезерные верстати (Библиотека станочника), 1977
  13. Пикус М.Ю. Справочник слесаря по ремонту металлорежущих верстатів, 1987
  14. Плотицын В.Г. Расчёты настроек і наладок фрезерных верстатів, 1969
  15. Плотицын В.Г. Наладка фрезерных верстатів,1975
  16. Рябов С.А. Современные фрезерные верстати і их оснастка, 2006
  17. Схиртладзе А.Г., Новиков В.Ю. Технологическое обладнання машиностроительных производств, 1980
  18. Тепинкичиев В.К. Металлорежущие верстати, 1973
  19. Чернов Н.Н. Металлорежущие верстати, 1988
  20. Френкель С.Ш. Справочник молодого фрезеровщика (3-е изд.) (Профтехобразование), 1978








Заказать