Виробник токарно-револьверного верстата моделі 1325Ф30 - Новочеркаський верстатобудівний завод .
Розробник верстата 1325Ф30 - Ленінградське спеціальне конструкторське бюро автоматів та револьверних верстатів.
Верстат токарно-револьверний 1325Ф30 з ЧПУ призначений для токарної обробки деталей із прутка діаметром від 18 до 25 мм в автоматичному циклі в умовах дрібносерійного та середньосерійного виробництва.
На верстаті 1325Ф30 можна проводити такі види токарної обробки: обточування, розточування, підрізування, проточування канавок, свердління, зенкерування, розгортання, нарізання різьблення мітчиками і плашками, а також різцями, обточування і розточування поверхонь конічних, а також криволіній.
На верстаті 1325Ф30 повинен оброблятися тільки калібрований холоднотягнутий прутковий матеріал, що відповідає за допусками на розміри перерізу наступним стандартам: ГОСТ 1628-72; ГОСТ 8559-75; ГОСТ 2060-73; ГОСТ 8560-78; ГОСТ 7417-75 (з полем допуску h l2).
Компонування верстата - горизонтальне.
Привід головного руху складається з двошвидкісного асинхронного електродвигуна та коробки швидкостей з електромагнітними муфтами. Швидкості шпинделя перемикаються автоматично за рахунок увімкнення електромагнітних муфт і перемикання швидкостей двигуна.
Верстат 1325Ф30 оснащується хрестовим супортом, на якому монтуються приводи поздовжньої подачі супорта та кругової подачі револьверної головки.
На супорті встановлено дванадцятипозиційну револьверну головку з горизонтальною віссю обертання. Револьверна головка є автономною складальною одиницею та кріпиться на верхню каретку хрестового супорта. Конструкція револьверної головки забезпечує високу жорсткість та точність повороту (фіксація головки на плоскі зубчасті колеса), а також висока швидкодія. Дванадцятипозиційна головка забезпечує широкі технологічні можливості верстата та підвищує його продуктивність.
Механізм подачі та затиску прутка працює від індивідуального електродвигуна. Під час роботи механізму подачі та затиску прутка обертання шпинделя автоматично переривається. Регулювання величини подачі дроту здійснюється переміщенням каменю куліси. Подача дроту проводиться плавно з постійною величиною розгону та гальмування.
Розробник - Ленінградське спеціальне конструкторське бюро автоматів та револьверних верстатів.
Виробник – Новочеркаський верстатобудівний завод.
Основні параметри верстата - відповідно до ГОСТ 21608-76 Верстати металорізальні з ЧПУ.
Верстат класу точності - П за ГОСТ 8-82Е.
Точність обробки деталей на верстаті:

Габарит робочого простору верстата 1325ф30

Револьверна головка верстата 1325ф30

Фото токарно-револьверного верстата 1325ф30
Фото токарного револьверного верстата 1325Ф30. Дивитись у збільшеному масштабі

Фото токарно-револьверного верстата 1325ф30

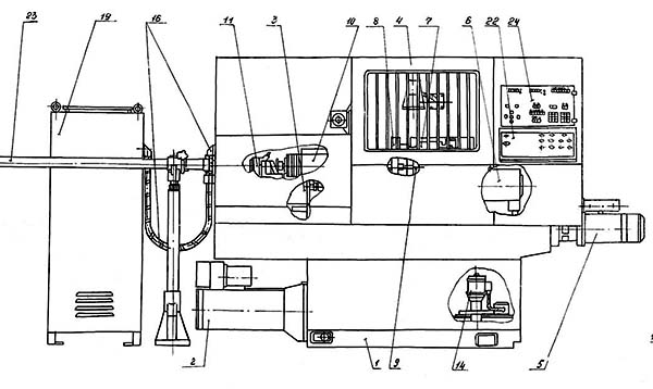
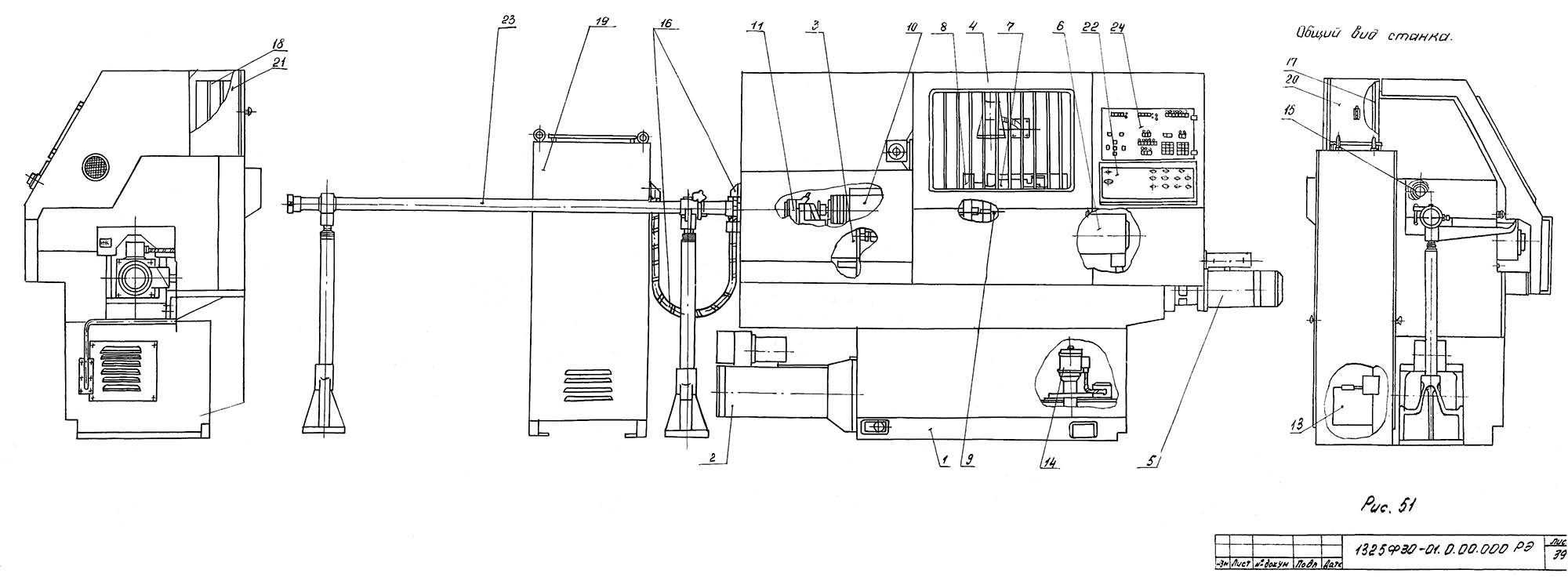
Розташування основних вузлів токарного револьверного верстата 1325Ф30

Розташування органів керування токарно-револьверним верстатом 1325Ф30

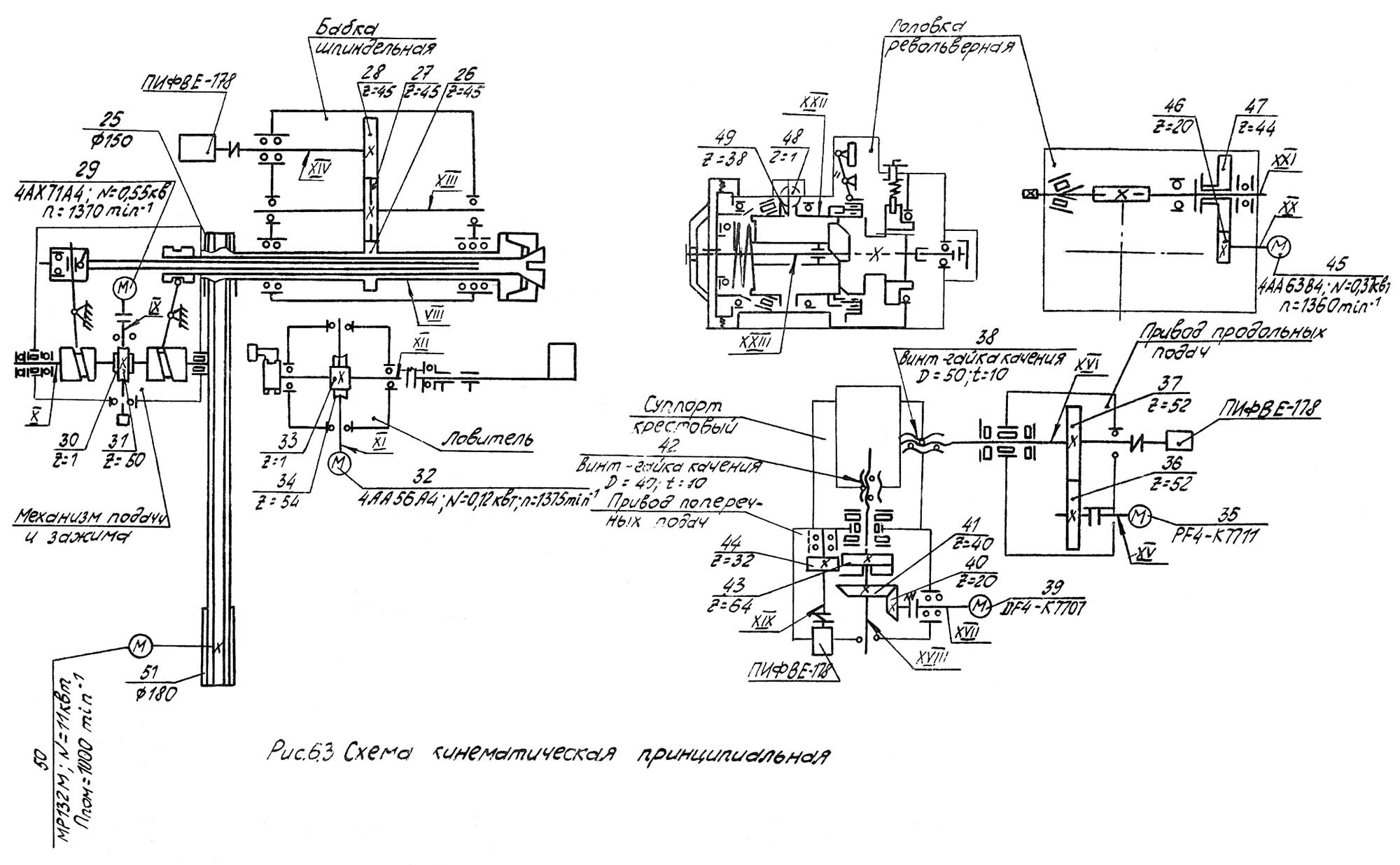
Кінематична схема токарного револьверного верстата 1325Ф30
Кінематична схема токарного револьверного верстата 1325Ф30. Дивитись у збільшеному масштабі
Верстат моделі 1325Ф30-01. Обертання від регульованого електродвигуна постійного струму МР 132M потужністю 11 кВт, 1000 об/хв через ремінну передачу 180/150 полікліновий ремінь 14Л2000 передається шпинделю. Реверс та гальмування шпинделя здійснюється електродвигуном.
Продольное перемещение револьверного суппорта осуществляется от двигуна постоянного тока PF4-K7711 (производства ПНР) С максимальным крутящим моментом 10 Нм і через зубчатую передачу 36-37 з передаточным числом 52/52 і передачу «Винт-гайка качения" з D = 50 мм і t = 10 мм.
Пределы рабочих подач 2..2500 мм/мин, скорость быстрых перемещений 10 м/мин. Дискретность задания переміщення - 0,01 мм.
Поперечное перемещение каретки револьверного суппорта осуществляется от двигуна постоянного тока DF4-K7707 через коническую зубчатую передачу 40-41 з передаточным отношением 20/40 передачу винт-гайка качения з D = 40 мм і t = 10 мм.
Пределы рабочих подач 1..1250 мм/мин, скорость быстрых перемещений 10 м/мин. Дискретность задания переміщення - 0,005 мм.
Привід поворота і зажима 12-ти позиционной револьверної головки з горизонтальной осью осуществляется от електродвигуна мощностью 0,37 кВт з частотой обертання 1360 об/мин через зубчатую передачу 46-47 з передаточным отношением 20/44 червячную передачу 48-49 з передаточным отношением 1/38. Разжим, поворот і зажим револьверної головки осуществляется торцовой кулачковой муфтой.
Привід механізма подачі і зажиму прутка осуществляется електродвигуном мощностью 0,55 кВт з частотой обертання 1370 мин.
От електродвигуна вращение передається череа червячную передачу 31-30 з передавальний отношением 1/50 на кулачковый вал з двумя цилиндрическими кулачками. Один из кулачков через рычаг производит зажим прутка, другой через регулируемый рычаг-подачу прутка. Цикл подачі і зажина происходит за один оборот кулачкового вала.
Привід ловителя осуществляется електродвигателей мощностью 0,12 кВт з частотой обертання 1375 об/мин. От електродвигатели вращение передається через червячную передачу 33-34 з передаточным отношением 1/54 на вал ловителя. Угол повороте вала ловителя контролируется конечными выключателями, на которые воздействуют передвижные кулачки, расположенные на валу ловителя.

Настановне креслення токарно-револьверного верстата 1325ф30
| Наименование параметра | 1325Ф30 | |
|---|---|---|
| Основні параметри верстата | ||
| Наибольший диаметр обрабатываемого вироби над станиной, мм | 320 | |
| Наибольший диаметр обрабатываемого прутка, мм | 25 | |
| Диаметр отверстия в шпинделе, мм | 40 | |
| Наибольшая длина обрабатываемого прутка в цанговом зажиме, мм | 100 | |
| Наибольшая длина обрабатываемого прутка в патроне, мм | 60 | |
| Наибольшая длина прутка, устанавливаемого в зажимной і подающей трубе, мм | 3000 | |
| Рекомендуемая длина прутка, устанавливаемого в зажимной і подающей трубе, мм | 1200 | |
| Наибольшая длина прутка, устанавливаемого без подающего пристроя, мм | 850 | |
| Наибольшая длина подачі прутка, мм | 80 | |
| Высота центров, мм | 170 | |
| Расстояние от торца шпинделя до револьверної головки, мм | 100/ 350 | |
| Расстояние от оси шпинделя до основания верстата, мм | 1060 | |
| Найбільший розмір різьби, що нарізається, плашками і мітчиками, мм | M12 | |
| Кількість інструментів у револьверній головці | 12 | |
| Шпиндель | ||
| Межі чисел оборотів шпинделя з цанговим патроном, об/хв | 90..4000 | |
| Межі чисел оборотів шпинделя із затискним патроном, об/хв | 90..2800 | |
| Кінець шпинделя фланцевий згідно з ГОСТ 12595-72 | 1-5C | |
| Найбільший момент, що крутить, на шпинделі не менше, Нм (кг*м) | ||
| Подання | ||
| Найбільше переміщення револьверного супорта: поздовжнє (Z)/поперечне (X), мм | 250/120 | |
| Діапазон швидкостей поздовжніх подач револьверного супорта, мм/хв. | 2..2500 | |
| Діапазон швидкостей поперечних (кругових) подач револьверного супорта, мм/хв. | 1..1250 | |
| Найбільше зусилля подач револьверного супорта по осі Z/X, кН | 4/ 2 | |
| Електроустаткування верстата | ||
| Кількість електродвигунів на верстаті, кВт | 6 | |
| Електродвигун головного приводу, кВт | 6 | |
| Електродвигун приводу центральної мастильної системи, кВт | 0,25 | |
| Електродвигун приводу револьверної головки, кВт | 0,37 | |
| Електродвигун приводу подачі та затиску прутка, кВт | 0,55 | |
| Електродвигун приводу уловлювача деталі, кВт | 0,12 | |
| Електродвигун насоса охолодження, кВт | 0,12 | |
| Габарити та маса верстата | ||
| Габаритні розміри верстата (довжина, ширина, висота), мм | 2550 х 1112 х 1700 | |
| Маса верстата, кг | 2600 |