metalinstryment.com
Довідник по металорізальних верстатів та пресовому обладнанні

Mini Mill вертикально фрезерный компактный обрабатывающий центр
руководство, опис, характеристики

Mini Mill вертикально фрезерный компактный обрабатывающий центр







Відомості про виробника обрабатывающего центра моделі Mini Mill

Производитель фрезерного обрабатывающего центра моделі Mini Mill - Haas Automation, Inc..

Компания Haas Automation, Inc. является одной из крупнейших станкостроительных компаний в Соединенных Штатах Америки і в мире. Компания расположена на Юге США в штате Калифорния. Основні виды выпускаемого оборудования: вертикальные і горизонтальные фрезерно-сверлильные обрабатывающие центры, токарные обрабатывающие центры, прецизионные ЧПУ управляемые поворотные столы і делительные аппараты к вертикально- і горизонтально-фрезерным обрабатывающим центрам. В настоящее время HAAS выпускает 75 видов і типорозмірів оборудования различного назначения.

Фирма Haas Automation, Inc. разрабатывает і изготавливает высококачественное обладнання для Европейского рынка з 1991 года. Для технической поддержки і сервисного обслуживания растущего рынка компанией "HAAS Automation USA", было создано Европейское отделение фирмы - "HAAS Automation Europe", призванное обеспечить мировой уровень технического обслуживания і информационной поддержки существующих і будущих клиентов фирмы. Фирма HAAS выпускает более 500 верстатів з ЧПУ в месяц і является крупнейшим производителем такого рода оборудования.





Верстати, выпускаемые компанией Haas Automation



Компактный вертикально-фрезерный центр з ЧПУ Haas (серия Mini Mill). Назначение, область применения

Обработка небольших деталей на больших верстатах може быть нееффективной і даже сократить доходы.

Малогабаритные вертикально-фрезерные центры Haas серии Mini Mill предоставляют економичное решение обробки небольших партий небольших деталей.

Серия компактных вертикальних фрезерных обрабатывающих центраHaas Mini Mill совершенный варіант для школ, или для первых шагов механической обробки з помощью верстатів з ЧПУ і они ценное приобретение для цехов, нуждающихся в дополнительном станке, а пространство ограничено.

Фрезерные верстати Haas серии Mini Mill занимают площадь всего 2 x 2 м, обеспечивая при етом большую рабочую зону 406 x 305 x 254 мм. Этот сверхкомпактный верстат оснащен шпинделем 6000 об/мин з конусом ISO 40, ускоренным переміщенням 15,2 м/мин і автоматическим пристрійм смены инструмента на 10 гнезд. Фрезерный верстат серии MiniMill обеспечивает такое же надежное изготовление небольших деталей – он идеален для выполнения операций різання і чистовой обробки алюминия, а также обеспечивает низкоскоростной крутящий момент для обробки стали.


Відео фрезерного обрабатывающего центра Super Mini Mill


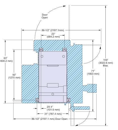
Mini Mill експлутационные габаритные розміри фрезерного центра

Mini Mill габаритные розміри фрезерного вертикального компактного обрабатывающего центра

A - наибольшая ширина верстата при открытых дверях панелі керування - 71.00" (1981 мм)

B - наибольшая ширина верстата при закрытых дверях панелі керування - 68.14" (1731 мм)

C - ширина открывающейся дверцы - 24.00" (610 мм)

D - наибольшая высота верстата - 98.00" (2489 мм)

E - высота открывающейся дверцы над уровнем пола - 34.81" (884 мм)

F - ширина станины - 34.00" (864 мм)

G - минимальная ширина верстата - 60.00" (1524 мм)


Габарити

Высота(мм) - 2489

Ширина(мм) - 1981

Глубина (мм) - 2034

Вес(кг) - 1543

Примечание: Эксплутационные габарити є максимальными размерами верстата во время роботи. Это розміри верстата з полностью открытой дверью панелі керування, со шпиндельной головкой в своей наивысшей точке, з керуванням в своем самом дальнем положении вперед і з установленной сливной трубой.


Обрабатывающие центры. Загальні відомості

Синонимы: многоцелевой верстат, многооперационный верстат, обрабатывающий центр, сверлильно-фрезерно-расточной верстат з ЧПУ і АСИ, фрезерный горизонтальный обрабатывающий центр, верстат горизонтально-фрезерный з ЧПУ і АСИ, Machining Center, Horizontal boring and milling center for cubical workpieces, Special purpose machining center, High speed machining center (HSC)

Многоцелевой (многооперационный) верстат — ето верстат для комплексной обробки заготовок з числовым программным керуванням і автоматичною сменой инструментов.

Многим специалистам нравится название — обрабатывающий центр (ОЦ). Аналогичные термины используют за рубежом.

Кроме многоцелевых, существуют і другие верстати з ЧПУ з автоматичною сменой режущих инструментов, которые не называют многооперационными. В чем же различие между ними.

Многооперационные верстати отличаются особо високою кінцінтрацией обробки. На них производят черновую, получистовую і чистовую обработку сложных корпусных заготовок, содержащих десятки обрабатываемых поверхностей, выполняют самые разнообразные технологические переходы: фрезерование плоскостей, уступов, канавок, окон, колодцев; сверление, зенкерование, развертывание, растачивание гладких і ступенчатых отверстий; растачивание отверстий инструментами з тонким регулюванням на размер; обработку наружных і внутренних поверхностей і др. Для осуществления етих операций на станке необходимо мати большой запас металлорежущих инструментов. У верстатів з ЧПУ і автоматичною сменой инструментов запас инструментов создается обычно в револьверних головках. Среди них фрезерные і сверлильные верстати, предназначенные для изготовления головним образом таких корпусных і плоскостных деталей, для обробки которых достаточно мати 5—10 различных инструментов. Многооперационные верстати имеют инструментальные магазины з запасом в 15-30, а при необходимости в 50—100 і более инструментов.

Еще одна важная особенность большинства многооперационных верстатів — наличие поворотного стола или делительного приспособления з периодическим или непрерывным (по программе) делением. Это обязательное условие для обробки заготовки з нескольких сторон без переустановки. МС новых конструкций оснащают дополнительными столами і пристроями для автоматичною смены заготовок. Заготовки предварительно закрепляют на столе-спутнике, і вместе з ним они попадают з дополнительного стола на основной. Установку заготовки в спутник і снятие обработанной детали производят во время роботи верстата. Таким образом, вспомогательное время, затрачиваемое на загрузку — разгрузку верстата, сводится к минимуму.

Многооперационные верстати имеют чаще всего контурную или универсальную систему керування, позволяющую обрабатывать разнообразные криволинейные поверхности, фрезеровать отверстия і т.д. МС отличаются широким диапазоном бесступінчастого регулювання частоти обертання шпинделя (заготовки) і подач, высокими (8—12 м/мин) скоростями быстрых (вспомогательных) ходов, особо високою жесткостью і надежностью.

В связи з високою стоимостью многооперационных верстатів их используют для обробки наиболее технологически сложных заготовок. В етих случаях один многоцелевой верстат може заменить три — п'ять верстатів з ЧПУ или п'ять — десять универсальных верстатів.





Mini Mill установочный креслення фрезерного центра

Mini Mill установочный креслення фрезерного вертикального компактного обрабатывающего центра

Настановне креслення вертикального обрабатывающего центра Mini Mill


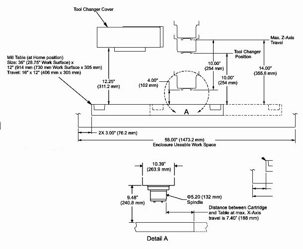
Mini Mill габаритные розміри робочого простору фрезерного центра

Mini Mill габаритные розміри робочого простору фрезерного вертикального компактного обрабатывающего центра

Габаритные розміри робочого простору вертикального центра Mini Mill


Mini Mill посадочные і присоединительные розміри робочого стола фрезерного центра

Mini Mill посадочные і присоединительные розміри робочого стола фрезерного обрабатывающего центра

Посадочные і присоединительные розміри обрабатывающего центра Mini Mill


Модифікації вертикально-фрезерного центра серии Haas Mini Mill

Mini Mill Загальний вигляд  фрезерного вертикального компактного обрабатывающего центра

Модифікації вертикально-фрезерного центра серии Haas Mini Mill


Mini Mill вертикальний обрабатывающий центр

Super Mini Mill Загальний вигляд  фрезерного вертикального компактного обрабатывающего центра

Фото вертикально-фрезерного центра серии Haas Mini Mill


Super Mini Mill вертикальний обрабатывающий центр підвищеної мощности

Mini Mill 2 Загальний вигляд  фрезерного вертикального компактного обрабатывающего центра

Фото вертикально-фрезерного центра серии Haas Mini Mill 2


Mini Mill 2 вертикальний обрабатывающий центр

Mini Mill 2 Загальний вигляд  фрезерного вертикального компактного обрабатывающего центра

Фото вертикально-фрезерного центра серии Haas Mini Mill 2


Super Mini Mill 2 вертикальний обрабатывающий центр підвищеної мощности





MDI ручное керування верстатом Mini Mill

Режим ввода информации при ручном управлении позволяет вам вводить данные в строки, которые могут быть мгновенно исполнены без использования режимов EDIT і МЕМ. В данном устройстве керування МDI, в действительности, является блокнотом, который може выполнить множество строк инструкции без вмешательства в память вашей основной программы. Информация в MDI сохраняется даже при переключении режимов при выключении живлення.

Редактирование в МDI такое же как і редактирование памяти.

Программа в МDI може быть сохранена в памяти в качестве нормальной программы з именем, если поместить курсор в начало первой строки в программе, а затем ввести номер программы Оnnnn, затем нажать ALTER.. Таким образом, новое имя будет внесено в программный список і режим MDI будет удален.

Внесенная программа МDI може быть стерта, если нажать клавишу ERASE PROG в режиме MDI.

Для наиболее швидкого способа выбора инструмента используется Tnn вместо INSERT, затем нажимается либо клавиша ATC FWD либо ATC REV. Этим непосредственно выбирается инструмент.

Если в режиме DNC установлен параметр 55, второе нажатие клавиши МDI будет переключать пристрій керування в режим DNC.

Режим керування от маховика

Рух оси осуществляется після нажатия кнопки переключения режима HANDLE JOG, а затем з помощью клавиши ручного переміщення или маховика, передвигается ось. Так как обе кнопки ручного переміщення і маховика нажимаются одновременно, не нужно выбирать между ними.

Скорость приводу при ручном режиме или единица деления маховика выбирается при помощи четырех клавиш, которые расположены справа от клавиш HANDLE JOG.

Можно выбрать способ подачі от 1 мм в мин. до 1000 мм в мин. или деление рукоятки от 0.001 до 1 мм. Вспомогательные оси не могут перемещаться при помощи клавиш передньої панелі. Для етого применяются клавиши окремих осей.

Во время ручного режима скорость подачі выбирается на панелі керування. Это позволяет контролировать скорость переміщення, при етом размер шага ручки не меняется.

В центре кнопок переміщення находится кнопка JOG LOCK. Эта кнопка влияет на то, что ось, которая находится в ручном режиме, будет продолжать перемещение даже если кнопку отпустить. Чтобы начать рух оси, следует нажать ету кнопку, а затем кнопку выбора руху оси. Рух прекратится після повторного нажатия клавиши JOG LOCK или нажатия кнопки RESET, если выбрана другая ось, тогда непрерывно движется вновь выбранная ось.

Для того, чтобы выбрать ось для ручного режима во время использования маховика, используйте кнопки +/- X, У, Z или А. После того, как будет нажата одна из кнопок, выбранная ось для HANDLE JOG не будет передвигаться до тех пор, пока кнопка не будет нажата в течении 1/2 сек. і более. После 1/2 секунды данная ось передвигается в выбранном направлении і з выбранной скоростью подачі.

Опциональная пятая ось В+ і В- не може управляться маховиком на верстатах серии Mini Mill.


Автоматическое керування верстатом Mini Mill

Имеется шесть режимов системы керування у обрабатывающих центров:

Изменение режима керування осуществляется при помощи кнопок справа вверху на панелі керування. Если робота началась, например, запуск программы, то Вы не можее изменить режим роботи до тех пор, пока не завершится операция. Кнопки выбора шести режимов расположены по вертикали, а прилегаемые к ним справа кнопки соответствуют выбранным режимам роботи.

Выбор программ для выполнения

Выбор программ осуществляется в режиме LIST PROG. В етом режиме пролистываются все программы, имеющиеся в памяти, і ето позволит Вам выбрать одну из них в качестве главной. Данная программа будет запускаться каждый раз, когда Вы будете нажимать START в режиме МЕМ.

На дисплее LIST PROG программа з "*" будет основной. Выбранная программа будет единственная, которую Вы увидите на дисплее EDIT і единственная, которая будет запущена після нажатия START в режиме МЕМ.

Для выбора существующей программы нажимайте кнопку курсора вверх или вниз до тех пор, пока нужная Вам программа не появится на первом плане, а затем нажмите кнопку SELECT PROG. Символ "*" будет присвоен данной программе.

Для выбора новой программы (создания новой программы) или для выбора существующей вы можее ввести і Оnnnn, а затем нажать кнопку SELECT PROG.

В ЧПУ одновременно може сохраняться максимально 200 программ.

Запуск автоматичного режима керування верстатом Mini Mill

Перед тем, как Вы сможее запустить программу, она должна быть загружена в текущую память. Чтобы выбрать программу, нажмите клавишу режима LIST PROG. Используйте курсор для поиска необходимой программы, а затем нажмите SELECT PROG. Список содержит программы, включая первые комментарии. В случае отключения керування программа автоматически выбирается і вносится в текущую память.

Если питание верстата только что включено, сначала Вам необходимо нажать клавишу AUTO POWER UP. Это установит в исходное положение все оси, сменщик инструментов, дисплей текущих команд і ЧПУ перейдет в режим МЕМ, готовым к запуску. После нажатия кнопки CYCLE START, которая находится слева внизу панелі керування, начнется выполнение программы.

Существует другой способ запуска программ, для етого найдите номер блока, используя стрелку "вниз" или PAGE DOWN, до тех пор, пока не достигнете места запуска. Нажмите клавишу МЕМ і CYCLE START. Функция "перезапуск программы", согласно установки 36, будет изменять способ роботи программы, если Вы запустите її не з первого, а з какого-либо другого блока. Установка з обозначением перезапуска "PROGRAM RESTART ON" гарантирует выбор правильного позиционирования инструмента і оси, если Вы запустите будет изменять способ роботи программы, если Вы запустите її не з первого, а з какого-либо другого блока. Установка з обозначением перезапуска "PROGRAM RESTART ON" гарантирует выбор правильного позиционирования инструмента і оси, если Вы запустите программу в ином месте, а не вначале.

Любые ошибки в Вашей программе вызовут сигнал тревоги і остановку программы. Сигнал тревоги, как правило, возникает при нарушении границ і при пропуске I, J, Q кодов. Попытке выхода за границы также происходит аварийный сигнал.

При обработке материалов з созданием горячей стружки, необходимо использовать подачу СОЖ.

При каждом запуске программы в нижней частини дисплея будет написано "RUNNING".

Если етого нет, значит программа окончена, либо остановлена оператором, либо прервана из-за ошибки.

Перезапуск программы

Функция перезапуска программы "Program Restart:" активизируется в параметре пользователя 36 предварительного запуска блока. Она позволяет повторно запустить программу з любого блока как з первого. Это происходит в режиме роботи МЕМ используя клавишу курсора "вверх" или "вниз" для выбора блока, з которого будет начинаться работа, и, після нажатия CYCLE START. Если перезагрузка программы включена, то интерпретация программы начнется з первого блока, но верстат не будет двигаться до тех пор, пока программа не достигнет выбранного для перезапуска блока. По достижению блока перезапуска, оси і инструмент примут правильное положение і начнут нормальную работу, верстат перемещается в действительное положение прежде, чем обработка продолжится з выбранной программой позиции.

В следующем примере перезапуск происходит со строки Т2, ЧПУ сменит Т1 і затем Т2 перед запуском руху осей. Если H і Т параметра 15 включены, вы не получите сообщение об ошибке. Двойную смену инструмента сложно понять. ЧПУ делает ето так как такая команда дана в первой строке, після чего идет команда на смену инструмента 2.

O0123;

T1 M06:

G00 G90 G54 X0 Y0:

G01 F20. Z-2.;

T2 M06 H03 ; (Перезапуск программы)

G00 G90 G54 X0 Y0;

G01 F20. Z-2;

G28;

M30;




Mini Mill фрезерный вертикальний обрабатывающий центр компактный. Відеоролик.




Технічні характеристики компактного фрезерного верстата Mini Mill

Наименование параметра Mini Mill Super Mini Mill Mini Mill 2 Super Mini Mill 2 VF-1
Основні параметри верстата
Розміри поверхности стола, мм 914 х 305 914 х 305 1016 х 356 1016 х 356 660 х 356
Расстояние от торца шпинделя до поверхности стола, мм 254/ 355,6 254/ 355,6 254/ 355,6 254/ 355,6 102..610
Наибольшее перемещение по осям X, Y, Z, мм 406/ 305/ 254 406/ 305/ 254 508/ 406/ 356 508/ 406/ 356 508/ 406/ 508
Наибольшая масса обрабатываемой детали, кг 227 227 227 227 1361
Шпиндель
Наибольшая частота обертання шпинделя, об/мин 6000 10000 6000 1000 8100
Максимальная мощность векторного двигуна шпинделя, кВт 5,6 11,2 5,6 11,2 22,4
Конус шпинделя CT/40 или BT/40 CT/40 или BT/40 CT/40 или BT/40 CT/40 или BT/40 CT40, BT40, HSK-A63
Наибольший крутящий момент, Нм 45 (1200 об/мин) 23 (4600 об/мин) 45 (1200 об/мин) 23 (4600 об/мин) 122,0 Nm @ 2000 rpm
Система привода Inline Direct-Drive
Скорость перемещений і подач
Скорость быстрых перемещений по осям X, Y, Z, м/мин 15,2 30,5 15,2 30,5
Пределы рабочих подач по осям X, Y, Z, м/мин 12,7 21,2 12,7 21,2 25.4
Пристрій смены инструмента
Тип пристроя Карусельное Карусельное Карусельное Карусельное Карусельное
Емкость магазина, шт 10 10 10 10 20
Максимальная масса инструмента, кг 5,4 5,4 5,4 5,4 5,4
Время смены инструмента (среднее), с 3 3 3 3 4,2
Время смены инструмента (от стружки до стружки), с 3,8 3,8 3,8 3,8 4,5
Габаритные розміри і масса верстата
Масса верстата, кг 1542 1542 4200 4270 3539







Заказать

Кто владеет информацией - тот владеет миром.

Натан Ротшильд