Виробником верстата TSA-16 був Zakład Doskonalenia Zawodowego Poznan . заснований 1931 року в Познані, Польща.
Токарний верстат TSA-16 був сконструйований на основі датського токарного верстата SR-80 з деякими змінами.
Верстат TSA-16 є навчальним універсальним токарно-гвинторізним верстатом і призначається для всіляких токарних робіт у майстернях шкіл для політехнічного навчання та холодної обробки металів різанням.
Швидкості обертання шпинделя пристосовані не тільки до обробки металевих предметів, але також дерева і пластмас.
Токарний верстат TSA-16 має коробку подач Нортона та гітару і тому дозволяє вести нарізку метричного та дюймового різьблення.
Верстат дозволяє проводити такі види токарних робіт:


Загальний вигляд верстата токарно-гвинторізного верстата TSA-16. Дивитись у збільшеному масштабі



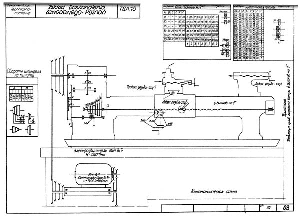
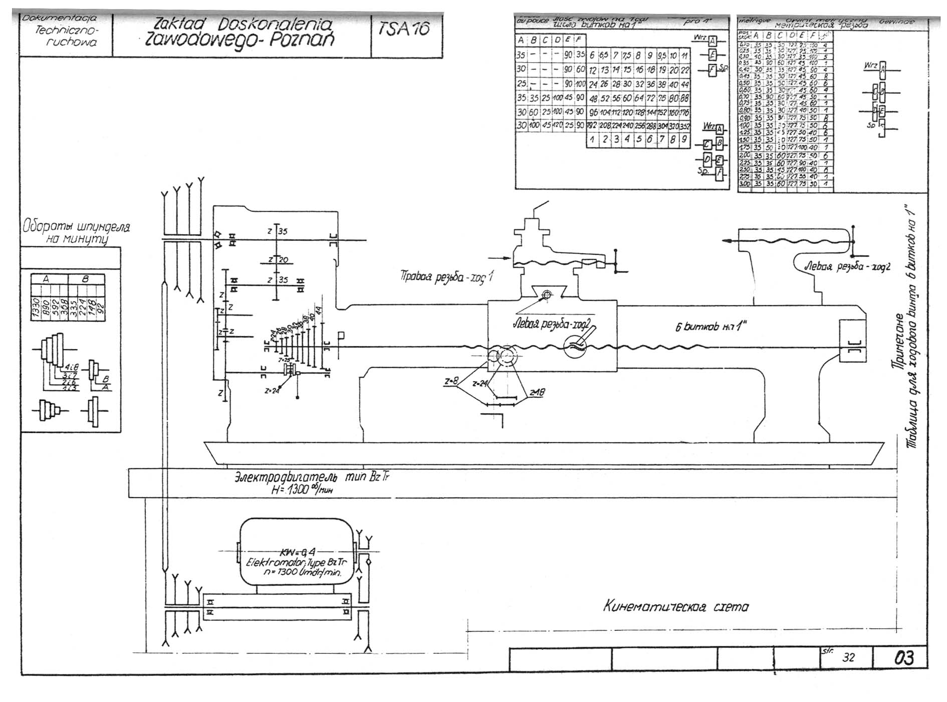
Схема кінематична токарно-гвинторізного верстата TSA-16. Дивитись у збільшеному масштабі

Станина токарного верстата коробчастої конструкції всередині ребриста, спирається на дві тумби, прикріплені болтами. Зверху призматичні та плоскі напрямні. Тумби разом із жолобом для стружки пригвинчені до дерев'яної поверхні столу. Внутрішні напрямні призначення установки передньої і задньої бабки, а зовнішні для переміщення супорта.

Передня бабка токарно-гвинторізного верстата TSA-16. Дивитись у збільшеному масштабі
Корпус передньої бабки в литому чавунному боксі прикріплений до станини 220 за допомогою двосторонніх болтів 47 гайок 56 і плиток 46.
Шпиндель 15 виконаний із вуглецевої сталі з отвором Ø17,5 мм для обробки пруткового матеріалу. Шпиндель має внутрішній конус для перехідної втулки з конусом Морзе № I. У передній частинині шпиндель розташований в регульованому бронзовому підшипнику ковзання 9, в конусному отворі корпусу передньої бабки, в задній частинині в ролико - конусному підшипнику або в однорядному підшипнику кочення ( . Осьові зусилля переносить завзятий шарикопідшипник для першого і другого виконання.
Передня частинина шпинделя загартована на шпинделі і зовнішньому корпусі передньої бабки укріплений чотириступінчастиний шків, що отримує привід від приставки. Усередині корпусу на шпинделі укріплено зубчасте колесо 24, від якого переносяться обороти через зубчасте колесо 23, на 8, на валик 16. З валика 16 через змінні зубчасті колеса на гітарі 250 /черт.О6/ обороти переносяться на валик коробки передач. 05/. Бронзовий ревереїр 8 обложений на валику 16, але в його виступаючих цапфах обертаються проміжні зубчасті колеса. Валик 16 звертається у підшипниках кочення. Зачеплення зубчастиних коліс ревереїру, як і їхнє розчеплення із зубчастиним колесом шпинделя настає за допомогою важеля 17. Їхнє положення встановлюється за допомогою клямки 20, яка своєю цапфою входить в одне з висвердлених гнізд в корпусі передньої бабки. Діапазон обертів шпинделя отримуємо перекладанням ременів двигуна на приставку і з приставки на шпиндель.
Патрон швидкого затиску матеріалу рис.04. Цей патрон з'єднаний із затискними втулками призначений для швидкого затискання матеріалу під час роботи верстата. Затискання матеріалу проводиться за допомогою втулки 30, що пересувається важелем 22, яка охоплює кульки розташовані контуром між конусною частининою опорної втулки 18, а конусом на кінці втулки 32. Кулі дають втулці 32 рухливість і за допомогою дистанційної втулки 19 вона викликає. Рухома втулка 32 так, як і втулка 30 обложені на спірній втулці 12. вінченим до корпусу шпиндельної бабки I. Комплект затискних втулок, що доставляють 3 вигляді спеціального обладнання, дозволяє на кріплення прутків від 3 до 12 мм по 1 мм. Застосування задньої бабки з револьверною головкою збільшує виробництво великої кількості дрібних предметів,

Коробка подач токарного верстата TSA-16. Дивитись у збільшеному масштабі
Від валика коробки подач 160 отримує обертання за допомогою гітари шпинделя, обертання переноситься через зубчасте колесо 163 на проміжне колесо 164, що знаходиться в пересувному важелі 151 і на одне із зубчастиних коліс в системі Нортона 9 Коробка подач під час точення дає 9 різьблення подач залежно від зубчастиних коліс на гітарі. Для нарізки різьблення застосовується гітара із комплектом змінних зубчастиних коліс.

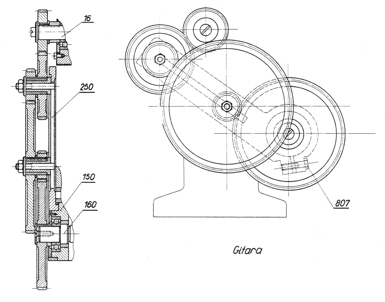
Гітара токарно-гвинторізного верстата TSA-16. Дивитись у збільшеному масштабі
Гітара укріплена на цапфі валика 160, обложеного корпусі коробки подач 150.
Підбір зубчастиних коліс для нарізки метричних та дюймових різьблень, а також їх розташування для кріплення токарномуу верстаті вказано рис. № 03.
Діапазон нарізних метричних різьблень: 0,2 до 3 мм ходу.
Діапазон дюймових різьб, що нарізаються: 6 до 352 гвинтів I"

Супорт токарного верстата TSA-16 Дивитись у збільшеному масштабі
Супортна плита із укріпленим у ній фартухом переміщається по двох зовнішніх - призматичній та плоскій напрямній. Поздовжній рух по станині отримуємо від ходового ггвинта 226. Нижній супорт 101 укріплений на супортній плиті 100 отримує поперечне переміщення по відношенню напрямку руху супортної плити, за допомогою ходового ггвинта 116 обертанням рукоятки 123. Поворот 102 осажден на нижній суппорта про закріплену на ньому резцедержавку 129 зі свавільним кутом від 0° до 60° у двох кутових напрямках для точення коротких конусів. Під час точення конусів переміщення верхнього супорта обложеного по направляючих повороту 102 отримуємо за допомогою ходового ггвинта 117 через покручування маховичком 122, прикріпленого на її вільному кінці включенням ходового ггвинта 226.
Ходові гвинти для переміщення нижнього супорта і верхнього мають розсувний масштаб по 0,05 мм, що уможливлює точне визначення діаметра обточеного предмета.
У супортній плиті 100 застосовані повстяні прокладки, для рівномірного мастила направляючих станини під час руху супорта. Зазори у направляючих видаляються шляхом регулювання клинів 124 та 125.
Чотирьохрізцевий різцетримач . Стальной четырехрезцовый резцедержатель 129 в форме четырехугольной башенки вращательно осажденной на шкворне 131 укреплённым нерухомо в верхним суппорте 103, Соответственное нерухоме уставление і её жесткость во время роботи обеспечивает укрепленная в верхнем суппорте защелка 145, При установці і закреплению резцедержатель попадает в один из четырех вырезов, исполненых у його основі на кожних 90°, на клямку. Затискач різцетримача до супорту отримуємо шляхом сильного обертання рукояткою 130 до відмови. Рукоятка 130 обложена на різьбленні шворня 131. Для визначення положення та прикріплення різцетримача до наступної операції звільняється від верхнього супорта у нове становище. Різці прикріплені болтами із квадратними головками.
Фартух . Переміщення фартуха отримуємо від ходового ггвинта 226 з трапеціоїдальною нарізкою 6 гвинтів I" через гайку роз'ємну 504, яка обложена на ходовому гвинті і прикріплена до гвинти фартуха.
Вмикання та вимикання подачі завершується ручним важелем 501 замикаючим або відмикаючим роз'ємну гайку 504, Ручне переміщення супорта на станині здійснюється після відкриття роз'ємної гайки маховичком для ручної подачі 502 і зубчастиним колесам взаємодіючим з ходовим вин. Для запобігання гвинту від протирання під час ручного переміщення супорта, гвинт наводиться в нерухомий стан за допомогою важеля 161 і муфтою 162/черт.05/. Під час механічної роботи супорта маховичок 502 для подачі вручну можна вимкнути пересуваючи по напрямку осі.

Задня бабка токарно-гвинторізного верстата TSA-16. Дивитись у збільшеному масштабі
Для закріплення та уставлення задньої бабки по осі шпинделя призначені внутрішні призматичні та плоскі напрямні станини. Корпус задньої бабки 80 розташований на пересувній плиті 81, прикріпленої спільно з корпусом до станини токарного верстата. Корпус задньої бабки пересувається і встановлюється на гвинті 81 поперек станини за допомогою гвинтів 810. Цей пристрій дозволяє обточувати довгі конуси.
Перепендикулярність переміщення задньої бабки забезпечена направляючим виступом в пазі плитки 81. Задню бабку зміцнюємо до призмів за допомогою плитки 91 підтриманої нижніми краями направляючих станини, натискається регульованою тягою 87 взаємодіє з ексцентриковим валиком 89, осадженим у корпусі 9 Переміщення корпусу задньої бабки у напрямку від осі шпинделя отримуємо ггвинтами 810, обложеними у гвинті 81 і діють на шкворень 90, загвинчений корпус задньої бабки. У корпусі задньої бабки обложено пересувну гільзу 86 з внутрішнім конусом Морзе № I для центру. Переміщення гільзи отримуємо шляхом повороту ходового ггвинта 85 рукояткою 96. Нерухоме положення висунутої гільзи забезпечує затискна втулка 88, що натискається рукояткою 97 обложеної на гвинті 94, загвинченим корпус задньої бабки. Захищає втулку перед обертанням під час переміщення гвинт 98, який своїм кінцем по фрезеровану поздовжню канавку на гільзі. Для висування центру з гнізда гільзи всовуємо її в корпус задньої бабки шляхом обертання ходового ггвинта, який виціснить свій кінцем центр з конуса.

Мастило вузлів токарного верстата здійснюється так мастильними клапанами, як і безпосередньо ручною масляною в місцях тертя.
Для мастила підшипників кочення шпинделя та коробки подач застосовується машинне масло.
Підшипники кочення приставки та електродвигуна змащується консистентним мастилом. Інші місця машинним маслом.

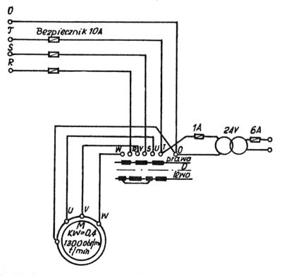
Привід токарний верстат отримує від електродвигуна потужністю 0,37 кВт 1400 об/хв.
Обороти електродвигуна переносяться на приставку, а від неї на шпиндель за допомогою багатоступінчастиних шківів і клиноподібних ременів.
Валик приставки 410, на кінцях якого прикріплені ремінні шківи 403 і 404, звертається в підшипниках кочення осаджених на похилому плечі 400. клоном плеча 400 обложеного на валику 416 у підставці 401, Стабілізацію ... положення плеча після натягу ременів здійснюється обложеною в ньому тягою 412 укріпленою гайками на стрижень 414. У підставці 401 обложена втулка 411, в якій ексцентр Частковий оберт втулки 415 ручним важелем 413 до верху, зовсім звільняє ремені від натяжки, що дає можливість переміщати їх на інші діаметри ремінних шківів. Повторну натяжку ременів отримуємо поворотному рукоятки 413 до низу до ггвинта в канавці втулки 415 - фіксує його положення. Ексцентрична установка отвору під стрижень 414 по відношенню до канавки поза мертвою точкою забезпечує незмінність натяжки під час роботи.
| Найменування параметру | ТВ-4 | ТВ-6 | ТВ-7 | TSA-16 |
|---|---|---|---|---|
| Основні параметри верстата | ||||
| Клас точності | Н | Н | Н | Н |
| Найбільший діаметр заготовки над станиною, мм | 200 | 200 | 220 | 160 |
| Найбільший діаметр заготовки над супортом, мм | 125 | 80 | 100 | 62 |
| Висота центрів над плоскими напрямними станини, мм | 108 | 108 | 120 | 80 |
| Найбільша довжина заготовки у центрах (РМЦ), мм | 350 | 350 | 330 | 380 |
| Найбільша довжина заготовки в патроні, мм | 310 | |||
| Найбільша довжина обточування, мм | 300 | 300 | 300 | |
| Найбільша висота тримача різця, мм | 10 х 12 | 12 х 12 | 16 х 16 | |
| Висота від опорної поверхні різця до лінії центрів, мм | 12 | 12 | ||
| Найбільша відстань від осі центрів до кромки різцетримача, мм | 78 | 78 | ||
| Передня бабка. Шпіндель | ||||
| Діаметр наскрізного отвору в шпинделі, мм | 16 | 18 | 17 | |
| Найбільший діаметр прутка, мм | 15 | 12 | ||
| Конус Морзе шпинделя | №2 | №3 | №3 | №1 |
| Число ступенів частот прямого обертання шпинделя | 6 | 6 | 8 | 8 |
| Частота обертання шпинделя, об/хв | 120, 160, 230, 375, 500, 710 | 130, 170, 235, 385, 510, 700 | 60,90, 130, 190, 350, 500, 730, 1000 | 92, 148, 224, 335, 368, 592, 890, 1330 |
| Гальмування шпинделя | ні | ні | ні | |
| Блокування рукояток | ні | ні | ні | |
| Супорт. Подання | ||||
| Найбільше поздовжнє переміщення супорта, мм | 300 | 300 | 260 | |
| Переміщення супорта поздовжнє на один поділ лімба, мм | 0,5 | 0,25 | 0,25 | |
| Найбільше поперечне переміщення супорта, мм | 100 | 100 | ||
| Переміщення супорта поперечне на один поділ лімба, мм | 0,025 | 0,025 | 0,025 | |
| Найбільше переміщення різцевих санчат, мм | 50 | 85 | 85 | |
| Переміщення різцевих санок на один поділ лімба, мм | 0,025 | 0,025 | 0,025 | |
| Кут повороту різцевих санчат, град | ±45° | ±45° | ±40° | |
| Число ступенів поздовжніх подач супорта | 3 | 3 | 6 | 9 |
| Межі поздовжніх робочих подач супорту, мм/про | 0,08; 0,1; 0,12 | 0,08; 0,1; 0,12 | 0,1; 0,12; 0,16; 0,20; 0,24; 0,32 | 0,05..3 |
| Межі робочих поперечних подач супорта, мм/про | ні | ні | ні | ні |
| Кількість нарізаних різьблень метричних | 3 | 3 | 6 | |
| Межі кроків різьб метричних, що нарізаються, мм | 0,8; 1,0; 1,25 | 0,8; 1,0; 1,25 | 0,8; 1,0; 1,25; 1,5; 2,0; 2,5 | 0,2..3,0 |
| Межі кроків різьб дюймових, що нарізаються, витків на 1" | ні | ні | ні | 6..32 |
| Межі кроків різьблення модульних | ні | ні | ні | ні |
| Межі кроків різьблення питних | ні | ні | ні | ні |
| Задня бабка | ||||
| Конус Морзе задньої бабки | №2 | №2 | №2 | №1 |
| Найбільше переміщення пінолі, мм | 65 | 65 | 65 | |
| Електроустаткування | ||||
| Електродвигун головного приводу, кВт | 1,0 | 1,1 | 1,1 | 0,37 |
| Габарити та маса верстата | ||||
| Габарити верстата (довжина ширина висота), мм | 1440 х 470 х 1020 | 1100 х 470 х 110 | 1050 х 535 х 1200 | 1220 x 600 |
| Маса верстата, кг | 280 | 300 | 400 | 150 |