Виробник токарного верстата моделі Т-65 - Ремісниче училище №12 міста Москви . Токарний верстат Т-65 випускався з 1949 року минулого століття.
Токарний настільний верстат Т-65 призначається для різноманітних дрібних чистових токарних робіт у приладобудуванні.
Токарний верстат Т-65 дозволяє проводити такі види токарних робіт:





Фото токарного верстата Т-65. Дивитись у збільшеному масштабі


Станіна служить точною опорою та напрямом всіх вузлів під час їх роботи. Станина має плоску напрямну і два зовнішніх скосу, які є напрямом переміщення супорта по станині. Внутрішня вертикальна площина (шип) служить для правильного фіксування передньої, задньої бабок бабки швидкого притиску при роботі на станині.
За внутрішнім профілем станини - Т-подібна - по скосам переміщається клин, який закріплюється за допомогою повороту ексцентрика бабки до станини.
Не допускається на робочих поверхнях вибоїн, вм'ятин, дрібних стружок. Робочі поверхні мають бути ретельно протерті.


Передня бабка, за наявності контрприводу , має 6 ступенів обертів шпинделя. Зміна швидкостей досягається зміною ременів на щаблях шківів (дивись таблицю чисел оборотів шпинделя).
Без контрприводу шпиндель матиме лише 3 ступені.
Передня бабка є головним вузлом у верстаті. Для збереження тривалої точності роботи шпинделя передньої бабки слід приділяти увагу його регулюванню, не допускати люфт у підшипниках.
Передня бабка має триступінчастиний жолобковий (клиноподібний) шків, насаджений на шпиндель 08. У шпинделі є шпонка 09 для запобігання цангу від прокручування, щоб уникнути порушення точності при їх роботі. При роботі на верстаті з цангами та центром отвір у шпинделі та цанги ретельно протерти та змастити чистою олією. Цангу посадити на шпонку від руки. Працюючи на верстаті з цангами на передній кінець шпинделя нагвинчується запобіжне кільце 33 (рис. 2). При роботі на верстаті з патронами, різьблення на шпинделі і в патроні ретельно очистити від бруду і стружок і потім змастити.
Шпиндель обертається у двох сталевих загартованих ковзаючих підшипниках. Регулювання радіальних і осьових люфтів у підшипниках шпинделя досягається наступним шляхом: для зменшення люфту в передньому підшипнику 06 (рис. 3) необхідно звільнити настановні гайки 10 і підтягнути настановні гайки 18, відрегулювати до плавного обертання шпинделя 8
Регулювання заднього підшипника 07 аналогічно передньому. Осьові зусилля шпинделя сприймають завзятий ковзний бронзовий підшипник і допоміжний конус 90° на шпинделі.
Кріплення бабки до станини здійснюється за допомогою клину 25 і поворотом ексцентрика 28.

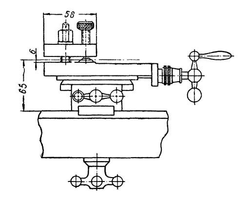
Супорт токарного верстата Т-65. Дивитись у збільшеному масштабі
У нижній частинині поперечного супорта 35, в нижній частинині, що направляє його, знаходиться основа 67, що має поперечне переміщення і рухається по скосах і площині напрямної станини.
Поперечний суппорт несе на собі поздовжній суппорт 54 і 57, що встановлюється під будь-яким кутом по градуйованому диску поперечного супорта 36. Для встановлення поздовжнього супорта під потрібний кут потрібно звільнити гвинти 71, повернути супорт на необхідний кут і знову затягнути гвинти 1. за допомогою гвинтів 41, з градуйованими лімбами з ціною поділу 0,05 мм. Верхня частинина поздовжнього супорта забезпечена тримачом 61 для кріплення різця. Мертвий хід гвинтів вибирається за допомогою підгортання затискної гайки 48. Регулюється хід санок супортів за допомогою клина 37 і чотирьох гвинтів підгортанням до плавного ходу санок. Закріплюється суппорт на станині в необхідному положенні гайкою 70, при цьому ретельно протирається основа 67 і станина від бруду та стружок.

Задня бабка служить підтримки другого кінця оброблюваної деталі. Корпус 1 розташований на підставі 2, що переміщається направляючими станини верстата.
У корпусі поздовжньо перекидається піноль 3.
Піноль має конічний отвір (конус Морзе 2), в який вставляється наполегливий центр або інший інструмент; свердла, розгортки, свердлильний патрон і т. д. Переміщення пінолі проводиться маховичком 4, що обертає гвинт 5.
Цанги є точними затискними пристроями та служать для особливо точних токарних робіт дрібних деталей. Щоб уникнути порушення точності цанг при роботі на верстаті забороняється:
При постановці цанги в шпиндель необхідно її ретельно протерти, видалити всі вм'ятини і вибоїни, якщо є, оглянути в отворі шпонку, змастити чистим маслом.
Посадити цангу від руки на шпонку в отвір шпинделя. Цанги повинні під час посадки легко переміщатися на шпонці. Застосування зусилля під час посадки цанги на шпонку шпинделя не допускається.
Патрон служить для затискання дрібних деталей і пруткового матеріалу різних діаметрів. Кулачки переставляють на зворотні для затиску деталі великих діаметрів.
При перестановці кулачків відвернути гвинти; місця руху кулачків ретельно очистити від стружки та протерти; поставити кулачки на місці у зворотному положенні і закріпити їх ггвинтами. Не допускається під час роботи в патроні:
Бабка швидкого притиску служить для швидкого свердління та точення спеціальними інструментами (наприклад, пустотілими фрезами та ін.). Вона має піноль 02, яка здійснює подовжній рух вперед і назад за допомогою важеля 05. Затискач інструментів слід проводити цангами за допомогою спеціальної затяжки, що додається до кожної бабки.
При бабці є упор 06, що служить межею необхідної довжини виробу, що обробляється. Після встановлення упору закріпити його гвинтом 07. На верху бабки є гвинт 88 і сухарі, що служать для затиску пінолі при спеціальних роботах.
Притискання бабки до станини здійснюється за допомогою клина 25 і поворотом ексцентрика 85.
Контрпривід відкритий, являє собою вал, що лежить на двох опорних кронштейнах 01, в яких укладені шарикопідшипники. На валу розміщені: приймальний шків 06 до мотора і шків 12, що передає рух на станок. Вмикання та вимикання здійснюється вимикачем, укріпленим на верстаті.
Схему установки і монтаж см. рис. 1, стр. 15.
Для точності роботи шпинделя верстата слід приділяти увагу якості ременів, що передають рух від контрприводу на шпиндель. Рекомендується застосовувати шкіряний круглий ремінь діаметром б-8 мм, еластично з'єднаний кільцем з дроту діаметром 1-1,5 мм.
Ремінь, що передає рух від мотора до контрприводу, шкіряний з'єднаний внахлестку шляхом склейки. Зшивання ременя не допускається.

Обзор токарно-гвинторізного верстата Т-65. Відеоролик
Модернизация токарного верстата Т-65
| Найменування параметру | Т-65 | С-95 | Т-28 |
|---|---|---|---|
| Основні параметри верстата | |||
| Клас точності | Н | Н | Н |
| Найбільший діаметр заготовки над станиною, мм | 120 | 50 | 130 |
| Найбільший діаметр заготовки над супортом, мм | 30 | 12 | 14 |
| Висота центрів над плоскими напрямними станини, мм | 65 | 32 | 65 |
| Найбільша довжина заготовки у центрах (РМЦ), мм | 200 | 125 | 220 |
| Найбільша довжина обточування, мм | 70 | 55 | |
| Найбільша висота тримача різця, мм | 7 х 7 | 6 х 9 | 8 х 8 |
| Висота від опорної поверхні різця до лінії центрів, мм | 6 | 6 | 6 |
| Найбільша відстань від осі центрів до кромки різцетримача, мм | 50 | ||
| Шпиндель | |||
| Діаметр наскрізного отвору в шпинделі, мм | 10 | 8 | 10 |
| Конус Морзе шпинделя | № 1 | 39°30` | № 0 |
| Число ступенів частот прямого обертання шпинделя | 3 | 3 | 3 |
| Частота прямого обертання шпинделя, об/хв | 77, 66, 55 | 1300..3000 | 1440, 2500, 4300 |
| Супорт. Подання | |||
| Найбільше поперечне переміщення супорта, мм | 70 | 44 | 55 |
| Переміщення супорта поперечне на один поділ лімба, мм | 0,05 | 0,01 | 0,01 |
| Найбільше переміщення різцевих санчат, мм | 70 | 38 | 55 |
| Переміщення різцевих санок на один поділ лімба, мм | 0,05 | 0,01 | 0,01 |
| Кут повороту різцевих санчат, град | ±90° | ±90° | ±60° |
| Задня бабка | |||
| Конус задньої бабки | Морзе №1 | 39°30` | Морзе №0 |
| Найбільше переміщення пінолі, мм | 45 | 30 | 45 |
| Електроустаткування | |||
| Електродвигун головного приводу, кВт | 0,25 1400 об/хв | 0,15 2700 об/хв | 0,27 2800 об/хв |
| Габарити та маса верстата | |||
| Габарити верстата (довжина ширина висота), мм | 675 х 300 х 250 | 420 х 200 х 250 | 650 х 255 х 222 |
| Маса верстата, кг | 19 | 19,2 | 25 |