metalinstryment.com
Довідник по металорізальних верстатів та пресовому обладнанні

Н3118 Ножницы гильотинные для листового металла
Схеми, опис, характеристики

Н3118 Ножницы кривошипные листовые (гильотинные) з наклонным ножом для обробки листового металла



Прессы механические, прессы гідравлические, верстати поперечно-строгальные

Відомості про виробника гильотинных ножниц Н3118

Изготовителем ножниц Н3118 является Львовский завод алмазного инструмента.

В настоящее время производит ПАО «Кувандыкский завод КПО «Долина» Оренбургская обл., г. Кувандык





Н3118 Ножницы гильотинные для обробки листового металла. Назначение і область применения

Машина Н3118 выпускалась по ГОСТ 6282-64 з 1971 года Львовским заводом алмазного инструмента.

Ножницы кривошипные гильотинные Н3118 з наклонным ножом предназначены для прямой, поздовжньої і поперечної резки листового металла з пределом прочности (временное сопротивление) σ BP = 500 МПа (50 кг/мм2). Поперечная резка листа толщиной до 6,3 мм і шириной до 2000 мм производится за один ход ножа. Продольная резка — при длине листа более 2000 мм — производится рядом повторных резов при продвижении листа вдоль линии реза.

Поперечная резка листа толщиной 6,3 мм і шириной 2000 мм производится за один ход ножа; продольная — при длине реза более 2000 мм производится рядом повторных резов при продвижении листа вдоль линии реза. Резка може производиться как по разметке, так і з помощью заднего упора.

Ножницы могут быть использованы в любой отрасли промышленности.

Основні параметри машины Н3118:

Особливості конструкції гильотинных ножниц Н 3118

Станина ножниц сварная, состоит из двух стоек, связанных между собой уголками. В передньої частини станины смонтирован стол, который може перемещаться для регулювання зазору между ножами.

Привід ножниц от индивидуального електродвигуна через клиноременную і одноступенчатую зубчатую передачи.

Муфта увімкнення ножниц з двумя поворотными шпонками, тормоз ленточный, периодического дії. Периодичность торможения достигается за счет ексцентричного розположення шкива по отношению к оси коленчатого вала. Это торможение происходит тогда, когда ножевая балка находится в верхнем положении, чем устраняется її забегание под действием сил инерции.

Ножевая балка уравновешена пружинным уравновешивателем. Усилие на ножевую балку от коленчатого вала передається двумя шатунами.

Прижимная балка прижимает разрезаемый материал к столу ножниц собственным весом і пружинами. Рух прижимной балки согласовано з движением ножевой балки.

Ножницы могут работать на одиночных і автоматических ходух.

Керування кнопкове з пульта і от ножной педали.

Смазка основних вузлів централизованная.

Для безопасной роботи на ножницах предусмотрена защитная решетка.

ВНИМАНИЕ! При резке полос шириной менее 12 мм возможно заклинивание полосы между линейкой заднего упора і ножами в связи з не деформацией.






Загальний вигляд гильотинных ножниц Н3118

Н3118 Габарит робочого простору і креслення общего вида ножниц

Загальний вигляд гильотинных ножниц Н3118


Посадочные і присоединительные базы ножниц Н3118

Н3118 Посадочные і присоединительные базы ножниц ножниц

Посадочные і присоединительные базы ножниц Н3118


Фото гильотинных ножниц з наклонным ножом Н3118

Н-3118 фото гильотинных ножниц

Фото ножниц Н3118


Н-3118 фото гильотинных ножниц

Фото ножниц Н3118


Н-3118 фото гильотинных ножниц

Фото ножниц Н3118


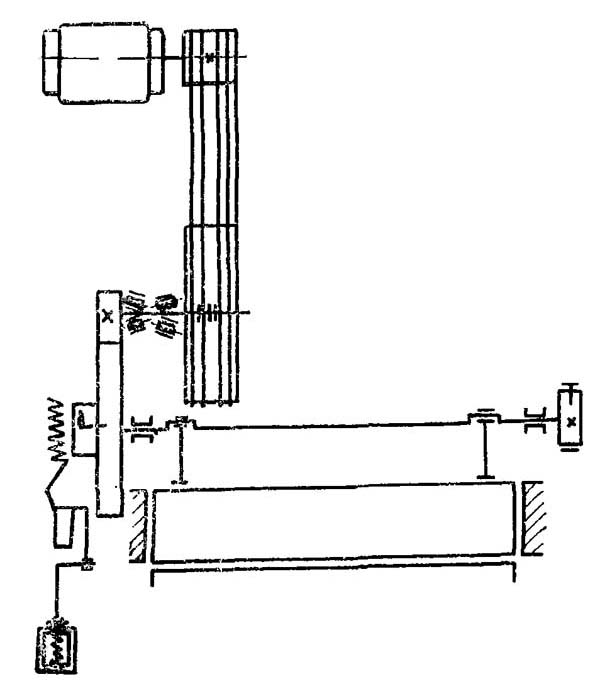
Кінематична схема ножниц Н3118

Н3118 кинематика ножниц гильотинных

Кінематична схема ножниц Н3118


Розташування органів керування гильотинными ножницами Н3118

Н3118 Розташування органів керування гильотинными ножницами

Пульт керування ножницами Н3118

Список органів керування на пульті керування ножницами Н3118

  1. Переключатель режима (ПP) "Одиночный ход" - "Автоматический ход"
  2. Переключатель режима (ПУ) "Управління педалью" - "Керування кнопками"
  3. Кнопка «Одиночный ход»
  4. Пуск двигуна
  5. Выключатель ланцюги керування
  6. Кнопка «Загальний стоп"
  7. Кнопка «Стоп" автоматических ходов




Конструкція гильотинных ножниц Н3118

Ножницы состоят из станины, ножевой і прижимной балок, привода, валов приводных, муфты увімкнення, заднего упора, уравновешивателя, тормозов, ограждения, системы електроустаткування і змазки, решетки защитной.


Станина (рис. 10)

Станина является базовым узлом, на котором крепятся все остальные вузли ножниц. Станина представляет собой сварную конструкцию, состоящую из двух стоек 1 і 3, связанных между собой уголками 2.

На стойки опирается стол 4, к которому гвинтами крепятся нижние ножи 5.

Для регулировки зазору между ножами стола і ножевой балки стол можно перемещать болтами 13, предварительно отпустив болты И і 12, которые після регулировки требуется снова затянуть.

Установка ножа по высоте при переточках производится подгонкой прокладок 6.

На столе имеются удлинители 7, з Т-образными пазами для крепления упоров.

На левом крае стола имеется зафиксированный штифтами удлинитель 8, в Т-образном пазу которого крепится упор 9 поперечної резки, для осуществления поздовжньої резки етот упор снимается.

Станина имеет направляющие, к которым крепятся текстолитовые накладки 10, по которым перемещается ножевая балка.


Привод, приводной і коленчатый валы гильотинных ножниц Н3118 (рис. 11 і 12)

Н3118 Привід ножниц гильотинных

Привід гильотинных ножниц Н3118

Н3118 Приводной і коленчатый валы ножниц гильотинных

Приводной і коленчатый валы гильотинных ножниц Н3118

Привід ножниц осуществляется от електродвигуна 1 через клиноременную передачу на маховик 4 через зубчасті колеса 5 і 6 на коленчатый вал 7.

Електродвигун крепится к подмоторной плите 2, шарнирно укрепленной на станине. Регулювання натяжения ремня осуществляется гайками 3.


Муфта увімкнення гильотинных ножниц Н3118 (рис.13)

Н3118 Муфта увімкнення ножниц гильотинных

Муфта увімкнення гильотинных ножниц Н3118

На левом кінці коленчатого вала в ступице зубчатого колеса установлена шпоночная муфта увімкнення.

Втулки 1, 2 і 3 нерухомо посажены в ступице зубчатого колеса. Остальные детали соединены з коленвалом. Поворотные (рабочая і запорная) шпонки муфты увімкнення включаются пружинами 6 и, поворачиваясь, захватываются полукруглыми пазами втулки 2. Втулки 8 і 9, имеющие полукруглые пазы, дополняют гнезда для круглых концов шпонки.

Правый конец рабочей шпонки снабжен легкоотъемным хвостовиком 4, который, ударяясь об палец 2 (рис. 17), отключает шпонки, соединенные между собой рычагами 5.

При включении і выключении шпонок угол поворота их ограничивается пазом ведущей втулки 7.





Балка ножевая і прижим (рис. 14)

Ножевая балка предоставляет собой сварную конструкцию Г-образной формы, усиленную ребрами 5.

К ножевой балке гвинтами крепятся ножи 6 і задний упор (см, рис. 15).

Усилие на ножевую балку от коленчатого вала передається посредством двух шатунов 7.

В верхнем положении балка після подъема удерживается пружинами, при ремонтi фиксируется в верхнем положении штырем, вставленным в отверстие Ø20 ножевой балки і станины з левой стороны.

Во время роботи ножниц разрезаемый лист прижимается к столу ножниц прижимной балкой 1, связанной выступами 2 з выступами ножевой балки, благодаря чему прижим осуществляется автоматически і согласованно з движением ножевой балки.

Усилие нажатия прижима регулируется пружинами 3, вмонтированными в стаканы на прижимной балке. В нижней частини прижимной балки приварена предохранительная сетка 4.


Задний упор (рис.15)

Задний упор устанавливается з тыльной стороны ножевой балки і служит упором для листа при поперечної резке.

Задний упор состоит из 2-х цилиндрических реек 1, перемещающихся вручную маховиками 2, сидящими на валах 3 шестерен, находящихся в зацеплении з рейками.

Перемещая рейки, устанавливают упорную линию на необходимое расстояние от кромки ножа, чем достигается мерная резка листа з помощью заднего упора.

При положении упорной линейки, как указано на рис. 15, задний упор позволяет отрезать лист длиной до 480 мм.

Для реза заготовок длиной до 900 мм необходимо упорную линейку переставить і закрепить в додаткових отверстиях М16 расположенных на рейках.


Тормоз (рис. 16)

На правом кінці коленчатого вала насажен тормоз периодического дії. Периодичность торможения достигается за счет ексцентричного розположення шкива 2 по отношению к оси коленчатого вала 1. Это торможение происходит тогда, когда ножевая балка находится в верхнем положении, чем устраняется її забегание под действием сил инерции.


Электромагнитное керування (рис. 17)

Для получения одиночных резов переключатель ПР ставится в положение «одиночный ход», переключатель ПУ ставится в положение «кнопки» или педаль. При нажатии на кнопку или педаль включается електромагнит, якорь которого поворачивает вилку з пальцем 2, освобождая зацепляющийся з ним хвостовик 4 (рис. 13), связанный з рабочей поворотной шпонкой. После того под действием пружин 6 (см. рис. 13) шпонки поворачиваются і включают коленчатый вал. Происходит одиночный рез.

Если оператор не отпустит кнопку или педаль в режиме «одиночный ход», блокировка магнитного пускателя 2К по ланцюги 102—117 (см. електросхему) размыкает ету ланцюг. Экран бесконтактного конечного выключателя отключает реле 1РП. которое по ланцюги 29—33 отключает пускатель 2К.

Для повторения робочого ходу кнопку или педаль следует отпустить. Для осуществления автоматических ходов переключатель ПР ставится в положение «автоматический ход», а переключатель ПУ ставится в положение «кнопки». Нажатием на пульті кнопки 4КУ пускатель 2К ставится на самопитание к включается електромагнит. Машина работает в режиме «автоматический ход».

Останов производится кнопкой ЗКУ.


Ограждение ножниц (рис.18)

Ограждение ножниц выполнено из листовой стали толщиной 1,6 мм.

Ограждение состоит из 3-х кожухов, из которых один закрывает шкивы клиноременной передачи, второй — шестерни приводу і третий — тормоз ножниц.

Крепление кожухов к станине осуществляется при помощи болтов М8.





Смазка гильотинных ножниц Н3118

Основні трущиеся поверхности смазываются от ручной насосной станції через питатели (см. руководство по монтажу і експлуатации насоса).

Шестерни приводу і підшипники смазываются путем закладывания змазки соответственно на зубья шестерни і а стаканы підшибників.

В процессе роботи ножницы нужно смазывать так, чтобы смазка выступала з боковых мест розположення підшибників Выступающую из зазоров смазку нужно вытирать.

Необходимо периодически проверить состояние масленок і маслопроводяших отверстий в деталях і обязательно их прочищать.

Не реже одного раза в три месяца смазочные отверстия промывать чистым керосином.


Налаштування ножниц і режим роботи гильотинных ножниц Н3118

Налаштування ножниц для резки полос заданной ширины производится переміщенням заднего упора.

Расстояние заднего упора от режущей кромки нижнего ножа определяется но шкале линеек, укрепленных на штангах заднего упора.

Електросхема передбачає возможность роботи машины в режимах «Одиночный ход». «Автоматический ход» і «Ручной проворот».

Резка листов максимальной толщины і ширины, указанных в паспорте ножниц, недопустима на автоматических ходух, так как мощность установленного електродвигуна рассчитана на использование 50% ходу.


Регулювання гильотинных ножниц Н3118

В процессе експлуатации ножниц регулировке і наладке могут подвергаться тормоз, муфта увімкнення, ножевая балка, прижим і зазор между ножами.

Работу тормоза необходимо периодически контролировать, регулируя натяжение пружины, і не допускать загрязнения шкива тормоза.

Периодически следует проверять состояние поворотной шпонки муфты увімкнення.

Зазоры в направляючих ножевой балки і прижима необходимо регулярно проверять в соответствии з нормами точності.

Регулювання прижима сводится к тому, чтобы путем поджатия пружин разрезаемый лист во время реза был достаточно прижат к столу.





Регулювання зазору между ножами

При резке листов зазоры между ножами должны быть установлены в пределах 1/20 — 1/30 толщины разрезаемого листа.

Прямолинейность линии разреза зависит от правильности регулировки зазору.

Регулювання зазору между ножами производится передвижением стола (см. рис. 5) і опис вузла «Станина»), не допускается резка листов максимальной толщины і ширины из материала, з пределом прочности более 500 МПа (50 кг/мм2).

В случае резки листа, предел прочности (временное сопротивление) σ которого свыше 500 МПа (50 кг/мм2), максимально допустимая толщина его определяется по формуле:


δ Х = δ√ 50/σВР мм


где δ Х — максимально допустимая толщина листа из материала, предел прочности которого более 50 кг/мм 2.

δ — максимально допустимая для резки толщина листа, указанная в характеристике ножниц

σВР — предел прочности материала листа, который необходимо резать

Необходимо помнить, что точная і надежная робота ножниц зависит от качества заточки ножей. Нельзя допускать резки затупленными ножами.

При регулировке необходимо выдержать наступні зазоры: Толщина разрезаемого листа, мм — 1,5÷3; 3÷6,3. Зазор между ножами, мм. — 0,15; 0,35.

После установки зазору между ножами затянуть болты, крепящие стол к станине.

Ножи выполнены з четырьмя режущими кромками, при затуплении одной кромки ножи необходимо периодически переворачивать.


Електроустаткування гильотинных ножниц Н3118





Креслення ножа гильотинных ножниц Н3118-11-402

Нож гильотинных ножниц Н3118

Креслення ножа гильотинных ножниц Н3118-11-402

Нож для гильотинных ножниц Н3118 16 х 60 х 590. Комплект состоит из 8 штук. Количество отверстий — 4 шт. Межцентровое расстояние — 165 мм.

  1. Ножи должны изготавливаться из стали марок 5ХВ2С, 6ХВ2С і 6ХС по ГОСТ 5950—73
  2. Твердость ножей — HRC 54 ... 58
  3. Допуск плоскостности поверхности Б — не более 0,1 мм на длине 100 мм
  4. Поле допуска размеров s а В комплекта ножей — по h11
  5. Допускаемая разность размеров ножей комплекта в месте стыка не более 0,03 мм
  6. H14; h14; ±IT14/2
  7. На ноже должна быть нанесена следующая маркировка: товарный знак предприятия-изготовителя, обозначение ножа, клеймо ОТК, шифр (номер) комплекта (для складових ножей).
  8. Остальные технические требования по ГОСТ 25306-82 Ножи плоские к листовым ножницам. Основні і присоединительные розміри. Технічні требования



Н3118 Ножницы кривошипные листовые гильотинные з наклонным ножом. Відеоролик.




Технічні характеристики гильотинных ножниц Н3118

Наименование параметра Н3118
Основні параметри ножниц
Класс точності 2
Наибольшая толщина разрезаемого листа при σ BP 50 кг/мм 2, мм 6,3
Номинальное усилие реза, кН (тс) 200 (20)
Наибольшая длина разрезаемых листов в мм, мм 2000
Число ходов ножа в минуту не менее 55
Ход ножа, мм 80
Угол наклона подвижного ножа в градусах 1°30'
Ширина отрезаемого листа по заднему упору, мм 900
Число режущих кромок ножа 4
Расстояние между стойками в свету, мм 2410
Максимальное усилие реза, кН (тс) 500 (50)
Усилие прижима, кг
Режимов роботи 2
Тип тормоза ленточный
Тип муфты с поворотной шпонкой
Електроустаткування
Електродвигун, кВт (об/мин) 7,5 (1500)
Габарит і масса ножниц
Габарит ножниц (длина х ширина х высота), мм 1930 х 3160 х 2175
Масса ножниц, кг 5100